L’agence CBRE Nice-Sophia Antipolis conseille et accompagne les chefs d’entreprise dans leurs projets immobiliers quels que soient leur taille et leur secteur d’activité. Spécialistes de la transac ...
En savoir plus

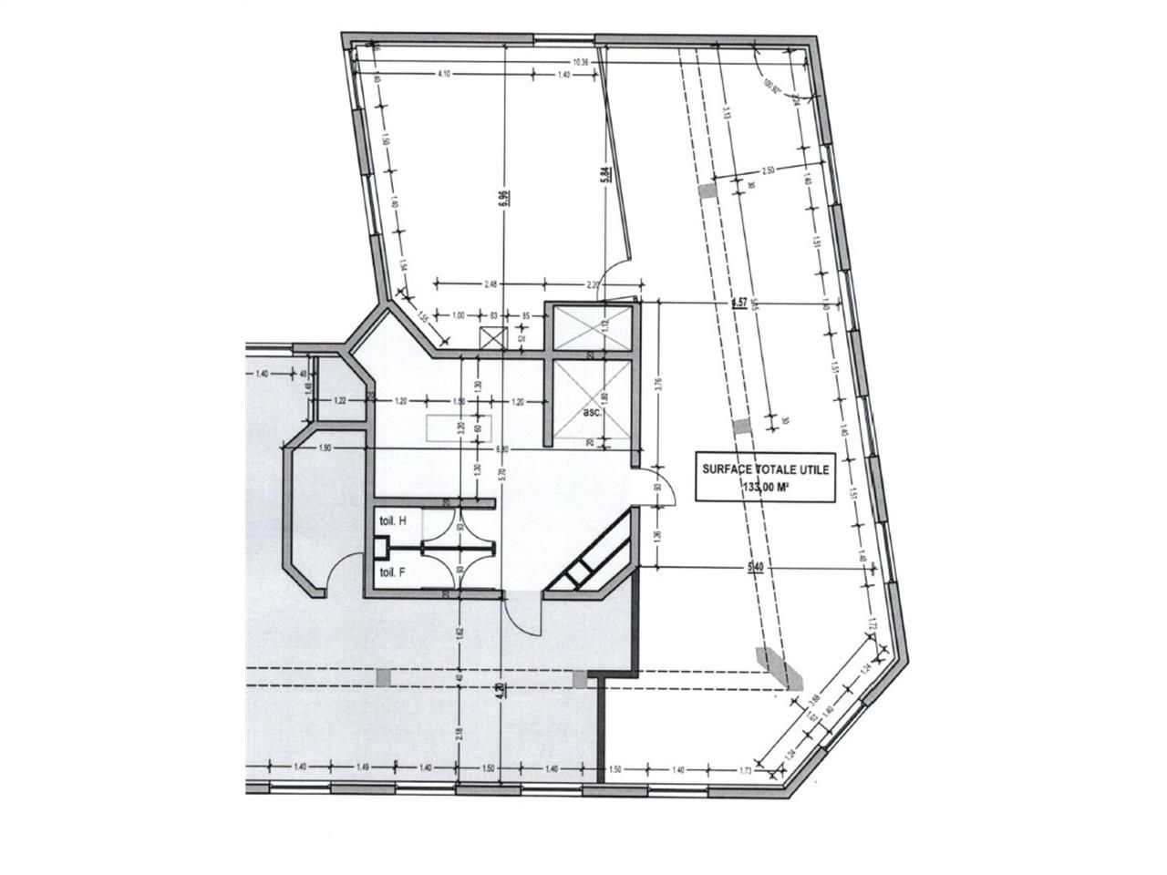
133 m²
Bureau à vendre - 133 m²
Nice (06000)
Dernière mise à jour : Hier
BUREAU A VENDRE - NICE OUEST
NICE OUEST (06200) - CBRE pour propose à la vente un bureau d'une superficie d'environ 133 m² non divisibles, au 6e étage avec ascenseur d'un immeuble tertiaire situé à quelques mètres de la célèbre promenade des Anglais . Ce bureau à vendre, équipé et climatisé est prêt à vous accueillir. Deux places de parking en sous sol à vendre en sus.
Installer ses bureaux à NICE OUEST (06200) offre à vos équipes un emplacement stratégique et accessible, proche des transports en commun, des parkings publics et des commodités. Saisissez l'opportunité de rejoindre un écosystème entrepreneurial dynamique sur la Côte d'Azur, avec des pôles d'innovation et des clusters technologiques.
Si vous êtes intéressés par ce bureau à vendre à NICE OUEST (06200) ou si vous souhaitez obtenir plus d'informations, n'hésitez pas à nous contacter pour planifier une visite et obtenir toutes les informations requises pour votre projet immobilier.
Mener à bien son projet d'implantation ou de développement pour une activité professionnelle doit passer par des locaux adaptés à ses besoins.
Régime Fiscal : Droits d'enregistrement
Honoraires : 7% HT du prix de vente HD à la charge de l'acquéreur
Taxe Bureau : 0,94 €/m²/an
Prestations :
Accessibilité:
Route Promenade des Anglais
Route Voie Mathis
Autoroute Autoroute A8
Bus Réseau Lignes d'Azur
Tramway Lignes 2 et 3
SNCF Pôle d'échange multimodal
Aeroport NIce Côte d'Azur
Les informations sur les risques auxquels ce bien est exposé sont disponibles sur le site Géorisques : www.georisques.gouv.fr
NICE OUEST (06200) - CBRE pour propose à la vente un bureau d'une superficie d'environ 133 m² non divisibles, au 6e étage avec ascenseur d'un immeuble tertiaire situé à quelques mètres de la célèbre promenade des Anglais . Ce bureau à vendre, équipé et climatisé est prêt à vous accueillir. Deux places de parking en sous sol à vendre en sus.
Installer ses bureaux à NICE OUEST (06200) offre à vos équipes un emplacement stratégique et accessible, proche des transports en commun, des parkings publics et des commodités. Saisissez l'opportunité de rejoindre un écosystème entrepreneurial dynamique sur la Côte d'Azur, avec des pôles d'innovation et des clusters technologiques.
Si vous êtes intéressés par ce bureau à vendre à NICE OUEST (06200) ou si vous souhaitez obtenir plus d'informations, n'hésitez pas à nous contacter pour planifier une visite et obtenir toutes les informations requises pour votre projet immobilier.
Mener à bien son projet d'implantation ou de développement pour une activité professionnelle doit passer par des locaux adaptés à ses besoins.
| Étage | Type | Surfaces | Dispo | Prix(m²) | Charges | Honoraires | Fiscal |
|---|---|---|---|---|---|---|---|
| 6 | Bureaux | 133 | Janvier 2026 | 3490,6 m² HD | n.c. | 7% HT du prix de vente HD à la charge de l'acquéreur | Droits d'enregistrement |
| SS | Parkings | Janvier 2026 | 25000 place HD | n.c. | 7% HT du prix de vente HD à la charge de l'acquéreur | Droits d'enregistrement |
Régime Fiscal : Droits d'enregistrement
Honoraires : 7% HT du prix de vente HD à la charge de l'acquéreur
Taxe Bureau : 0,94 €/m²/an
Prestations :
- Surface non divisible
- Climatisation réversible
- Double vitrage
- Sol moquette
- Sanitaire communs
- Baie de brassage
- Fibre optique
- 2 parking en sous sol en sus
Accessibilité:
Route Promenade des Anglais
Route Voie Mathis
Autoroute Autoroute A8
Bus Réseau Lignes d'Azur
Tramway Lignes 2 et 3
SNCF Pôle d'échange multimodal
Aeroport NIce Côte d'Azur
Les informations sur les risques auxquels ce bien est exposé sont disponibles sur le site Géorisques : www.georisques.gouv.fr
Voir plus
Afficher les consommations énergétiques
Favoris
Exporter
Appeler
Contacter
Signaler cette annonce
