L’agence CBRE Nice-Sophia Antipolis conseille et accompagne les chefs d’entreprise dans leurs projets immobiliers quels que soient leur taille et leur secteur d’activité. Spécialistes de la transac ...
En savoir plus

208 m²
Bureau à vendre - 208 m²
Nice (06000)
Dernière mise à jour : Il y a 3 jours
BUREAUX A LOUER OU A VENDRE NICE CENTRE PROMENADE DES ANGLAIS
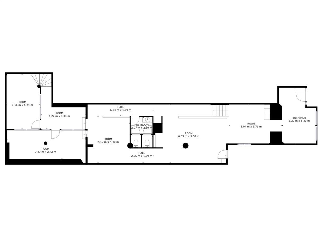
NICE CENTRE PROMENADES DES ANGLAIS (0600) - CBRE vous propose à la vente ou location des bureaux d'environ 208 m² répartis sur deux niveaux. Ces bureaux à louer ou à vendre sont aménagés cloisonnés et ont un accès direct au parking Masséna. Idéal pour un centre médical, cabinet d'avocats, clinique esthétique.
Ces bureaux sont facilement accessibles et offrent de nombreux avantages, tels que la proximité du centre-ville, des commodités et des transports en commun.
Si vous êtes intéressés par ces bureaux à louer ou à vendre à NICE CENTRE PROMENADE DES ANGLAIS (06000) ou si vous souhaitez obtenir plus d'informations, n'hésitez pas à nous contacter pour planifier une visite et obtenir toutes les informations requises pour votre projet immobilier.
Régime Fiscal : Droits d'enregistrement
Dépôt de garantie : 3 mois de loyer HT/HC
Paiement Loyer : trimestriel
Honoraires : 6% HT du prix de vente HD à la charge de l'acquéreur
Prestations :
Accessibilité:
Bus Réseau urbain
Aeroport International de Nice
Autoroute A8
Les informations sur les risques auxquels ce bien est exposé sont disponibles sur le site Géorisques : www.georisques.gouv.fr
NICE CENTRE PROMENADES DES ANGLAIS (0600) - CBRE vous propose à la vente ou location des bureaux d'environ 208 m² répartis sur deux niveaux. Ces bureaux à louer ou à vendre sont aménagés cloisonnés et ont un accès direct au parking Masséna. Idéal pour un centre médical, cabinet d'avocats, clinique esthétique.
Ces bureaux sont facilement accessibles et offrent de nombreux avantages, tels que la proximité du centre-ville, des commodités et des transports en commun.
Si vous êtes intéressés par ces bureaux à louer ou à vendre à NICE CENTRE PROMENADE DES ANGLAIS (06000) ou si vous souhaitez obtenir plus d'informations, n'hésitez pas à nous contacter pour planifier une visite et obtenir toutes les informations requises pour votre projet immobilier.
| Étage | Type | Surfaces | Dispo | Prix(m²) | Charges | Honoraires | Fiscal |
|---|---|---|---|---|---|---|---|
| RDC | Bureaux | 208 | Immédiate | 5264,42 m² HD | n.c. | 6% HT du prix de vente HD à la charge de l'acquéreur | Droits d'enregistrement |
Régime Fiscal : Droits d'enregistrement
Dépôt de garantie : 3 mois de loyer HT/HC
Paiement Loyer : trimestriel
Honoraires : 6% HT du prix de vente HD à la charge de l'acquéreur
Prestations :
- Surface : 208 m² sur deux niveaux
- Bureaux aménagés cloisonnés
- Sol moquette
- Plinthes périphériques
- Parking public Masséna : accès direct
- Surface RDC : 208 m²
Accessibilité:
Bus Réseau urbain
Aeroport International de Nice
Autoroute A8
Les informations sur les risques auxquels ce bien est exposé sont disponibles sur le site Géorisques : www.georisques.gouv.fr
Voir plus
Afficher les consommations énergétiques
Favoris
Exporter
Appeler
Contacter
Signaler cette annonce
