Leader mondial des services dédiés à l'immobilier d'entreprise, Cushman & Wakefield accompagne ses clients dans la transformation de leurs modes de travail, de consommation et de vie. Nos 43 000 co ...
En savoir plus



619 m² divisible dès 91 m²
Bureau à vendre - 619 m²
Entzheim (67960)
Dernière mise à jour : Il y a 2 mois
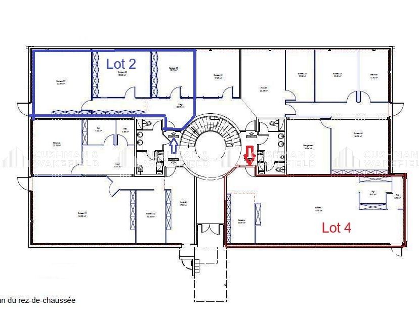
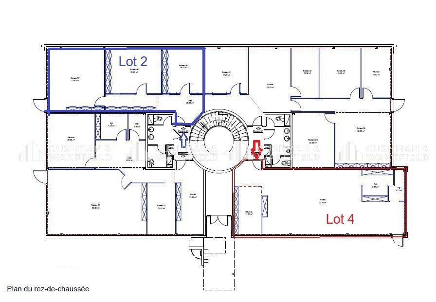
Immeuble de bureaux à l'entrée de l'Aéroparc 1, édifié sur 3 niveaux et doté de nombreux emplacements de parkings extérieurs. Belle visibilité pour des locaux très vitrés. Locaux disponibles à la vente, offrant une belle luminosité naturelle pour le confort de tous. L''Aéroparc d''Entzheim est une zone d'activité du territoire de la communauté urbaine de Strasbourg. Il est engagé dans une démarche d'optimisation des déplacements domicile-travail pour l'ensemble des usagers (Plan de Déplacement Inter Entreprises en lien avec l'EuroMétropole de Strasbourg). Ce plan de déplacement doit servir à tous. Les objectifs étant, bien sûr, de passer moins de temps dans les transports tout en réduisant la pollution de l'air. L''Aéroparc d''Entzheim est un parc mixte (bureaux et activité) au sud de l''Eurométropole de Strasbourg, à proximité de l''Aéroport International de Strasbourg-Entzheim. Il est engagé dans une démarche d''optimisation des déplacements domicile-travail pour l''ensemble des usagers. Ce plan de déplacement doit servir à tous. Les objectifs étant, bien sûr, de passer moins de temps dans les transports tout en réduisant la pollution de l''air. Le site accueille plus d''une centaine d''entreprises et propose aux collaborateurs de nombreux services : boulangerie, restaurants, distribution alimentaire, formation, esthétique, coiffure, ... Immeuble de bureaux à l'entrée de l'Aéroparc 1, édifié sur 3 niveaux et doté de nombreux emplacements de parkings extérieurs. Belle visibilité pour des locaux très vitrés. Locaux disponibles à la vente, offrant une belle luminosité naturelle pour le confort de tous. Le département Bureaux & Investissement de Cushman & Wakefield Strasbourg est à votre entière disposition pour visiter ces bureaux à louer au sein de l''Aéroparc à Entzheim. N'hésitez plus, contactez-nous ! . Sol moquette ou PVC type parquet . Murs peints . Faux plafond en dalles avec luminaires . Goulottes périphériques avec cblage informatique . Double vitrage avec stores . Chauffage et climatisation réversible Les surfaces indiquées sont des surfaces Carrez . Sanitaires Hommes / femmes en parties communes Locaux cloisonnés : Lot 2 : 3 bureaux avec placards- 1 accès direct depuis l'extérieur Lot 4 : 1 bureau - 1 opens spcae Lot 6-7 : 7 bureaux - 1 open space - 1 espace kitchenette Lot 8 : 5 bureaux Lot 10 : 3 bureaux - 1 opensapce - 1 terrasse Parking au foisonnement Bus : ligne 12 Accès routier : A35 sortie Aéroport Entzheim
Voir plus
Afficher les consommations énergétiques
Surfaces divisibles : 5
| Surface | PrixHD/HH/m² | Étage / Batiment |
| 207 m² | 372600 € | 1 |
| 98 m² | 176400 € | 0 |
| 114 m² | 216600 € | 2 |
| 109 m² | 196200 € | 1 |
| 91 m² | 163800 € | 0 |
Localisation et transport aux alentours
Favoris
Exporter
Appeler
Contacter
Signaler cette annonce










