L''équipe de BNP Paribas Real Estate Nice compte 9 collaborateurs qui sont spécialisés dans la location et la vente de bureaux, entrepôts, locaux d''activités et commerces, ainsi que dans les inves ...
En savoir plus

Location bureau - 1333 m²
AOLBUR2424882_2
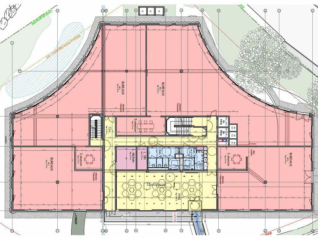
BUREAUX EN LOCATION – SOPHIA ANTIPOLIS – THE HIVE -VALBONNE
Au cœur de Sophia Antipolis, THE HIVE propose une offre de bureaux pensée pour accompagner les entreprises dans leurs projets d’implantation et de développement. Les espaces disponibles offrent une grande adaptabilité, permettant de créer des environnements de travail sur mesure. L’organisation des plateaux favorise la circulation de la lumière naturelle et le confort acoustique, contribuant à des conditions de travail optimales. Les prestations techniques intégrées répondent aux standards actuels du tertiaire et permettent une utilisation efficiente des surfaces. Les utilisateurs bénéficient de parties communes fonctionnelles et accueillantes, renforçant l’image professionnelle du site. Les aménagements intérieurs ont été conçus pour faciliter l’installation rapide des entreprises et l’évolution des organisations dans le temps. THE HIVE s’inscrit dans un environnement tertiaire complet, bénéficiant de services de proximité et d’une excellente desserte. Sa localisation stratégique au sein de Sophia Antipolis constitue un atout majeur pour les entreprises souhaitant renforcer leur attractivité auprès de leurs collaborateurs et partenaires. Engagé dans une démarche qualitative et durable, THE HIVE répond aux attentes des utilisateurs en matière de performance énergétique, de connectivité et de qualité d’usage. Cette offre constitue une solution immobilière pertinente pour toute entreprise en recherche de bureaux modernes et fonctionnels dans un cadre professionnel reconnu.
THE HIVE se distingue par une conception orientée vers la qualité d'usage et le bien-être des collaborateurs. Cet immeuble tertiaire indépendant accueille des bureaux fonctionnels et lumineux, au sein d'un environnement professionnel structuré et attractif.AOLBUR2424882_2
BUREAUX EN LOCATION – SOPHIA ANTIPOLIS – THE HIVE -VALBONNE
Au cœur de Sophia Antipolis, THE HIVE propose une offre de bureaux pensée pour accompagner les entreprises dans leurs projets d’implantation et de développement. Les espaces disponibles offrent une grande adaptabilité, permettant de créer des environnements de travail sur mesure. L’organisation des plateaux favorise la circulation de la lumière naturelle et le confort acoustique, contribuant à des conditions de travail optimales. Les prestations techniques intégrées répondent aux standards actuels du tertiaire et permettent une utilisation efficiente des surfaces. Les utilisateurs bénéficient de parties communes fonctionnelles et accueillantes, renforçant l’image professionnelle du site. Les aménagements intérieurs ont été conçus pour faciliter l’installation rapide des entreprises et l’évolution des organisations dans le temps. THE HIVE s’inscrit dans un environnement tertiaire complet, bénéficiant de services de proximité et d’une excellente desserte. Sa localisation stratégique au sein de Sophia Antipolis constitue un atout majeur pour les entreprises souhaitant renforcer leur attractivité auprès de leurs collaborateurs et partenaires. Engagé dans une démarche qualitative et durable, THE HIVE répond aux attentes des utilisateurs en matière de performance énergétique, de connectivité et de qualité d’usage. Cette offre constitue une solution immobilière pertinente pour toute entreprise en recherche de bureaux modernes et fonctionnels dans un cadre professionnel reconnu.
Disponibilité: ImmédiiateHonoraires: 15% HT du loyer HT/HC. à la signature du bail
| Fiche technique du bien | |
|---|---|
| Bus | gare routière des Messugues à 5 mins |
| Desserte routière | autoroute A8 à 5 mins |
| Aéroport | Nice Cote d'Azur 25 km |
| Gare | Antibes à 10 kms |
| Accès Pers. Mobilité Réduite | Oui |
| Etat de l'immeuble | Neuf |
| Etat des locaux | Neuf |
| Immeuble indépendant | Oui |
| Climatisation | Air rafraîchi une PAC par lot |
| Accueil | Espace d'attente |
| Restauration | à proximité |
| Environnement de proximité | tertiaire, proche gare routière |
| Sécurité | Contrôle d'accès et visiophonie |
| Ascenseur(s) | 2 |
| Hall d'accueil | ERP, capacitaire 11 personnes |
| Fenêtres | Oui |
| Aménagement des bureaux | Espaces Ouverts |
| Faux plafond | Dal. fibres minéral. |
| Hauteur sous-plafond | 2,70 à 2,80 m² dans les bureaux |
| Revêtement mural | finition peinture satinée |
| Eclairage Bureaux | Luminaires encastrés LED |
| Sol bureaux | Moquette |
| Plinthes techniq.périphériques | au RDC sinon encastré dans la dalle |
| Charge au sol étage | 350 daN/m² à 400 daN/m² |
| Sanitaire(s) | Parties communes |
| Autre élément bureau | dernier étage doté de puits de lumière naturelle |
| Autre élément bureau | chaque plateau avec gaines de ventilation individuelle |










