L’agence CBRE Marseille conseille et accompagne les chefs d’entreprise dans leurs projets immobiliers quels que soient leur taille et leur secteur d’activité. Spécialistes de la transaction de bure ...
En savoir plus

1 010 m² divisible dès 270 m²
HT HC
Location bureau - 1010 m²
Marseille 2 (13002)
Dernière mise à jour : Il y a 5 jours
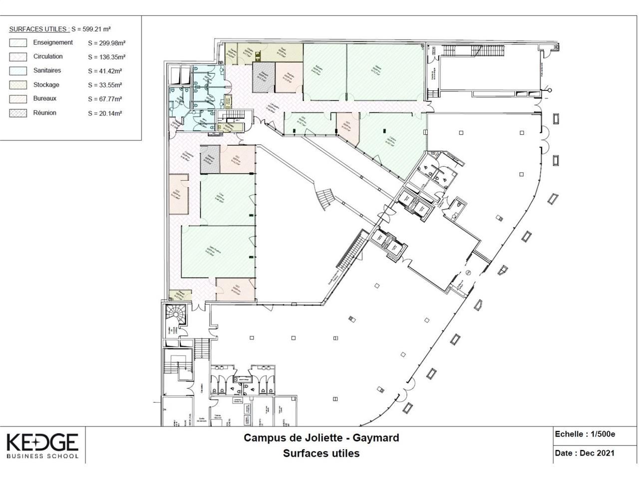
BUREAUX A LOUER - LA JOLIETTE - 13002 MARSEILLE : Dans un immeuble de bureaux au pied du métro et tramway "Joliette" au coeur d'Euroméditerranée, très belles surfaces de bureaux proche de toutes les commodités. ERP 5ème catégorie pour les bureaux en RDC. Au sein de l'immeuble Espace Gaymard, nous vous proposons des surfaces de bureaux en Rdc de 625 m² ERP 5 ainsi que 385 m² au 1er étage.
Idéalement situé, cet immeuble certifié BREEAM Very Good, bénéficie d'un control d'accès par badge et d'un PC sécurité. Une cours intérieures paysagé est accessible offre un cadre de travail agréable pour tous les utilisateurs de l'immeuble.
N'hésitez pas à nous contacter pour découvrir ces bureaux.
CBRE leader mondial en Immobilier d'entreprise est à votre disposition pour vous accompagner dans tous vos projets immobiliers grâce à sa palette de métiers permettant de répondre à toutes problématiques immobilières de la valorisation, en passant par la gestion et la commercialisation à la rénovation.
Impôt Foncier : 24,7 €/HT/m²/an
Régime Fiscal : T.V.A.
Dépôt de garantie : 3 mois de loyer TTC
Paiement Loyer : trimestriel
Honoraires : A la charge du preneur : 15 % HT du loyer annuel HT + TVA 20%
Taxe Bureau : 1,01 €/m²/an
Prestations :
Accessibilité:
Tunnel Prado Carénage à proximité
Metro Joliette (D)
Tramway Joliette (Tramways)
Bus Bus lignes 35, 57 et 61
Autoroute Accès directs autoroutes A55 et A7
Aeroport Aéroport Marseille Provence à 15 minutes
SNCF Gare Saint Charles à 5 minutes
Les informations sur les risques auxquels ce bien est exposé sont disponibles sur le site Géorisques : www.georisques.gouv.fr
Idéalement situé, cet immeuble certifié BREEAM Very Good, bénéficie d'un control d'accès par badge et d'un PC sécurité. Une cours intérieures paysagé est accessible offre un cadre de travail agréable pour tous les utilisateurs de l'immeuble.
N'hésitez pas à nous contacter pour découvrir ces bureaux.
CBRE leader mondial en Immobilier d'entreprise est à votre disposition pour vous accompagner dans tous vos projets immobiliers grâce à sa palette de métiers permettant de répondre à toutes problématiques immobilières de la valorisation, en passant par la gestion et la commercialisation à la rénovation.
| Étage | Type | Surfaces | Dispo | Loyer | Charges | Type de bailRév. annuelle |
|---|---|---|---|---|---|---|
| 1 | Bureaux | 385 | 6 mois ap. déb. trx | 250 HT/HC/m²/an | 65,8 HT/m²/an | 3-6-9 ansIndice ILAT |
| RDC | Bureaux | 355 | 6 mois ap. déb. trx | 250 HT/HC/m²/an | 65,8 HT/m²/an | 3-6-9 ansIndice ILAT |
| RDC | Bureaux | 270 | 6 mois ap. déb. trx | 250 HT/HC/m²/an | 65,8 HT/m²/an | 3-6-9 ansIndice ILAT |
| SS | Parkings | Immédiate | 1700 place/an HT HC | 3-6-9 ansIndice ILAT |
Impôt Foncier : 24,7 €/HT/m²/an
Régime Fiscal : T.V.A.
Dépôt de garantie : 3 mois de loyer TTC
Paiement Loyer : trimestriel
Honoraires : A la charge du preneur : 15 % HT du loyer annuel HT + TVA 20%
Taxe Bureau : 1,01 €/m²/an
Prestations :
- ERP : 5eme categ (Tout)
- Climatisation réversible
- Cloisonnement amovible
- Faux plancher
- Faux plafond
- Gardien
- Contrôle d'accès : interphone et digicode
- Cours intérieures
- 4 ascenseurs
- Surface RDC : 625 m²
Accessibilité:
Tunnel Prado Carénage à proximité
Metro Joliette (D)
Tramway Joliette (Tramways)
Bus Bus lignes 35, 57 et 61
Autoroute Accès directs autoroutes A55 et A7
Aeroport Aéroport Marseille Provence à 15 minutes
SNCF Gare Saint Charles à 5 minutes
Les informations sur les risques auxquels ce bien est exposé sont disponibles sur le site Géorisques : www.georisques.gouv.fr
Emplacement(s) de Parking: 2 places
Voir plus
Afficher les consommations énergétiques
Favoris
Exporter
Appeler
Contacter
Signaler cette annonce










