L''agence Marseille/Aix-en-Provence rassemble une équipe dynamique et polyvalente située à Marseille ainsi qu’à Aix. Nos conseillers sont expérimentés et ont une connaissance approfondie du marché ...
En savoir plus

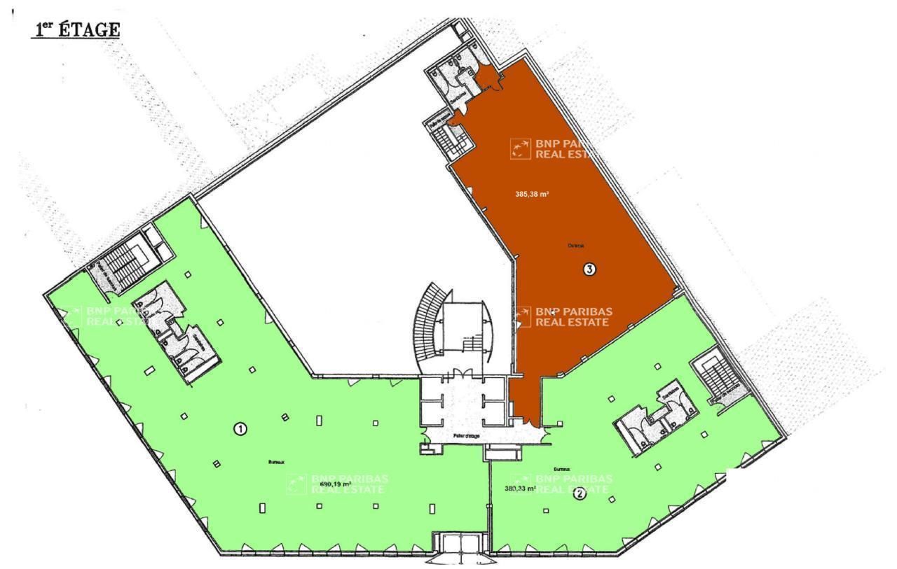
Location bureau - 1010 m²
OLBUR2418957
LOCATION BUREAUX MARSEILLE 13002 ESPACE GAYMARD
Nous vous proposons à la location des bureaux situés dans le 2ème arrondissement de Marseille.
Situés au coeur de l'une des plus anciennes villes de France, ces bureaux sont dans un important quartier de la ville, la Joliette et plus spécifiquement au sein du quartier d'affaires Euroméditerranée 1.
L'offre présente des bureaux cloisonnées, une possibilité de création d'un espace cuisine, un accès sécurisé avec gardiennage, deux places de parking disponibles à 1 700 €/unité/an HT HC.
Services de l'immeuble :
- Climatisation réversible
- Bureaux en open space
- Sanitaires privatifs
- Espace extérieur commun
- Jardin intérieur
- PC sécurité
- Cblage informatique RJ 45
- Certification Breeam Very Good
- Parking intérieur (2 places disponibles)
Ce quartier d'affaires offre un cadre de travail agréable et dynamique avec des services de restauration, des commerces, des activités sportives, des hôtels...
Ce cadre est facilement accessible grce aux transports en commun (M2, T2, T3, 35, 45...) et les axes routiers à proximité (A55 et A7). Avec un accès rapide possible vers la Gare SNCF, l'Aéroport ou encore des lieux culturels comme le Mucem et la Cathédrale de la Major.
Accessibilité :
- Autoroute A7 et A55
- Gare SNCF Marseille Provence à 7 mins
- Gare routière Marseille Provence à 7 mins
- Aéroport de Marseille Provence à 22 mins
- Métro 2
- Tramway T2 et T3
- Bus 35,45, 55, 49, 82...
Disponibilité: Immédiate
Honoraires: 15% HT du loyer HT/HC. à la signature du bail
| Fiche technique du bien | |
|---|---|
| Métro | ligne 2 Joliette |
| Bus | 35-45-55 |
| Tramway | Lignes 2 et 3 |
| Desserte routière | immédiat A55 et A7 |
| Aéroport | Marseille Provence à 22 min via A55 |
| Gare | Gare St Charles à 7 min |
| Etat des locaux | Etat d'usage |
| Etat des locaux | Rénové |
| Climatisation | Réversible |
| Accueil | Oui |
| Sécurité | Gardiennage 24h/24 7j/7 |
| Ascenseur(s) | Oui |
| Câblage informatique | RJ 45 |
| Aménagement des bureaux | Cloisonnés |
| Faux plancher | technique |
| Faux plafond | Oui |
| Eclairage Bureaux | Luminaires encastrés |
| Sol bureaux | Moquette et dalles PVC |
| Sanitaire(s) | Privatif(s) |
| Autre élément bureau | Baie de brassage |
| Autre élément bureau | Verrière avec store électrique |
Surfaces divisibles : 2
| Surface | LoyerHT/HC/m²/an | Étage / Batiment | Infos complémentaires |
| 625 m² | N.C | RDC | Espace Gaymard |
| 385 m² | N.C | R+1 | Espace Gaymard |










