MALSH Realty accompagne les entreprises dans leurs projets immobiliers, qu’il s’agisse de locaux d’activités, de bureaux, de commerces, d’entrepôts ou de terrains. L’agence intervient aussi bien au ...
En savoir plus

134 m²
HT HC
Location bureau - 134 m²
Lyon 2 (69002)
Dernière mise à jour : Hier
Bureaux à LYON 2 (Immeuble Haussmannien) A LOUER - 134 m²
Nous vous proposons à la location, des bureaux spacieux de 134 m², dans un immeuble Haussmannien au coeur de la Presqu'île. Ces bureaux sont idéalement situés entre les quartiers Bellecour et Cordeliers, garantissant un accès facile au métro A et aux commodités locales
Bureaux à LYON 2 (Immeuble Haussmannien) A LOUER - 134 m²
Impôt Foncier : 1735 €/An
Régime Fiscal : C.R.L. (2,5%)
Dépôt de garantie : 3 mois de loyer HT/HC
Honoraires : 15 % HT du loyer annuel HT à la charge du preneur, payables à la signature du bail
Prestations :
Accessibilité:
SNCF Lyon-St-Paul (France)
Bus Passerelle Pal. Justice (BUS-PL3, BUS-PL2, BUS-40, BUS-31), Cordeliers (BUS-PL1, BUS-9, BUS-C5, BUS-C14, BUS-C13, BUS-C3), Terreaux Tobie Robatel (BUS-S12), Hôtel de Ville L. Pradel (BUS-S6), Jacobins (BUS-S1, BUS-27), Bellecour Charité (BUS-35, BUS-15E, BUS-15), Musée des Beaux-Arts (BUS-19, BUS-C18), Pont Wilson (BUS-171), Saxe - Lafayette (BUS-C4), Bellecour Le Viste (BUS-C9, BUS-C12), Bellecour A. Poncet (BUS-C10), Bellecour Chambonnet (BUS-C20, BUS-C20E)
Métro Hôtel de Ville L. Pradel (METRO-C), Bellecour (METRO-D), Cordeliers (METRO-A), Place Guichard (METRO-B)
Tram Gare Part-Dieu Villette (TRAMWAY-T4, TRAMWAY-T3), Perrache (TRAMWAY-T2), Liberté (TRAMWAY-T1)
Les informations sur les risques auxquels ce bien est exposé sont disponibles sur le site Géorisques : www.georisques.gouv.fr
Nous vous proposons à la location, des bureaux spacieux de 134 m², dans un immeuble Haussmannien au coeur de la Presqu'île. Ces bureaux sont idéalement situés entre les quartiers Bellecour et Cordeliers, garantissant un accès facile au métro A et aux commodités locales
Bureaux à LYON 2 (Immeuble Haussmannien) A LOUER - 134 m²
| Étage | Type | Surfaces | Dispo | Loyer | Charges | Type de bailRév. annuelle |
|---|---|---|---|---|---|---|
| 2 | Bureaux | 134 | Immédiate | 238,81 HT/HC/m²/an | 31,75 /m²/an HT | commercial 3-6-9 ansILAT Indice des Loyers des Activités Tertiaires |
Impôt Foncier : 1735 €/An
Régime Fiscal : C.R.L. (2,5%)
Dépôt de garantie : 3 mois de loyer HT/HC
Honoraires : 15 % HT du loyer annuel HT à la charge du preneur, payables à la signature du bail
Prestations :
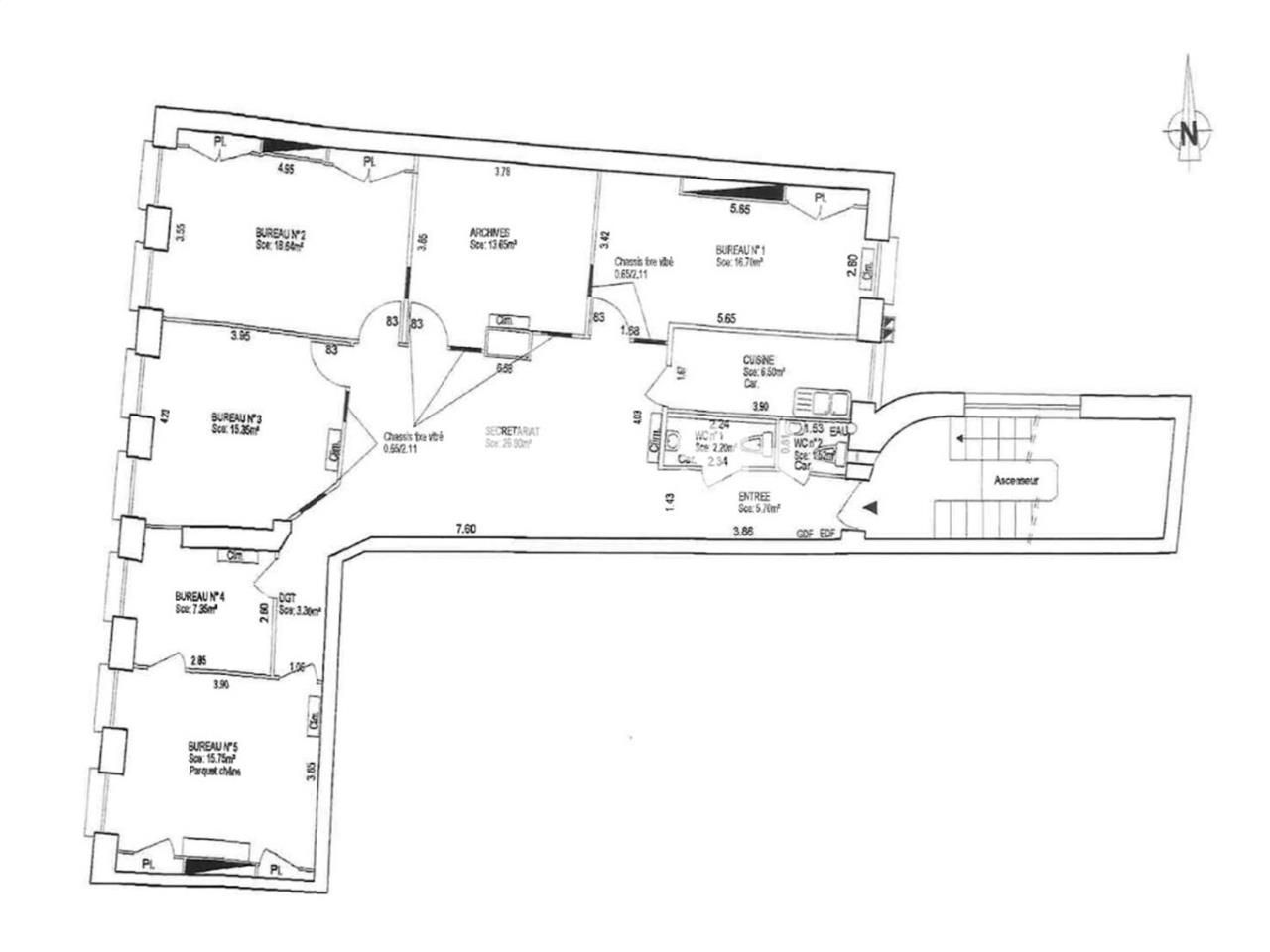
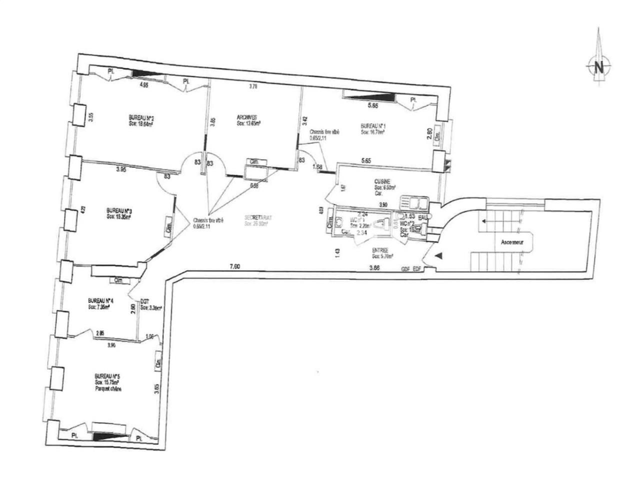
- Composition :
- Grans hall d'entrée / Accueil
- 5 bureaux
- 1 Accueil
- 1 Cspace cuisine
- 2 Sanitaires
- Prestations :
- Climatisation réversible
- Chauffage gaz
- Moquette
- Faux plafond
- Câblage RJ45
- Fibre optique
- Baie de brassage
Accessibilité:
SNCF Lyon-St-Paul (France)
Bus Passerelle Pal. Justice (BUS-PL3, BUS-PL2, BUS-40, BUS-31), Cordeliers (BUS-PL1, BUS-9, BUS-C5, BUS-C14, BUS-C13, BUS-C3), Terreaux Tobie Robatel (BUS-S12), Hôtel de Ville L. Pradel (BUS-S6), Jacobins (BUS-S1, BUS-27), Bellecour Charité (BUS-35, BUS-15E, BUS-15), Musée des Beaux-Arts (BUS-19, BUS-C18), Pont Wilson (BUS-171), Saxe - Lafayette (BUS-C4), Bellecour Le Viste (BUS-C9, BUS-C12), Bellecour A. Poncet (BUS-C10), Bellecour Chambonnet (BUS-C20, BUS-C20E)
Métro Hôtel de Ville L. Pradel (METRO-C), Bellecour (METRO-D), Cordeliers (METRO-A), Place Guichard (METRO-B)
Tram Gare Part-Dieu Villette (TRAMWAY-T4, TRAMWAY-T3), Perrache (TRAMWAY-T2), Liberté (TRAMWAY-T1)
Les informations sur les risques auxquels ce bien est exposé sont disponibles sur le site Géorisques : www.georisques.gouv.fr
Voir plus
Afficher les consommations énergétiques
Localisation et transport aux alentours
Favoris
Exporter
Appeler
Contacter
Signaler cette annonce










