RCG Bordeaux est un cabinet de conseil en immobilier d'entreprise est située au cœur du quartier des Chartrons au 107 cours Balguerie Stuttenberg à Bordeaux. Cette agence propose un large choix de ...
En savoir plus

172 m²
HT HC
Location bureau - 172 m²
Bordeaux (33000)
Dernière mise à jour : Il y a 2 jours
A VENDRE A LOUER - BUREAUX ERP 5 DE 172 M² FACE A LA GARONNE - BORDEAUX
Au pied des quais et du tramway, RCG vous propose à la location ou à la vente des locaux en excellent état de 172 m² répartis sur 2 niveaux bénéficiant d'une belle visibilité sur axe passant.
Possibilité de louer en complément une surface de 90 m² communiquant par la cour soit au total 262 m².
Impôt Foncier : 2200 €/an HT
Régime Fiscal : T.V.A.
Dépôt de garantie : 3 mois de loyer HT/ HC
Honoraires : 30%HT du loyer annuel HT HC à la charge du preneur
Information sur le Bail :
Possibilité de bail professionnel Une GAPD équivalente à 1 an de loyer CC TTC peut être demandée.
Prestations :
Accessibilité:
Tram Tramway ligne B arrêt "Les Hangars"
SNCF Ferry Les Hangars
Les informations sur les risques auxquels ce bien est exposé sont disponibles sur le site Géorisques : www.georisques.gouv.fr
Au pied des quais et du tramway, RCG vous propose à la location ou à la vente des locaux en excellent état de 172 m² répartis sur 2 niveaux bénéficiant d'une belle visibilité sur axe passant.
Possibilité de louer en complément une surface de 90 m² communiquant par la cour soit au total 262 m².
| Étage | Type | Surfaces | Dispo | Loyer | Charges | Type de bailRév. annuelle |
|---|---|---|---|---|---|---|
| 1 | Bureaux | 60 | Immédiate | 300 HT/HC/m²/an | 22,67 m²/an HT | 3-6-9 ansILAT Indice des Loyers des Activités Tertiaires |
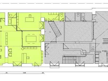
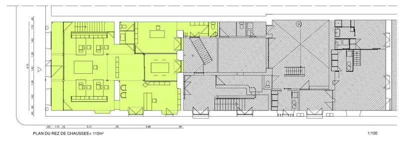
| RDC | Bureaux | 112 | Immédiate | 267,86 HT/HC/m²/an | 22,67 m²/an HT | 3-6-9 ansILAT Indice des Loyers des Activités Tertiaires |
Impôt Foncier : 2200 €/an HT
Régime Fiscal : T.V.A.
Dépôt de garantie : 3 mois de loyer HT/ HC
Honoraires : 30%HT du loyer annuel HT HC à la charge du preneur
Information sur le Bail :
Possibilité de bail professionnel Une GAPD équivalente à 1 an de loyer CC TTC peut être demandée.
Prestations :
- Immeuble ancien
- Locaux ERP5
- Accès PMR - 2 accès indépendants
- Cour privative 10 m²
- Fibre optique
- Climatisation réversible
- Chauffage individuel gaz
- Sol béton ciré
- 2 sanitaires + douche
- Escalier intérieur
- Surface RDC : 112 m²
Accessibilité:
Tram Tramway ligne B arrêt "Les Hangars"
SNCF Ferry Les Hangars
Les informations sur les risques auxquels ce bien est exposé sont disponibles sur le site Géorisques : www.georisques.gouv.fr
Voir plus
Afficher les consommations énergétiques
Favoris
Exporter
Appeler
Contacter
Signaler cette annonce










