RCG Bordeaux est un cabinet de conseil en immobilier d'entreprise est située au cœur du quartier des Chartrons au 107 cours Balguerie Stuttenberg à Bordeaux. Cette agence propose un large choix de ...
En savoir plus

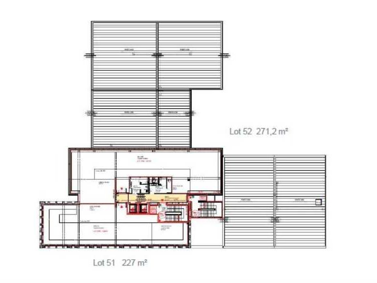
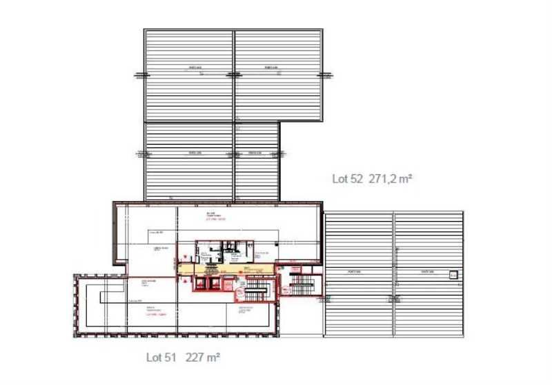
227 m²
HT HC
Location bureau - 227 m²
Bordeaux (33000)
Dernière mise à jour : Il y a 2 jours
A SOUS LOUER - BUREAUX AMENAGES 227 M² - BORDEAUX BASSINS A FLOT
Immeuble CAP LEEUWIN
Face au Bassin à flot n°2 sur l'axe du Pont Chaban Delmas et avec accès direct à la rocade, au sein d'un immeuble de bureaux BREEAM Very Good - RT2012 livré en 2021, RCG vous propose en sous-location une surface aménagée de 227 m².
Grande terrasse commune et arborée avec potager et tables d'extérieur au 1er étage.
Commerces en pied d'immeuble, parking public Indigo situé sur Immeuble voisin Cap Comorin.
Impôt Foncier : 18 €/m²/an HT
Régime Fiscal : T.V.A.
Dépôt de garantie : 3 mois de loyer HT/ HC
Honoraires : 10% HT du loyer annuel HT/HC à la charge du Preneur
Information sur le Bail :
Redevance COT : 17,38 euros/m²/an HT (basée sur surface plancher 515,8 m²) Loyer parkings : 1.560 euros/U/an HT (parking silo - abonnements à part sans engagement) Les charges comprennent : - Les dépenses du budget de fonctionnement (consommations fluides, contrats, travaux d'entretien/réparation) - Les honoraires de gestion administrative comptable et technique - Les refacturations d'assurance immeuble Condition suspensive de 30 jours dans le but d'obtenir l'agrément du port Bail de sous-location jusqu'au 31/10/2026 (possibilité de repartir sur un bail commercial ensuite)
Prestations :
Accessibilité:
Bus à proximité des lignes n°7/32
Tram à proximité de la ligne B - station "Cité du Vin"
Autoroute Accès rapide Rocade Sortie n°4
Route Accès Pont Chaban Delmas - Rive Droite
Les informations sur les risques auxquels ce bien est exposé sont disponibles sur le site Géorisques : www.georisques.gouv.fr
Immeuble CAP LEEUWIN
Face au Bassin à flot n°2 sur l'axe du Pont Chaban Delmas et avec accès direct à la rocade, au sein d'un immeuble de bureaux BREEAM Very Good - RT2012 livré en 2021, RCG vous propose en sous-location une surface aménagée de 227 m².
Grande terrasse commune et arborée avec potager et tables d'extérieur au 1er étage.
Commerces en pied d'immeuble, parking public Indigo situé sur Immeuble voisin Cap Comorin.
| Étage | Type | Surfaces | Dispo | Loyer | Charges | Type de bailRév. annuelle |
|---|---|---|---|---|---|---|
| 5 | Bureaux | 227 | Immédiate | 186,34 HT/HC/m²/an | 58,57 m²/an HT | Sous-locationILAT Indice des Loyers des Activités Tertiaires |
Impôt Foncier : 18 €/m²/an HT
Régime Fiscal : T.V.A.
Dépôt de garantie : 3 mois de loyer HT/ HC
Honoraires : 10% HT du loyer annuel HT/HC à la charge du Preneur
Information sur le Bail :
Redevance COT : 17,38 euros/m²/an HT (basée sur surface plancher 515,8 m²) Loyer parkings : 1.560 euros/U/an HT (parking silo - abonnements à part sans engagement) Les charges comprennent : - Les dépenses du budget de fonctionnement (consommations fluides, contrats, travaux d'entretien/réparation) - Les honoraires de gestion administrative comptable et technique - Les refacturations d'assurance immeuble Condition suspensive de 30 jours dans le but d'obtenir l'agrément du port Bail de sous-location jusqu'au 31/10/2026 (possibilité de repartir sur un bail commercial ensuite)
Prestations :
- Immeuble récent (2021)
- Certification BREEAM very good RT 2012
- Ascenseurs
- ERP 5ème catégorie type W
- Hall d'accueil aménagé
- Grande terrasse commune au R+1
- Hauteur sous plafond : 2.70 m
- Menuiseries extérieures en aluminium
- Cloisonnement amovible semi-vitré
- Moquette
- Faux plafond
- Eclairage led
- Baie de brassage / câblage RJ45
- Local vélos / douche au rdc
- Effectifs 1 personne / 12 m² SUBL
- Parking public Indigo situé sur l'immeuble Cap Comorin
Accessibilité:
Bus à proximité des lignes n°7/32
Tram à proximité de la ligne B - station "Cité du Vin"
Autoroute Accès rapide Rocade Sortie n°4
Route Accès Pont Chaban Delmas - Rive Droite
Les informations sur les risques auxquels ce bien est exposé sont disponibles sur le site Géorisques : www.georisques.gouv.fr
Voir plus
Afficher les consommations énergétiques
Favoris
Exporter
Appeler
Contacter
Signaler cette annonce










