L’agence CBRE Toulouse conseille et accompagne les chefs d’entreprise dans leurs projets immobiliers quels que soient leur taille et leur secteur d’activité. Spécialistes de la transaction de burea ...
En savoir plus

625 m²
HT HC
Location activité/entrepôt - 625 m²
Cugnaux (31270)
Dernière mise à jour : Hier
Bâtiment mixte (activité et bureaux) à louer à CUGNAUX, dans la ZI du Casque, au Sud-Ouest de TOULOUSE. Terrain clôturé et fermé accessible PL. Bureaux rénovés. Petit stockage extérieur.
A proximité de l'Autoroute A.64 .
Accessible par la Route de Toulouse.
A 300 mètres de la ligne de bus n° 87.
Local accessible PL.
Régime Fiscal : T.V.A.
Dépôt de garantie : 3 mois de loyer HT/HC
Honoraires : 15% (+TVA) du loyer annuel HT HC à la charge du preneur
Information sur le Bail :
Loyer et charges payables par trimestre et d'avance
Prestations :
Accessibilité:
Autoroute À proximité de l'A64 .
Route Accessible par la route de Toulouse.
Bus À 300 m de la ligne 87 .
Les informations sur les risques auxquels ce bien est exposé sont disponibles sur le site Géorisques : www.georisques.gouv.fr
A proximité de l'Autoroute A.64 .
Accessible par la Route de Toulouse.
A 300 mètres de la ligne de bus n° 87.
Local accessible PL.
| Étage | Type | Surfaces | Dispo | Loyer | Charges | Type de bailRév. annuelle |
|---|---|---|---|---|---|---|
| Activités | 625 | Immédiate | 4800 HT/an | 3-6-9 ansIndice ILAT |
Régime Fiscal : T.V.A.
Dépôt de garantie : 3 mois de loyer HT/HC
Honoraires : 15% (+TVA) du loyer annuel HT HC à la charge du preneur
Information sur le Bail :
Loyer et charges payables par trimestre et d'avance
Prestations :
- Sur une parcelle indépendante, clôturée et fermée par un portail coulissant.
- Bâtiment à ossature métallique, façades en bardage et maçonnerie.
- Toiture avec isolation intérieure type Shedisol.
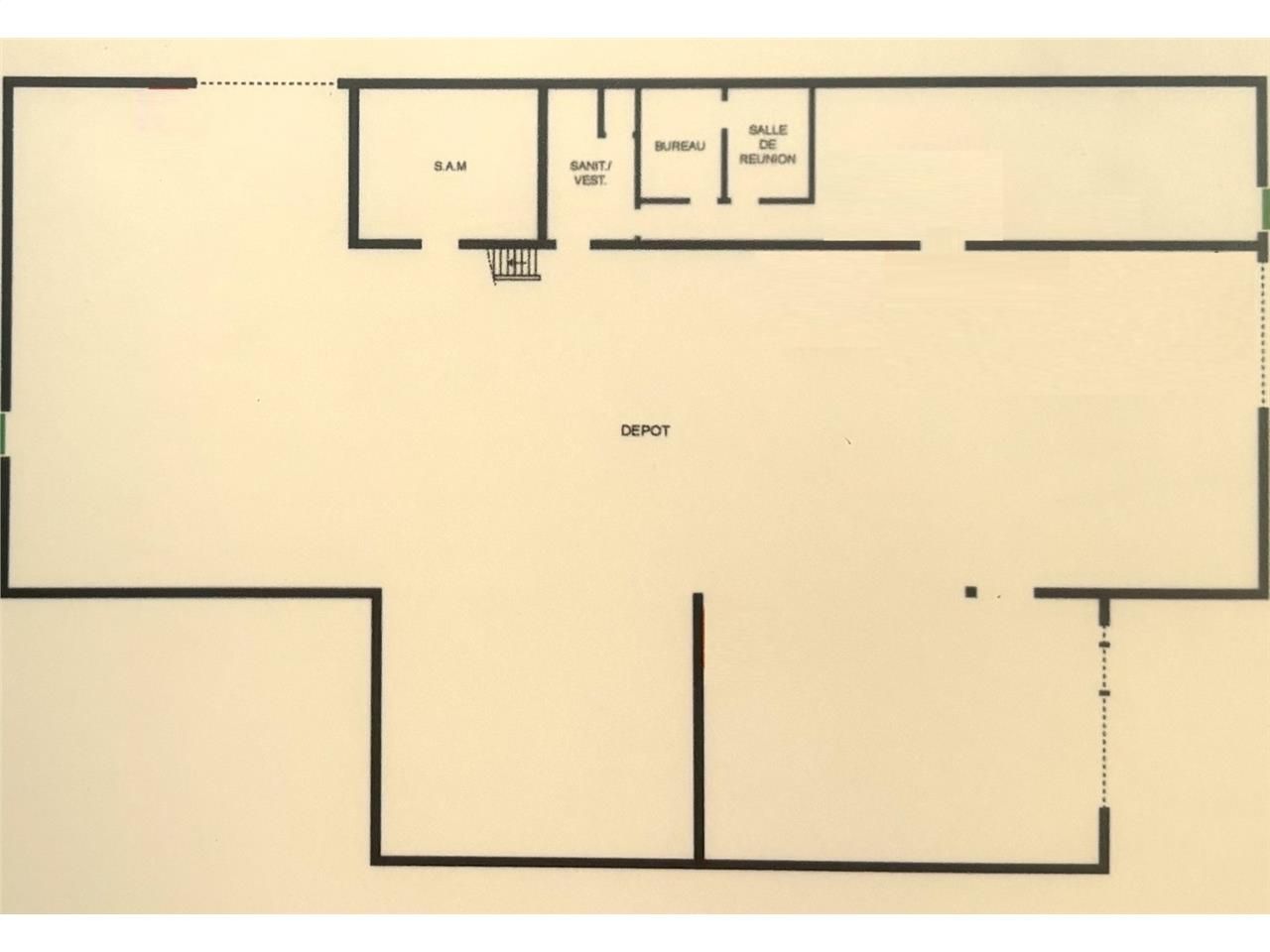
- Local d'activité de 625 m² répartis en :
- 500 m² de dépôt + 125 m² de bureaux
- Partie dépôt éclairée en premier jour:
- Dalle béton, 2 portes sectionnelles motorisées (4,5m L x 4m H).
- HSP 4,20 m à 5,30 m.
- Electricité tarif bleu, triphasé.
- Une mezzanine à ossature métallique et plancher bois de 125 m².
- Partie bureaux entièrement refaite:
- Un open-space, deux bureaux individuels, une salle de repos avec cuisine équipée, un bloc sanitaire avec douche et WC, un bureau d'atelier.
- Eclairage LED, climatisation réversible, fibre sur site.
- Accès PL.
- Plusieurs places de parkings à l'avant.
- Surface de stockage extérieur de 400 m² environ, dont 75 m² abrités.
- Immeuble indépendant
- Surface terrain : 0
Accessibilité:
Autoroute À proximité de l'A64 .
Route Accessible par la route de Toulouse.
Bus À 300 m de la ligne 87 .
Les informations sur les risques auxquels ce bien est exposé sont disponibles sur le site Géorisques : www.georisques.gouv.fr
Voir plus
Afficher les consommations énergétiques
Favoris
Exporter
Appeler
Contacter
Signaler cette annonce










