Besoin d'un conseil en immobilier ? Nous sommes une équipe dédiée à 100% à nos clients utilisateurs avec des services variés (stratégie immobilière, recherche immobilière, renégociation de bail, dé ...
En savoir plus

3 702 m² divisible dès 93 m²
WOODSTOCK - Bureau à vendre - 3702 m²
Saint-Priest (69800)
Dernière mise à jour : Il y a 1 mois
Immeuble indépendant de 3 702 m² à vendre au sein du parc Technologique
Immeuble WOODSTOCK
Savills Lyon vous propose à la vente un immeuble indépendant de 3 702 m² situé au sein du parc technologique de Saint-Priest. Une surface de 1 188 m² est déjà louée, offrant un rendement locatif immédiat. Immeuble bien entretenu et bureaux lumineux. Nombreux stationnements en sous-sol et en extérieur.
Impôt Foncier : 21,51 €/m²/an
Régime Fiscal : Droits d'enregistrement
Honoraires : 3 % HT du prix de vente HT ou HD, à la charge de l'acquéreur
Prestations :
Accessibilité:
Bus Parc Technologique (Ligne 93) à 100m
Tramway Hauts de Feuilly (Ligne T2) à 8 min à pied
Autoroute accès rapide A43
Les informations sur les risques auxquels ce bien est exposé sont disponibles sur le site Géorisques : www.georisques.gouv.fr
Immeuble WOODSTOCK
Savills Lyon vous propose à la vente un immeuble indépendant de 3 702 m² situé au sein du parc technologique de Saint-Priest. Une surface de 1 188 m² est déjà louée, offrant un rendement locatif immédiat. Immeuble bien entretenu et bureaux lumineux. Nombreux stationnements en sous-sol et en extérieur.
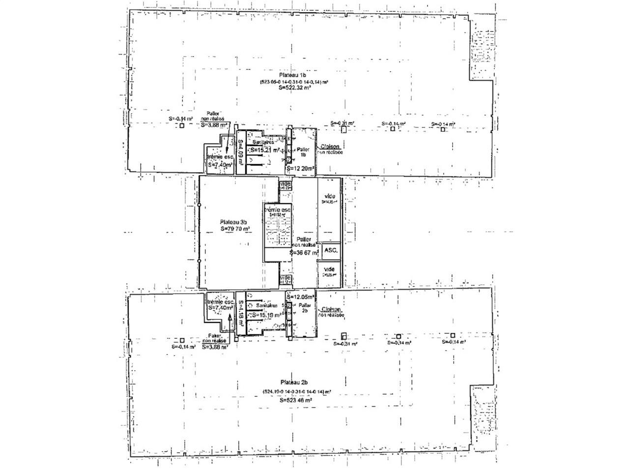
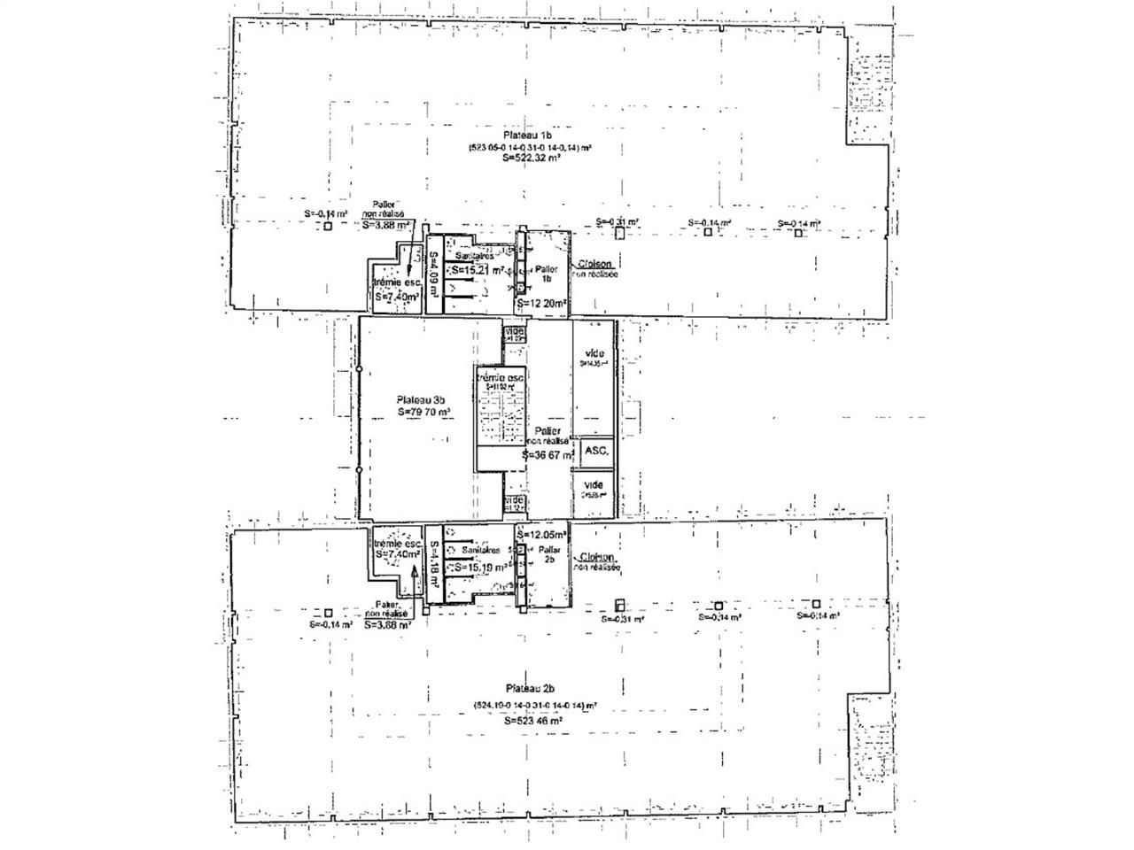
| Étage | Type | Surfaces | Dispo | Prix(m²) | Charges | Honoraires | Fiscal |
|---|---|---|---|---|---|---|---|
| 2 | Bureaux | 590,63 | Immédiate | n.c. | 31 m²/an HT | 3 % HT du prix de vente HT ou HD, à la charge de l'acquéreur | Droits d'enregistrement |
| 2 | Bureaux | 590,63 | Immédiate | n.c. | 31 m²/an HT | 3 % HT du prix de vente HT ou HD, à la charge de l'acquéreur | Droits d'enregistrement |
| 2 | Bureaux | 92,96 | Immédiate | n.c. | 31 m²/an HT | 3 % HT du prix de vente HT ou HD, à la charge de l'acquéreur | Droits d'enregistrement |
| 1 | Bureaux | 589,1 | Immédiate | n.c. | 31 m²/an HT | 3 % HT du prix de vente HT ou HD, à la charge de l'acquéreur | Droits d'enregistrement |
| 1 | Bureaux | 589,1 | Immédiate | n.c. | 31 m²/an HT | 3 % HT du prix de vente HT ou HD, à la charge de l'acquéreur | Droits d'enregistrement |
| 1 | Bureaux | 93,16 | Immédiate | n.c. | 31 m²/an HT | 3 % HT du prix de vente HT ou HD, à la charge de l'acquéreur | Droits d'enregistrement |
| RDC | Bureaux | 597,13 | Immédiate | n.c. | 31 m²/an HT | 3 % HT du prix de vente HT ou HD, à la charge de l'acquéreur | Droits d'enregistrement |
| RDC | Bureaux | 559,09 | Immédiate | n.c. | 31 m²/an HT | 3 % HT du prix de vente HT ou HD, à la charge de l'acquéreur | Droits d'enregistrement |
| RDC | Parkings | Immédiate | n.c. | n.c. | 3 % HT du prix de vente HT ou HD, à la charge de l'acquéreur | Droits d'enregistrement | |
| SS | Parkings | Immédiate | n.c. | n.c. | 3 % HT du prix de vente HT ou HD, à la charge de l'acquéreur | Droits d'enregistrement |
Impôt Foncier : 21,51 €/m²/an
Régime Fiscal : Droits d'enregistrement
Honoraires : 3 % HT du prix de vente HT ou HD, à la charge de l'acquéreur
Prestations :
- Implanté au coeur du Parc Technologique de Saint-Priest, le programme Woodstock offre plus de 33 000 m² de bureaux dans un cadre paysager soigné.
- Le site profite d'un excellent accès grâce à la proximité immédiate de l'A43 et de la ligne T2 du tramway.
- Le parc bénéficie d'un pôle de services complet : hôtel, restaurants, crèche...
- Année de construction : 2008
- Bâtiment indépendant
- Contrôle d'accès
- Ascenseur
- Système chaud / froid : pompe à chaleur en toiture
- Luminaires néons
- Faux plafond
- Plinthes périphériques
- Sol : moquette
- Hauteur sous plafond : 2,70 m
- Sanitaires en parties communes
- Capacitaire : 120 personnes / peut être porté à 235 personnes avec travaux au niveau des sanitaires
- 1188 m² actuellement loués
- Immeuble indépendant
- Surface RDC : 1156,22 m²
Accessibilité:
Bus Parc Technologique (Ligne 93) à 100m
Tramway Hauts de Feuilly (Ligne T2) à 8 min à pied
Autoroute accès rapide A43
Les informations sur les risques auxquels ce bien est exposé sont disponibles sur le site Géorisques : www.georisques.gouv.fr
Voir plus
Afficher les consommations énergétiques
Localisation et transport aux alentours
Favoris
Exporter
Appeler
Contacter
Signaler cette annonce










