Acquisition, location, clé en main, l’équipe de Cushman & Wakefield Rennes conseille depuis 2003 les décisionnaires dans leurs projets immobiliers sur la région de Rennes. Nous vous accompagnons da ...
En savoir plus

2 921 m² divisible dès 472 m²
Bureau à vendre - 2921 m²
Saint-Grégoire (35760)
Dernière mise à jour : Il y a 3 jours
A VENDRE A LOUER ST GRÉGOIRE- BUREAUX 2 922 M² DIVISIBLE - IMMEUBLE DE STANDING
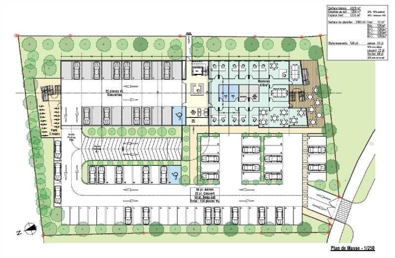
Immeuble VILANOVA
A VENDRE A LOUER
BUREAUX à SAINT GREGOIRE
-----
Cushman & Wakefield Rennes vous propose 2 922 m² de surfaces de bureaux divisibles au sein d'un immeuble neuf.
L'immeuble bénéficie de très belles prestations.
Rooftop au 3ème étage.
Excellent ratio de parkings...
Ces surfaces sont proposées à la location.
Le plateau du R+1 d'une surface de 628 m² peut-être proposé à la vente, divisible à partir de 127 m².
L'immeuble bénéficie d'une excellente situation sur la commune de St Grégoire, entre le Parc d'Affaires Edonia et le CHP.
Impôt Foncier : 13 €/HT/m²/an
Régime Fiscal : T.V.A.
Dépôt de garantie : 3 mois de loyer HT/HC
Paiement Loyer : Trimestriel
Honoraires : Honoraires vente : 5% HT du prix de vente HT à la charge de l'acquéreur
Information sur le Bail :
Loyer parking inclus. Taxe foncière (2022) : 13,00 euros HT/m²/an
Prestations :
Accessibilité:
SNCF SNCF à 17 min
Bus Bus 78 et 36 arrêt Edonia (Saint-Grégoire)
Accès routier Proximité rocade Nord
Aéroport Aéroport à 15 min
Les informations sur les risques auxquels ce bien est exposé sont disponibles sur le site Géorisques : www.georisques.gouv.fr
Immeuble VILANOVA
A VENDRE A LOUER
BUREAUX à SAINT GREGOIRE
-----
Cushman & Wakefield Rennes vous propose 2 922 m² de surfaces de bureaux divisibles au sein d'un immeuble neuf.
L'immeuble bénéficie de très belles prestations.
Rooftop au 3ème étage.
Excellent ratio de parkings...
Ces surfaces sont proposées à la location.
Le plateau du R+1 d'une surface de 628 m² peut-être proposé à la vente, divisible à partir de 127 m².
L'immeuble bénéficie d'une excellente situation sur la commune de St Grégoire, entre le Parc d'Affaires Edonia et le CHP.
| Étage | Type | Surfaces | Dispo | Prix(m²) | Charges | Honoraires | Fiscal |
|---|---|---|---|---|---|---|---|
| R+1 | Bureaux | 628,31 | 1er janvier 2025 | 2950 /m² HD.HT | 22 HT/m²/an | Honoraires vente : 5% HT du prix de vente HT à la charge de l'acquéreur | T.V.A. |
| R+2 | Bureaux | 637,35 | 1er janvier 2025 | 2950 /m² HD.HT | 22 /m²/an | Honoraires vente : 5% HT du prix de vente HT à la charge de l'acquéreur | T.V.A. |
| R+2 | Bureaux | 479,42 | 1er janvier 2025 | 2950 /m² HD.HT | 22 /m²/an | Honoraires vente : 5% HT du prix de vente HT à la charge de l'acquéreur | T.V.A. |
| R+3 | Bureaux | 628,49 | 1er janvier 2025 | 2950 /m² HD.HT | 22 /m²/an | Honoraires vente : 5% HT du prix de vente HT à la charge de l'acquéreur | T.V.A. |
| R+3 | Bureaux | 472,13 | 1er janvier 2025 | 2950 /m² HD.HT | 22 /m²/an | Honoraires vente : 5% HT du prix de vente HT à la charge de l'acquéreur | T.V.A. |
| R+4 | Terrasse | 75 | 1er janvier 2025 | 1180 /m² HD.HT | 22 /m²/an | Honoraires vente : 5% HT du prix de vente HT à la charge de l'acquéreur | T.V.A. |
Impôt Foncier : 13 €/HT/m²/an
Régime Fiscal : T.V.A.
Dépôt de garantie : 3 mois de loyer HT/HC
Paiement Loyer : Trimestriel
Honoraires : Honoraires vente : 5% HT du prix de vente HT à la charge de l'acquéreur
Information sur le Bail :
Loyer parking inclus. Taxe foncière (2022) : 13,00 euros HT/m²/an
Prestations :
- Immeuble de bureaux neuf
- Certification RT2012
- Capacitaire 1/10m²
- Classification code du travail
- Ascenseur
- Immeuble de bureaux avec rooftop (75 m²) attribué au 3ème étage.
- Plateaux aménagés, rafraîchis, câblés, fibrés et libres de cloisonnement.
- Sanitaires communs sur les paliers
- Revêtement sol: Dalles de moquettes
- Revêtement mural: Peinture blanche
- Local à vélos fermé
- Stationnements aérien dont 1 PMR
- Stationnements couvert dont 1 PMR
- Stationnements sous-sol dont 2 PMR
Accessibilité:
SNCF SNCF à 17 min
Bus Bus 78 et 36 arrêt Edonia (Saint-Grégoire)
Accès routier Proximité rocade Nord
Aéroport Aéroport à 15 min
Les informations sur les risques auxquels ce bien est exposé sont disponibles sur le site Géorisques : www.georisques.gouv.fr
Emplacement(s) de Parking: 44 15 39
Voir plus
Afficher les consommations énergétiques
Favoris
Exporter
Appeler
Contacter
Signaler cette annonce
