Besoin d'un conseil en immobilier ? Nous sommes une équipe dédiée à 100% à nos clients utilisateurs avec des services variés (stratégie immobilière, recherche immobilière, renégociation de bail, dé ...
En savoir plus

1 834 m² divisible dès 117 m²
LES BERGES DE LA SAULAIE - Bureau à vendre - 1834 m²
Oullins (69600)
Dernière mise à jour : Il y a 2 mois
1 833 m² de bureaux à la vente (divisibles à partir de 117 m² ) au coeur de la zac de la Saulaie à Oullin
Immeuble LES BERGES DE LA SAULAIE
Savills vous propose 1 833 m² de bureaux à la vente divisibles à partir de 117 m² au sein du bâtiment "Les Berges de la Saulaie".
Entièrement rénové et désormais conforme au décret tertiaire 2030, cet immeuble de grande qualité s'impose comme une opportunité rare dans le secteur en plein essor d'Oullins / Sud-Ouest.
A quelques minutes à pied du métro B pouvant relier Part-Dieu en 15 min, l'immeuble offre une vue panoramique spectaculaire sur Fourvière, le Rhône, le musée des Confluences et la skyline de la Part-Dieu.
Excellent ratio de parkings.
Impôt Foncier : 16,55 €/m²/an
Régime Fiscal : Droits d'enregistrement + TVA sur marge
Honoraires : 3 % HT du prix de vente HDE à la charge de l'acquéreur
Prestations :
Accessibilité:
Bus n°15, n°17, n°18 - "Saules - Jaurès" à 44 m
Métro Ligne B "Gare d'Oullins" à 600m
SNCF Gare TER d'Oullins à 600 m
Les informations sur les risques auxquels ce bien est exposé sont disponibles sur le site Géorisques : www.georisques.gouv.fr
Immeuble LES BERGES DE LA SAULAIE
Savills vous propose 1 833 m² de bureaux à la vente divisibles à partir de 117 m² au sein du bâtiment "Les Berges de la Saulaie".
Entièrement rénové et désormais conforme au décret tertiaire 2030, cet immeuble de grande qualité s'impose comme une opportunité rare dans le secteur en plein essor d'Oullins / Sud-Ouest.
A quelques minutes à pied du métro B pouvant relier Part-Dieu en 15 min, l'immeuble offre une vue panoramique spectaculaire sur Fourvière, le Rhône, le musée des Confluences et la skyline de la Part-Dieu.
Excellent ratio de parkings.
| Étage | Type | Surfaces | Dispo | Prix(m²) | Charges | Honoraires | Fiscal |
|---|---|---|---|---|---|---|---|
| 3 | Bureaux | 233,5 | Sous-promesse | 2950 HD/m² | 39,95 m²/an HT | 3 % HT du prix de vente HDE à la charge de l'acquéreur | Droits d'enregistrement + TVA sur marge |
| 3 | Bureaux | 191,7 | Sous-promesse | 2950 HD/m² | 39,95 m²/an HT | 3 % HT du prix de vente HDE à la charge de l'acquéreur | Droits d'enregistrement + TVA sur marge |
| 2 | Bureaux | 220,1 | Immédiate | 2950 HD/m² | 39,95 m²/an HT | 3 % HT du prix de vente HDE à la charge de l'acquéreur | Droits d'enregistrement + TVA sur marge |
| 2 | Bureaux | 203,2 | Immédiate | 2950 HD/m² | 39,95 m²/an HT | 3 % HT du prix de vente HDE à la charge de l'acquéreur | Droits d'enregistrement + TVA sur marge |
| 2 | Bureaux | 150,15 | Immédiate | 2950 HD/m² | 39,95 m²/an HT | 3 % HT du prix de vente HDE à la charge de l'acquéreur | Droits d'enregistrement + TVA sur marge |
| 2 | Bureaux | 117,55 | Immédiate | 2950 HD/m² | 39,95 m²/an HT | 3 % HT du prix de vente HDE à la charge de l'acquéreur | Droits d'enregistrement + TVA sur marge |
| 2 | Bureaux | 117,05 | Immédiate | 2950 HD/m² | 39,95 m²/an HT | 3 % HT du prix de vente HDE à la charge de l'acquéreur | Droits d'enregistrement + TVA sur marge |
| 1 | Bureaux | 140,3 | Immédiate | 2950 m² HD | 39,95 m²/an HT | 3 % HT du prix de vente HDE à la charge de l'acquéreur | Droits d'enregistrement + TVA sur marge |
| 1 | Bureaux | 115,5 | Immédiate | 2950 HD/m² | 39,95 m²/an HT | 3 % HT du prix de vente HDE à la charge de l'acquéreur | Droits d'enregistrement + TVA sur marge |
| 1 | Bureaux | 111,8 | Immédiate | 2950 HD/m² | 39,95 m²/an HT | 3 % HT du prix de vente HDE à la charge de l'acquéreur | Droits d'enregistrement + TVA sur marge |
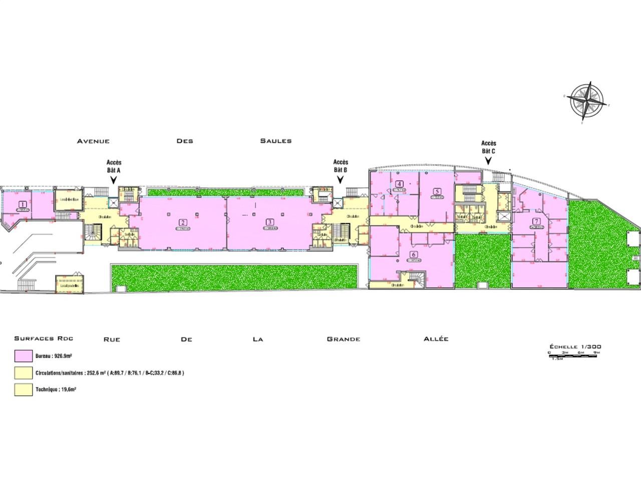
| RDC | Bureaux | 233,1 | Sous-promesse | 2950 HD/m² | 39,95 m²/an HT | 3 % HT du prix de vente HDE à la charge de l'acquéreur | Droits d'enregistrement + TVA sur marge |
| Parkings | Immédiate | n.c. | n.c. | 3 % HT du prix de vente HDE à la charge de l'acquéreur | Droits d'enregistrement + TVA sur marge |
Impôt Foncier : 16,55 €/m²/an
Régime Fiscal : Droits d'enregistrement + TVA sur marge
Honoraires : 3 % HT du prix de vente HDE à la charge de l'acquéreur
Prestations :
- Travaux d'amélioration réalisés permettant de rendre l'immeuble compatible avec le décret tertiaire 2030
- Immeuble bénéficiant d'une grande visibilité grâce à sa façade autoroutière
- Accès sécurisé -Différents halls d'entrée, accès PMR
- Ascenseurs avec cage et cabine en verre
- Nombreux locaux vélos
- Accès sécurisé
- Accès PMR
- Excellente modularité des plateaux de bureaux, nombreux aménagements possibles
- Chauffage et rafraîchissement d'air en faux-plafond - GTC
- Plateaux lumineux et traversants
- Câblage : Plinthes périphériques
- Dalles de moquette dans les bureaux
- Espaces terrasses aménagés pour les locataires
- Surface RDC : 233,1 m²
Accessibilité:
Bus n°15, n°17, n°18 - "Saules - Jaurès" à 44 m
Métro Ligne B "Gare d'Oullins" à 600m
SNCF Gare TER d'Oullins à 600 m
Les informations sur les risques auxquels ce bien est exposé sont disponibles sur le site Géorisques : www.georisques.gouv.fr
Voir plus
Afficher les consommations énergétiques
Localisation et transport aux alentours
Favoris
Exporter
Appeler
Contacter
Signaler cette annonce






