L’agence CBRE Nantes conseille et accompagne les chefs d’entreprise dans leurs projets immobiliers quels que soient leur taille et leur secteur d’activité. Spécialistes de la transaction de bureaux ...
En savoir plus

967 m²
Bureau à vendre - 967 m²
Nantes (44000)
Dernière mise à jour : Il y a 3 jours
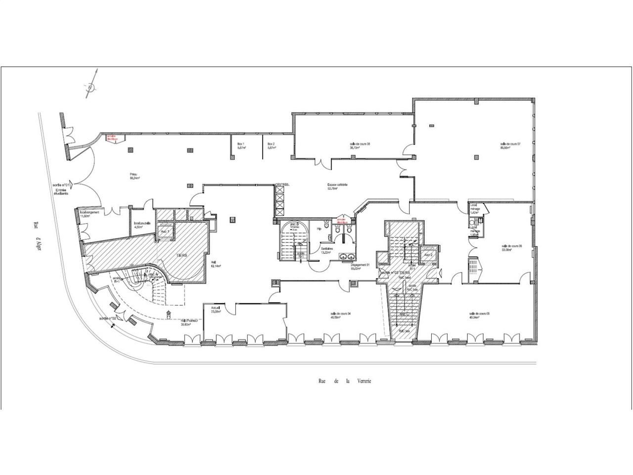
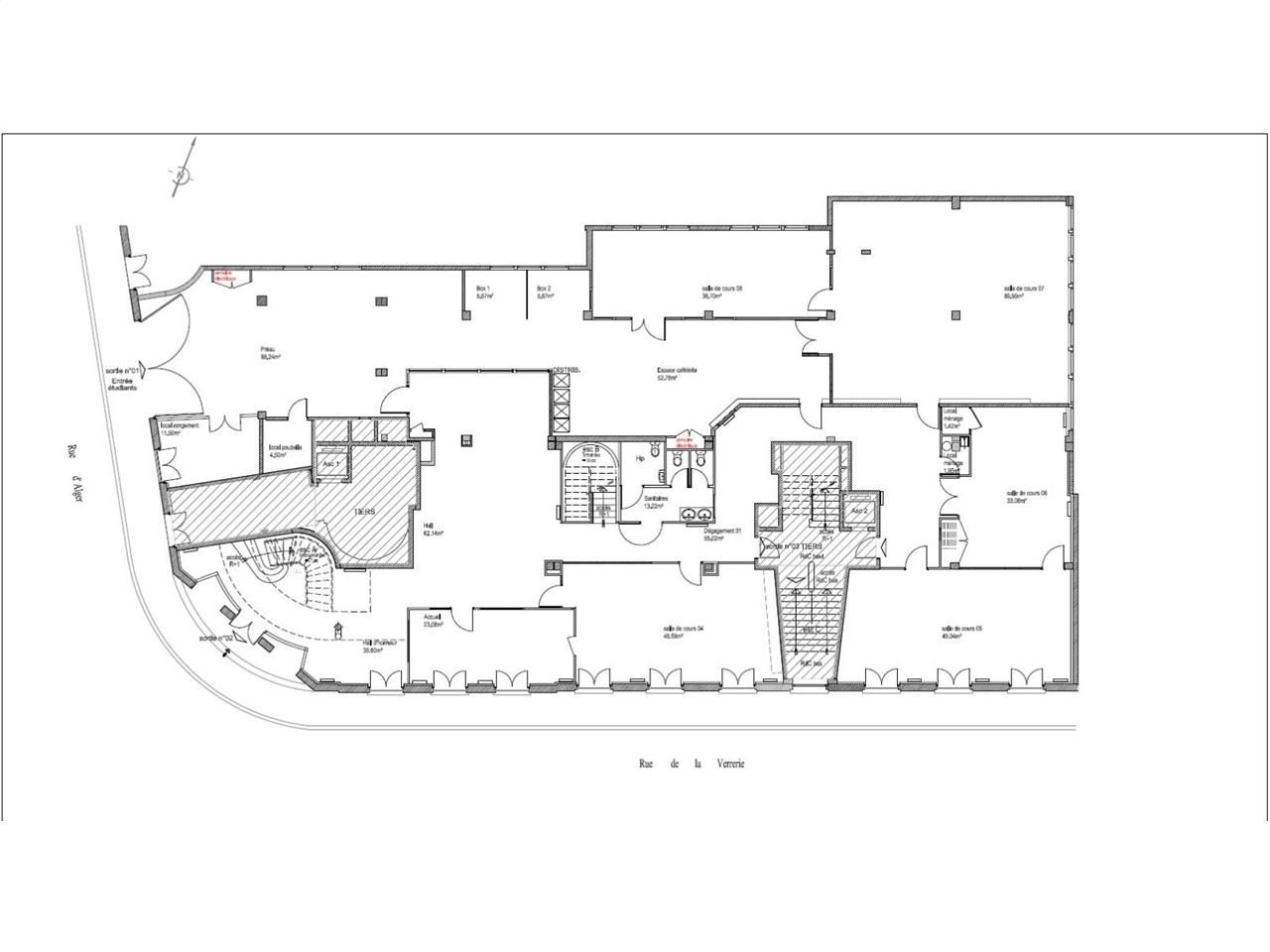
CBRE NANTES vous propose une surface de bureaux idéalement située au coeur du centre ville, à deux pas de la place Graslin, très facilement accessible en Tramway (ligne 1), environ 1000 m² , répartis sur deux niveaux indépendants. La surface disponible peut être adaptée pour des activités d'enseignement ou de réception public en ERP, stationnement possible en complément.
Les locaux sont aménagés, cloisonnés et fibrés. Idéal pour un centre de formation ou une école. Des parkings en sous-sol viennent compléter cette offre.
Impôt Foncier : 15,34 €/an HT
Régime Fiscal : Droits d'enregistrement
Dépôt de garantie : 3 mois de loyer HT/HC
Paiement Loyer : trimestriel
Honoraires : 5 % HT du prix de vente HD, à la charge de l'acquéreur
Prestations :
Accessibilité:
Bus Sanitat (11), Chantiers Navals (LU)
Tramway Chantiers Navals (1)
Transilien Gare Maritime (NL)
Les informations sur les risques auxquels ce bien est exposé sont disponibles sur le site Géorisques : www.georisques.gouv.fr
Les locaux sont aménagés, cloisonnés et fibrés. Idéal pour un centre de formation ou une école. Des parkings en sous-sol viennent compléter cette offre.
| Étage | Type | Surfaces | Dispo | Prix(m²) | Charges | Honoraires | Fiscal |
|---|---|---|---|---|---|---|---|
| RDC | Bureaux | 325 | Immédiate | 3542 m² HD | n.c. | 5 % HT du prix de vente HD, à la charge de l'acquéreur | Droits d'enregistrement |
| 1 | Bureaux | 642 | Immédiate | 3542 m² HD | n.c. | 5 % HT du prix de vente HD, à la charge de l'acquéreur | Droits d'enregistrement |
| SS | Parkings | Immédiate | 20000 place HD | 18 m²/an HT | 5 % HT du prix de vente HD, à la charge de l'acquéreur | Droits d'enregistrement |
Impôt Foncier : 15,34 €/an HT
Régime Fiscal : Droits d'enregistrement
Dépôt de garantie : 3 mois de loyer HT/HC
Paiement Loyer : trimestriel
Honoraires : 5 % HT du prix de vente HD, à la charge de l'acquéreur
Prestations :
- ERP : 5eme categ (Tout)
- Locaux aménagés, cloisonnés et fibrés
- Idéal pour un centre de formation : accès PMR et ERP 5
- Immeuble avec ascenseur
- Nombreux bureaux
- Espace cuisine/ cafétéria
- Eclairage leds
- Alarme
- Chauffage gaz individuel
- Sols : moquette, parquet et carrelage,
- Murs : peints
- Dalles de faux plafonds
- Locaux annexes en entresol :
- 250 à 300 m²
- Locaux à vélos
- Immeuble indépendant
- Surface RDC : 325 m²
Accessibilité:
Bus Sanitat (11), Chantiers Navals (LU)
Tramway Chantiers Navals (1)
Transilien Gare Maritime (NL)
Les informations sur les risques auxquels ce bien est exposé sont disponibles sur le site Géorisques : www.georisques.gouv.fr
Voir plus
Afficher les consommations énergétiques
Favoris
Exporter
Appeler
Contacter
Signaler cette annonce










