L’agence CBRE Bordeaux conseille et accompagne les chefs d’entreprise dans leurs projets immobiliers quels que soient leur taille et leur secteur d’activité. Spécialistes de la transaction de burea ...
En savoir plus

2 513 m² divisible dès 803 m²
Bureau à vendre - 2513 m²
Mérignac (33700)
Dernière mise à jour : Il y a 3 mois
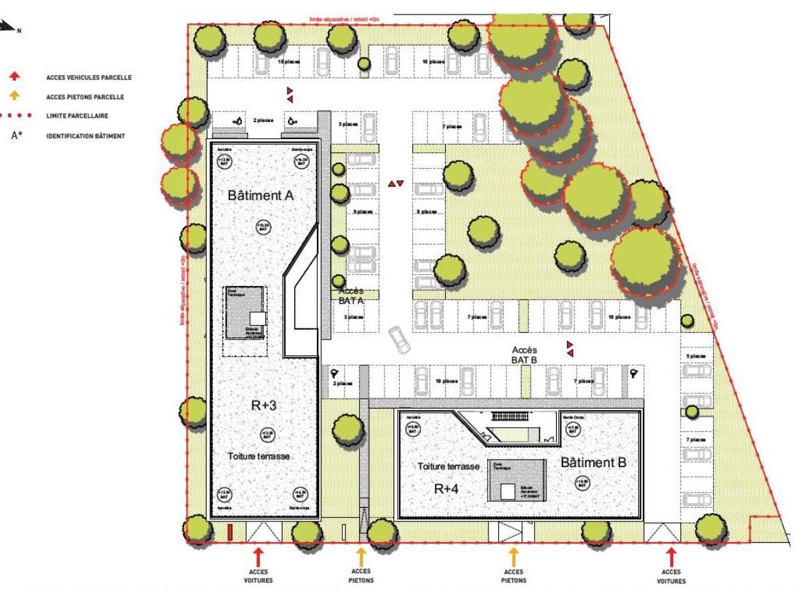
Située à Mérignac, dans le domaine de Pelus, à proximité de l'aéroport Bordeaux Mérignac et du tramway, ligne A, l'opération consiste en la construction de 2 immeubles de bureaux gravitant autour d'un parc arboré. Le programme développe au total 4 594 m² de bureaux.
Nombreux services et d'équipements de loisirs.
Immeubles RT 2012 et classés ERP de 5ème catégorie de type W.
Parc de stationnement protégé de 153 places.
Permis obtenu en février 2020.
Régime Fiscal : T.V.A.
Dépôt de garantie : 3 mois de loyer HT/HC
Prestations :
Accessibilité:
Tramway Lignes A & F - Arrêt "Cadéra-Issartier"
Bus Ligne 33 - Arrêt "Domaine de Pelus"
Aeroport Bordeaux-Mérignac à 3km
Route Rocade sortie n°11 ou 12
SNCF Bordeaux Saint-Jean à 13km
Les informations sur les risques auxquels ce bien est exposé sont disponibles sur le site Géorisques : www.georisques.gouv.fr
Nombreux services et d'équipements de loisirs.
Immeubles RT 2012 et classés ERP de 5ème catégorie de type W.
Parc de stationnement protégé de 153 places.
Permis obtenu en février 2020.
| Étage | Type | Surfaces | Dispo | Prix(m²) | Charges | Honoraires | Fiscal |
|---|---|---|---|---|---|---|---|
| 1 | Bureaux | 907,22 | 16 mois ap. déb. trx | 2800 m² HT | n.c. | T.V.A. | |
| 2 | Bureaux | 802,89 | 16 mois ap. déb. trx | 2800 m² HT | n.c. | T.V.A. | |
| 3 | Bureaux | 802,89 | 16 mois ap. déb. trx | 2800 m² HT | n.c. | T.V.A. |
Régime Fiscal : T.V.A.
Dépôt de garantie : 3 mois de loyer HT/HC
Prestations :
- RT 2012
- ERP de 5ème catégorie de type W
- Certifications BREEAM niveau GOOD et Wire Score niveau SILVER.
- Faux-plafond intérieur en dalles 60x60 sur ossature apparente - finition par voile minéral blanc
- Façades hautes performances thermique composée de :
- Un complexe panneau béton + isolant en doublage intérieurs (épaisseur de l'isolant selon calcul RT2012).
- Châssis vitrés - selon plans de façades - au module de 1.35m.
- Partie ouvrante de type châssis ouverture à la française avec limiteur d'ouverture - 1 châssis tous les 2.70 m.
- Protections solaires sur les façades Sud, Est et Ouest.
- Revêtement en dalles de moquette 60x60
- Les bureaux seront équipés de luminaires type pavés 60x60 à éclairage led (4000 Kelvin IRC>80) avec parois diffusantes, encastrés dans la grille des faux-plafond.
- Ces luminaires sont prévus répartis régulièrement dans la trame de faux plafond pour assurer un éclairement de 400Lux sur les postes de travail
- Les plateaux de bureaux sont pré-équipés en postes de travails alimentés sous plinthe PVC 2 compartiments tous les 2,70m.
- Composition d'un poste
- 3 PC 10/ 16A
- 1 conjoncteur RJ45 (non câblé) pour la téléphonie
- 1 conjoncteur RJ45 (non câblé) pour l'informatique
- Installation dédiée, de chauffage/rafraîchissement réversible VRV - 3 tubes fonctionnant à partir d'une pompe à chaleur / pilotée par une GTC.
- Installation dédiée de traitement d'air double flux pour l'ensemble des plateaux de bureaux
- Visiophonie (interphone) en liaison avec la platine de rue au droit des halls d'entrées
- Bâtiment A :
- 36 unités parkings couverts
- 48 unités parking aériens
- Bâtiment B :
- 12 unités parkings couverts
- 57 unités parking aériens
- Parkings couverts : loués 900 euros HT/U/an, vendus 15 500 HT/U/an
- Parkings aériens : loués 300 euros HT/U/an, vendus 5 500 euros HT/U/an
- Terrasse de 67 m²
- Terrasse de 42 m²
Accessibilité:
Tramway Lignes A & F - Arrêt "Cadéra-Issartier"
Bus Ligne 33 - Arrêt "Domaine de Pelus"
Aeroport Bordeaux-Mérignac à 3km
Route Rocade sortie n°11 ou 12
SNCF Bordeaux Saint-Jean à 13km
Les informations sur les risques auxquels ce bien est exposé sont disponibles sur le site Géorisques : www.georisques.gouv.fr
Voir plus
Afficher les consommations énergétiques
Favoris
Exporter
Appeler
Contacter
Signaler cette annonce










