L’agence CBRE Lyon conseille et accompagne les chefs d’entreprise dans leurs projets immobiliers quels que soient leur taille et leur secteur d’activité. Spécialistes de la transaction de bureaux, ...
En savoir plus

7 165 m² divisible dès 173 m²
Bureau à vendre - 7165 m²
Lyon 9 (69009)
Dernière mise à jour : Il y a 8 mois
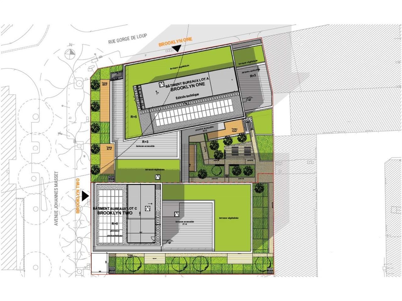
LE BROOKLYN , immeuble à taille humaine offrant une grande souplesse d'aménagement et répondant à toutes typologies d'entreprises, parfaitement situé à proximité des transports en commun et des accès autoroutiers.
Identité architecturale forte mettant en avant une offre servicielle pour le bien-être des utilisateurs (douches, espaces extérieurs.).
Aux portes de l'Ouest de Lyon et à moins de 15 minutes du centre-ville, le 9ème arrondissement bénéficie d'une accessibilité idéale avec ses deux gares TER, ses deux pôles TCL de Vaise et Gorge de Loup ainsi qu'une desserte autoroutière immédiate. De plus, ses quais sont reliés directement par le tunnel de la Croix-Rousse et donne une proximité immédiate à la Part-Dieu.
Son pôle numérique attire de nombreux leaders de l'ingénierie informatique, des éditeurs de logiciels et des activités supports. De grands groupes tels que des cabinets d'audit, équipementiers sportifs, mutuelles, banques et de la santé sont également bien installés sur le secteur.
Impôt Foncier : 22 €/m²/an HT
Régime Fiscal : T.V.A.
Dépôt de garantie : 3 mois de loyer HT/HC
Paiement Loyer : trimestriel
Honoraires : 2.5% HT du prix de vente HT/HD à la charge de l'acquéreur
Information sur le Bail :
Loyer terrasse: 113 euros (du RDC au R+3)et 120 euros HT HC/m²/an (R+4 et R+5) Loyer parking simple: 1 600 euros HT/unité/an Loyer parking double: 2 000 euros HT/unité/an
Prestations :
Accessibilité:
Autoroute Périphérique Nord à 15 min en voiture
Autoroute M6 direction Paris à 10 min en voiiture
Aeroport Lyon Saint-Exupéry à 33 min en voiture
Metro Ligne D (station Gorge de Loup) à 6 minutes à pied
Bus Bus 19 et 66 à 1 min à pied
SNCF Gare Part-Dieu en Métro D et B à 30 min
SNCF Gare Perrache en Métro D et A à 20 min
SNCF Gare de Vaise en Métro D à 13 min ou à 20 min à pied
. Velo'V : stations à proximité
Les informations sur les risques auxquels ce bien est exposé sont disponibles sur le site Géorisques : www.georisques.gouv.fr
Identité architecturale forte mettant en avant une offre servicielle pour le bien-être des utilisateurs (douches, espaces extérieurs.).
Aux portes de l'Ouest de Lyon et à moins de 15 minutes du centre-ville, le 9ème arrondissement bénéficie d'une accessibilité idéale avec ses deux gares TER, ses deux pôles TCL de Vaise et Gorge de Loup ainsi qu'une desserte autoroutière immédiate. De plus, ses quais sont reliés directement par le tunnel de la Croix-Rousse et donne une proximité immédiate à la Part-Dieu.
Son pôle numérique attire de nombreux leaders de l'ingénierie informatique, des éditeurs de logiciels et des activités supports. De grands groupes tels que des cabinets d'audit, équipementiers sportifs, mutuelles, banques et de la santé sont également bien installés sur le secteur.
| Étage | Type | Surfaces | Dispo | Prix(m²) | Charges | Honoraires | Fiscal |
|---|---|---|---|---|---|---|---|
| RDC | Bureaux | 318,2 | Décembre 2026 | 4650 m² HT | 25 m²/an HT | 2.5% HT du prix de vente HT/HD à la charge de l'acquéreur | T.V.A. |
| 1 | Bureaux | 299,2 | Décembre 2026 | 4650 m² HT | 25 m²/an HT | 2.5% HT du prix de vente HT/HD à la charge de l'acquéreur | T.V.A. |
| 1 | Bureaux | 221,4 | Décembre 2026 | 4650 m² HT | 25 m²/an HT | 2.5% HT du prix de vente HT/HD à la charge de l'acquéreur | T.V.A. |
| 1 | Bureaux | 190,3 | Décembre 2026 | 4650 m² HT | 25 m²/an HT | 2.5% HT du prix de vente HT/HD à la charge de l'acquéreur | T.V.A. |
| 1 | Bureaux | 174,8 | Décembre 2026 | 4650 m² HT | 25 m²/an HT | 2.5% HT du prix de vente HT/HD à la charge de l'acquéreur | T.V.A. |
| 2 | Bureaux | 299,4 | Décembre 2026 | 4650 m² HT | 25 m²/an HT | 2.5% HT du prix de vente HT/HD à la charge de l'acquéreur | T.V.A. |
| 2 | Bureaux | 221,5 | Décembre 2026 | 4650 m² HT | 25 m²/an HT | 2.5% HT du prix de vente HT/HD à la charge de l'acquéreur | T.V.A. |
| 2 | Bureaux | 190,9 | Décembre 2026 | 4650 m² HT | 25 m²/an HT | 2.5% HT du prix de vente HT/HD à la charge de l'acquéreur | T.V.A. |
| 2 | Bureaux | 174,8 | Décembre 2026 | 4650 m² HT | 25 m²/an HT | 2.5% HT du prix de vente HT/HD à la charge de l'acquéreur | T.V.A. |
| 3 | Bureaux | 378,9 | Décembre 2026 | 4650 m² HT | 25 m²/an HT | 2.5% HT du prix de vente HT/HD à la charge de l'acquéreur | T.V.A. |
| 3 | Bureaux | 337,5 | Décembre 2026 | 4650 m² HT | 25 m²/an HT | 2.5% HT du prix de vente HT/HD à la charge de l'acquéreur | T.V.A. |
| 3 | Bureaux | 219,9 | Décembre 2026 | 4650 m² HT | 25 m²/an HT | 2.5% HT du prix de vente HT/HD à la charge de l'acquéreur | T.V.A. |
| 3 | Bureaux | 172,9 | Décembre 2026 | 4650 m² HT | 25 m²/an HT | 2.5% HT du prix de vente HT/HD à la charge de l'acquéreur | T.V.A. |
| 4 | Bureaux | 272 | Décembre 2026 | 4950 m² HT | 25 m²/an HT | 2.5% HT du prix de vente HT/HD à la charge de l'acquéreur | T.V.A. |
| 4 | Bureaux | 244,1 | Décembre 2026 | 4950 m² HT | 25 m²/an HT | 2.5% HT du prix de vente HT/HD à la charge de l'acquéreur | T.V.A. |
| 5 | Bureaux | 272 | Décembre 2026 | n.c. | n.c. | 2.5% HT du prix de vente HT/HD à la charge de l'acquéreur | T.V.A. |
| 5 | Bureaux | 244 | Décembre 2026 | n.c. | n.c. | 2.5% HT du prix de vente HT/HD à la charge de l'acquéreur | T.V.A. |
| RDC | Bureaux | 301,7 | Avril 2027 | 4650 m² HT | 25 m²/an HT | 2.5% HT du prix de vente HT/HD à la charge de l'acquéreur | T.V.A. |
| RDC | Bureaux | 180,5 | Avril 2027 | 4650 m² HT | 25 m²/an HT | 2.5% HT du prix de vente HT/HD à la charge de l'acquéreur | T.V.A. |
| 1 | Bureaux | 335,9 | Avril 2027 | 4650 m² HT | 25 m²/an HT | 2.5% HT du prix de vente HT/HD à la charge de l'acquéreur | T.V.A. |
| 1 | Bureaux | 323 | Avril 2027 | 4650 m² HT | 25 m²/an HT | 2.5% HT du prix de vente HT/HD à la charge de l'acquéreur | T.V.A. |
| 2 | Bureaux | 335,9 | Avril 2027 | 4650 m² HT | 25 m²/an HT | 2.5% HT du prix de vente HT/HD à la charge de l'acquéreur | T.V.A. |
| 2 | Bureaux | 323 | Avril 2027 | 4650 m² HT | 25 m²/an HT | 2.5% HT du prix de vente HT/HD à la charge de l'acquéreur | T.V.A. |
| 3 | Bureaux | 336,6 | Avril 2027 | 4650 m² HT | 25 m²/an HT | 2.5% HT du prix de vente HT/HD à la charge de l'acquéreur | T.V.A. |
| 3 | Bureaux | 318,3 | Avril 2027 | 4650 m² HT | 25 m²/an HT | 2.5% HT du prix de vente HT/HD à la charge de l'acquéreur | T.V.A. |
| 4 | Bureaux | 239 | Avril 2027 | 4950 m² HT | 25 m²/an HT | 2.5% HT du prix de vente HT/HD à la charge de l'acquéreur | T.V.A. |
| 5 | Bureaux | 239 | Avril 2027 | 4950 m² HT | 25 m²/an HT | 2.5% HT du prix de vente HT/HD à la charge de l'acquéreur | T.V.A. |
Impôt Foncier : 22 €/m²/an HT
Régime Fiscal : T.V.A.
Dépôt de garantie : 3 mois de loyer HT/HC
Paiement Loyer : trimestriel
Honoraires : 2.5% HT du prix de vente HT/HD à la charge de l'acquéreur
Information sur le Bail :
Loyer terrasse: 113 euros (du RDC au R+3)et 120 euros HT HC/m²/an (R+4 et R+5) Loyer parking simple: 1 600 euros HT/unité/an Loyer parking double: 2 000 euros HT/unité/an
Prestations :
- Immeuble Code du Travail
- Labels HQE, RE 2020, Ready to Osmoz
- ERP 5 type W
- Plateaux de 1 500 m² divisibles dès 159 m²
- 30% de stationnements équipés de bornes de recharges électriques
- Local vélos, douches et vestiaires
- Effectif technique CVC : 1 pour 10 m² de SU
- Bureaux livrés hors aménagement
- Charges d'exploitation Bureaux (plancher courant) : 350 kg/m²
- Terrasses privatives - Jardins
- Revêtement de sol moquette en dalles plombantes 50 x 50 cm pour les Bureaux
- Chauffage et rafraîchissement traités par des unités terminales situées au plafond, type ventilo-convecteur gainable, à raison d'un ventilo-convecteur toutes les 2 trames de 1.35 ml environ
- Brise soleil orientable (BSO)
- 2 ascenseurs par bâtiment d'une charge maximale de 630 kg avec porte passage libre 90 cm
- Débit d'air: 36 m3/h
- Stationnement : 1 place pour 107 m²
- Surface RDC : 800,4 m²
Accessibilité:
Autoroute Périphérique Nord à 15 min en voiture
Autoroute M6 direction Paris à 10 min en voiiture
Aeroport Lyon Saint-Exupéry à 33 min en voiture
Metro Ligne D (station Gorge de Loup) à 6 minutes à pied
Bus Bus 19 et 66 à 1 min à pied
SNCF Gare Part-Dieu en Métro D et B à 30 min
SNCF Gare Perrache en Métro D et A à 20 min
SNCF Gare de Vaise en Métro D à 13 min ou à 20 min à pied
. Velo'V : stations à proximité
Les informations sur les risques auxquels ce bien est exposé sont disponibles sur le site Géorisques : www.georisques.gouv.fr
Voir plus
Afficher les consommations énergétiques
Favoris
Exporter
Appeler
Contacter
Signaler cette annonce










