Située dans le 3ème arrondissement de Lyon au 15 rue des Cuirassiers, notre agence compte environ 35 collaborateurs expérimentés pour vous accompagner tout au long de la mise en œuvre de votre proj ...
En savoir plus

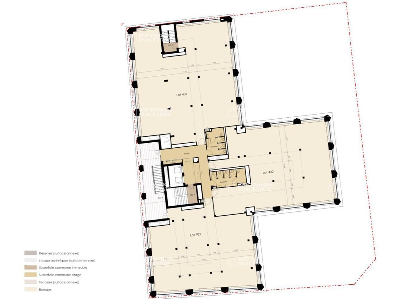
Bureau à vendre - 7080 m²
LES BROTTEAUX : Le coeur vibrant du quartier résidentiel de Lyon 6, animé de restaurants prisés avec d'agréables terrasses, il offre une véritable vie de quartier avec ses commerces et ses squares et la proximité du Parc de la Tête d'or, véritable poumon vert de la Ville.
LA PART DIEU : côté business. Construit autour de la gare TGV, en liaison directe avec Paris et l'Europe, le quartier d'affaires de Lyon Part-Dieu s’est imposé comme le deuxième pôle tertiaire et de décision français après la Défense. Plus de 2 500 établissements emploient quelques 56 000 salariés, sur près de 1.650 000 m² de bureaux.
La Métrople a engagé un projet urbain d’envergure de régénération du quartier de la Part Dieu autour de la restructuration de la gare et du centre commercial, facilitant les déplacements repensés, avec un développement urbain plus vertueux.
L'enjeu de la Part Dieu ? Un Pole d'affaires qui se réinvente, un quartier apaisé et végétalisé, intégrant les enjeux du changement climatique : des mobilités décarbonnées avec de véritables itinéraires cyclables, la création d'une canopée pour des ilots de fraicheur permettant de vivre la ville autrement, la régénération des bâtiments existants privilégiée pour réduire l'impact carbone.
Porte d’entrée de la Métropole, Lyon Part-Dieu est un lieu d’échanges et de distribution des flux, traversé par un demi-million de déplacements quotidiens :
- La Part Dieu est un véritable hub de mobilités, avec le plus important pôle multimodal de transports urbains : TGV, TER, Tramways (T1-T3-T4), Métro (ligne B), 11 lignes de bus, gare routière, connexion à l’aéroport international Saint Exupéry par la navette Rhon’Express
Une offre de services très diversifiée :
- Une centaine de restaurants grandes enseignes, grandes tables, offre de restauration traditionnelle ou rapide
- Une offre d'hôtellerie diversifiée : 2 000 chambres de 1 à 4 étoiles en hôtels et résidences hôtelières.
- Le 1er centre commercial urbain d'Europe fréquenté par 34 millions de visiteurs.
- Une offre culturelle et de loisirs étendue : Médiathèque centrale de Lyon, Halles Paul Bocuse, Auditorium, cinémas multiplexes.
- Plusieurs équipements sportifs, privés et publics : piscine, gymnase, halle de sport, clubs privés de fitness, squash..
Le quartier de la Part Dieu représente aujourd’hui le quartier central des affaires de Lyon et le premier quartier d’affaires régional.
De nombreux projets tertiaires et de logements sont en cours pour offrir une offre tertiaire renouvelée, vertueuse et en phase avec les nouveaux usages, l'hybridation des espaces de travail, le flexoffice et le télétravail. Après la livraison dans la décennie 2010/2020 de plusieurs tours qui ont redessiné la skyLine (Oxygène, Incity, Sky 56, Silex², puis To-Lyon), de nombreux projets de restructuration ambitieuse déjà livrés (Campus Orange, NewAge, Etoile Part Dieu, Corner) puis début 2025 (Audessa, Primatvera, Next) proposent désormais au sein même des immeubles de bureaux une offre servicielle étendue plébiscitée par les utilisateurs de bureaux. Une nouvelle phase est lancée (233 Lafayette, MPlus, VEJJO) ou en développement qui va compléter la régénération du Parc de Bureaux de la Part Dieu pour répondre aux aspirations de centralité des entreprises.
Un quartier à vivre
Lyon Part-Dieu bénéficie d'ores et déjà d'un cadre de vie et de travail facilité par la présence d'une offre importante de loisirs, de culture, de commerces, de services et de restaurants.
Le quartier est plus animé, actif et accueillant, avec de nouveaux logements, des commerces et services en pied d'immeubles au coeur du quartier, un centre commercial complètement repensé, des institutions culturelles plus visibles et mieux reliées entre elles.
Des espaces publics requalifiés et végétalisés proposeront des lieux de pause agréables avec des espaces verts, véritables ilots de fraicheur, favorisant l'orientation et les déplacements des nombreux piétons.
Plus humain et plus vivant, le quartier est désormais agréable et attractif après les heures de bureau, et une nouvelle destination urbaine le soir et le week-end au cœur de Lyon, pour se détendre, se cultiver et se divertir.
Plusieurs parkings publics, des stations d'auto-partage, un réseau dense de Vélo'V et des voies vélos sécurisées facilitent les déplacements en mode doux ou en voiture.
Disponibilité: 30 mois après accordHonoraires: 2% HT du prix HT/HD. à la signature de l'acte
| Fiche technique du bien | |
|---|---|
| Métro | Ligne B & A 5 min |
| Bus | Lignes 27 et C16 à 1 mn, Lignes 70, 37 et C1 |
| Tramway | T1 et T4 station "Collège Bellecombe" 1 min |
| Aéroport | Lyon Saint Exupery en voiture/ 30 min en RhônExpress 35 min |
| Gare | Part Dieu à pied & 3 min en Tramway 11 min |
| Accès Pers. Mobilité Réduite | Oui |
| Immeuble | Grand Plateau efficients et lumineux de 1 000m² SUBL adaptés aux nouveaux usages |
| Parking(s) | 34 Places dont 9 places avec bornes de recharge IRVE |
| Immeuble indépendant | Oui |
| Type chauffage | Urbain Production chauffage et climatisation |
| Restauration | offre très variée : brasseries, étoilé, adresses branchées ou saladeries |
| Environnement de proximité | Quartier animé des Brotteaux à 5mn à pied : restaurants, commerces |
| Gestion technique centralisée | Oui |
| Sécurité | Contrôle d'accès |
| Fenêtres | Protections solaires assurées par des BSO motorisés extérieurs en façade Est, Ouest et Sud |
| Fenêtres | Stores intérieurs au RDC et R+1 |
| Aménagement des bureaux | plateaux livrés aménagés non cloisonnés, offrant une grande flexibilité d'aménagements |
| Faux plancher | recouvert de moquette en dalles |
| Faux plafond | Dal. fibres minéral. |
| Hauteur sous-plafond | 2,68 mètre(s) |
| Eclairage Bureaux | 100% LED encastrés et/ou suspendus asservis à un détecteurs de présence et de luminosité |
| Autre élément bureau | Nourrices composées de 3 PC + 1 emplacement RJ45 par poste de travail par personnes admissible |
| Autre élément bureau | 100% des bureaux en 1er jour |










