Leader mondial des services dédiés à l'immobilier d'entreprise, Cushman & Wakefield accompagne ses clients dans la transformation de leurs modes de travail, de consommation et de vie. Nos 43 000 co ...
En savoir plus



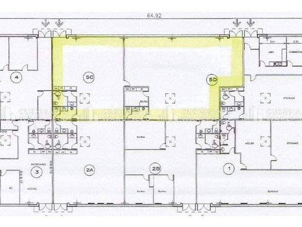
332 m² divisible dès 131 m²
Bureau à vendre - 332 m²
Illkirch-Graffenstaden (67400)
Publiée : Il y a 7 jours
Immeuble de plain pied à usage de bureaux, situé au coeur du Parc d'Innovation d'Illkirch, en proximité des services. Bureaux en RDC à vendre, avec accès direct depuis l'extérieur Le parc d''Innovation (PII) est un parc d''activité technologique développé sur 170 ha, situé au sud de l''agglomération sur le banc communal d''Illkirch. Parfaitement embranché aux axes routiers et desservi par les transports en commun, le site bénéficie de nombreux services Il a été concu, dès sa création, comme un lieu de rencontre entre la recherche et l'innovation au service du développement des entreprises de hautes technologies. L''enjeu est d''offrir un site spécialement dédié à l''accueil et au développement d''entreprises dans les domaines de la recherche et de l''innovation, notamment en chimie, en biotechnologie, en informatique et dans les "green-tech". Le Parc d'Innovation fait partie intégrante du dispositif régional de l'innovation et constitue l''un des atouts majeurs du pôle de compétitivité BioValley France à vocation mondiale pour les innovations thérapeutiques. Cette vocation se trouve aujourd''hui confirmée, ou l''on retrouve un véritable concentré de services et d'infrastructures d'exception fédérant l'Université, l'entreprise et les services. Le Parc d'Innovation est labellisé ZA THD (Zone d'Activité Très Haut Débit). Il offre des solutions immobilières tant à la location qu''à l''achat dans des immeubles de bureaux de qualité ou des immeubles dits " scientifiques " destinés à accueillir de la petite activité ou du laboratoire. De nombreux services sont également proposés à proximité : restauration, restauration rapide, hôtellerie, banque, professions médicales et paramédicales, activités de bien être, résidence étudiante, crèche d'entreprise, salle de sport, ... Immeuble scientifique à usage de bureaux, laboratoires, situé dans le Parc d'Innovation d'Illkirch. Bureaux à vendre. Le département Bureaux & Investissement de Cushman & Wakefield Strasbourg est à votre entière disposition pour visiter ces bureaux à louer ou à acheter au sein du Parc d''Innovation à ILLKIRCH. N'hésitez plus, contactez-nous ! Plateau de bureaux de 332 m², possibilité de division en deux lots de 201 et 131 m². . Revêtement de sol moquette . Murs peints . Faux plafonds en dalles minérales avec luminaires LED . Double vitrage . Stores intérieurs . Chauffage et climatisation en système réversible / ventilo convecteurs . Kitchenette . Sanitaires privatifs Fibre optique dans l'immeuble Cloisonnement : 6 bureaux, 2 salles de réunion, 1 salle archives, 1 local technique, 1 kitchenette, sanitaires pivatifs 11 parkings extérieurs Tram : ligne A arrêt Campus d'Illkirch Bus : ligne 63 arrêt Tobias STIMMER Accès routier : autoroute A 35 sortie illkirch Nord
Voir plus
Afficher les consommations énergétiques
Surfaces divisibles : 2
| Surface | PrixHD/HH/m² | Étage / Batiment |
| 131 m² | 161785 € | 0 |
| 201 m² | 248235 € | 0 |
Localisation et transport aux alentours
Favoris
Exporter
Appeler
Contacter
Signaler cette annonce










