Conseil en immobilier d'entreprise, Cushman & Wakefield est un acteur incontournable au rayonnement international. Cushman & Wakefield offre des solutions dans toutes les étapes que comporte un p ...
En savoir plus



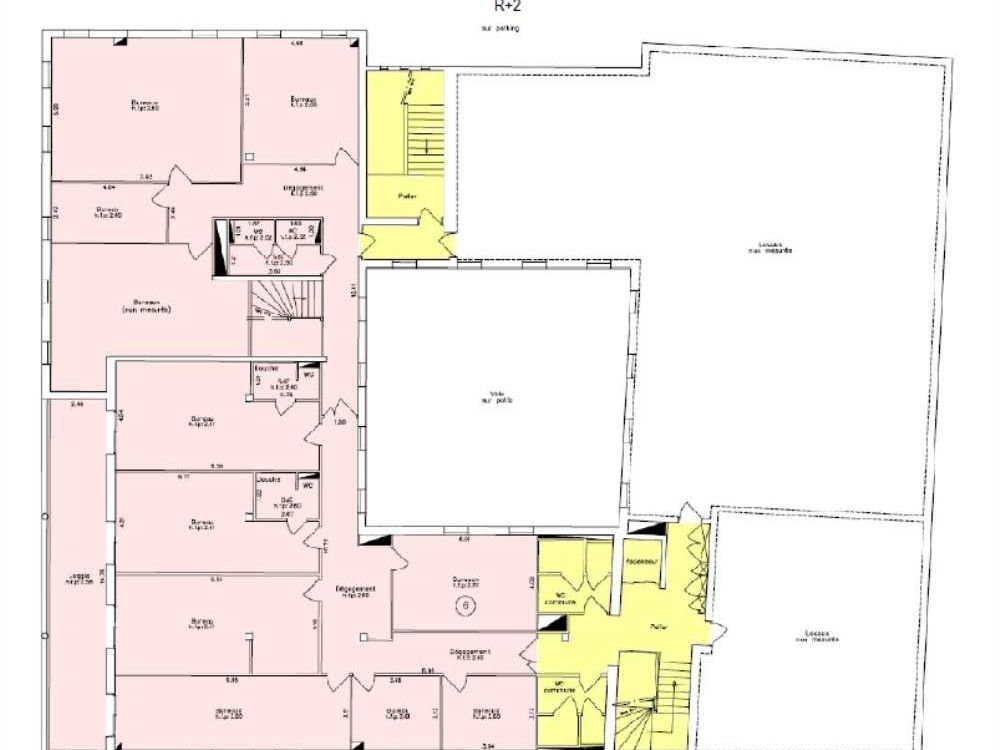
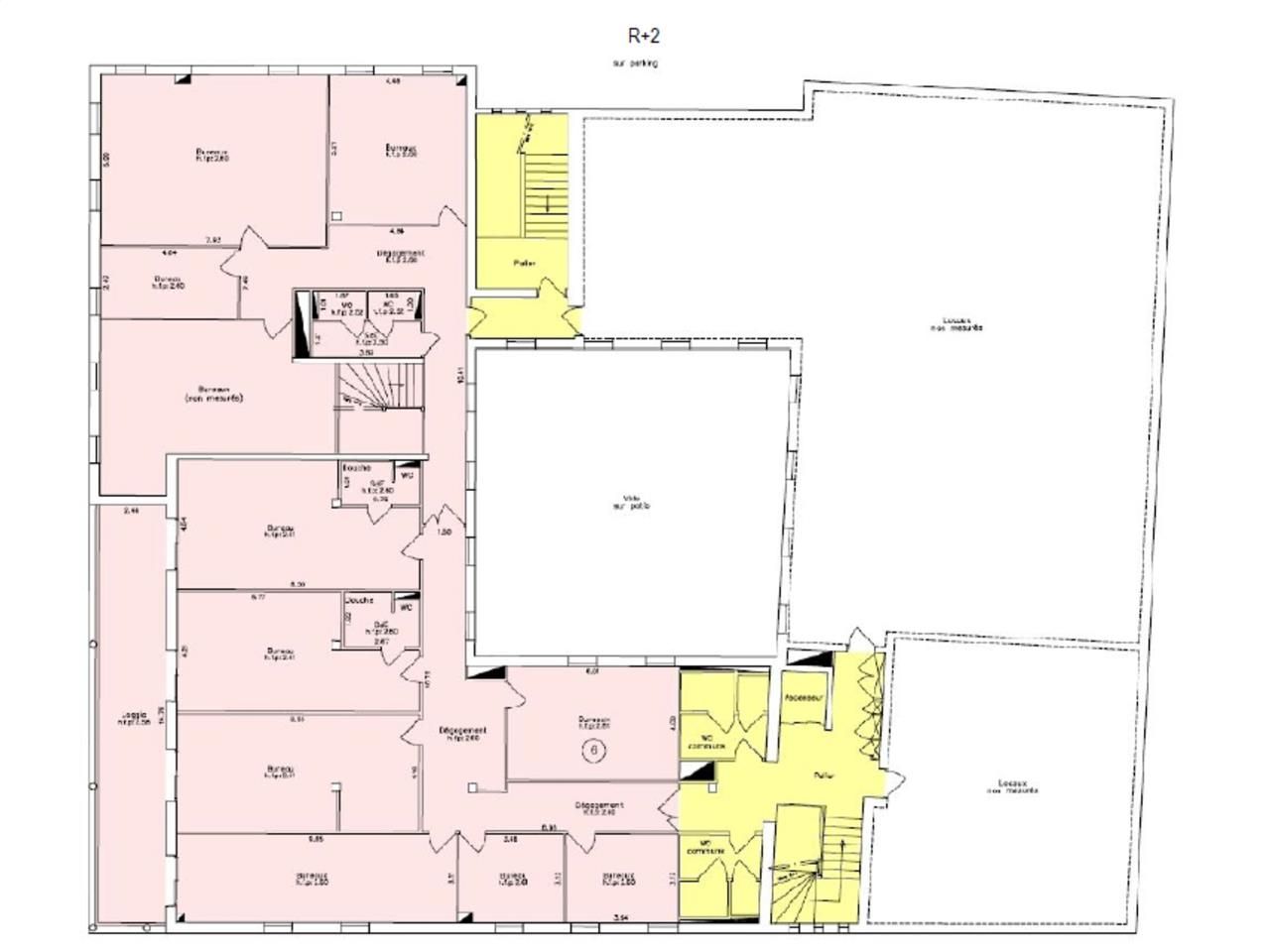
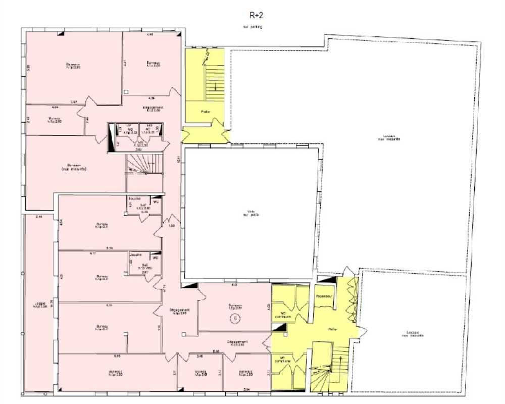
382 m²
STRATTON - Bureau à vendre - 382 m²
Dardilly (69570)
Dernière mise à jour : Il y a 3 jours
Bureaux à vendre Dardilly!
Immeuble STRATTON
Cushman & Wakefield vous propose à la location ou à la vente des bureaux situés dans l'immeuble "Le Stratton", à Dardilly, chemin du Tronchon, au coeur de l'Ouest lyonnais. Cette surface de bureaux de 382 m² au deuxième étage, entièrement cloisonnée et câblée, offre un environnement de travail fonctionnel, immédiatement opérationnel pour toute entreprise souhaitant s'implanter dans un secteur stratégique. Le bien bénéficie également d'un atout rare et apprécié : une terrasse privative, idéale pour créer un espace de détente extérieur ou recevoir dans un cadre agréable. L'immeuble, récent et de très bon standing, garantit un confort optimal à vos collaborateurs ainsi qu'une excellente image de marque pour vos clients et partenaires. Sa localisation, à proximité immédiate des axes majeurs de circulation et des portes de Lyon, assure une accessibilité optimale, tant en voiture qu'en transports en commun. L'offre comprend également 9 places de parking privatives, ajoutant un véritable avantage en termes de praticité pour vos équipes comme pour vos visiteurs. Cet emplacement de qualité, allié à des prestations complètes, représente une opportunité idéale pour les entreprises à la recherche de visibilité, de confort et de connectivité dans un environnement professionnel dynamique.
Impôt Foncier : 19 €//m²/an
Honoraires : 5 % HT du prix de vente HD à la charge de l'acquéreur
Information sur le Bail :
Prix location et vente parking inclus
Prestations :
Accessibilité:
SNCF SNCF Gare Lyon Part-Dieu à 23 min
SNCF SNCF Gare Lyon Perrache à 16 min
SNCF SNCF Gare de Vaise à proximité
Bus Bus 6-89-Ge 4 - arrêt le Paisy
Accès routier Autoroutes A6-A7
Accès routier Périph Nord à 5 km
Les informations sur les risques auxquels ce bien est exposé sont disponibles sur le site Géorisques : www.georisques.gouv.fr
Immeuble STRATTON
Cushman & Wakefield vous propose à la location ou à la vente des bureaux situés dans l'immeuble "Le Stratton", à Dardilly, chemin du Tronchon, au coeur de l'Ouest lyonnais. Cette surface de bureaux de 382 m² au deuxième étage, entièrement cloisonnée et câblée, offre un environnement de travail fonctionnel, immédiatement opérationnel pour toute entreprise souhaitant s'implanter dans un secteur stratégique. Le bien bénéficie également d'un atout rare et apprécié : une terrasse privative, idéale pour créer un espace de détente extérieur ou recevoir dans un cadre agréable. L'immeuble, récent et de très bon standing, garantit un confort optimal à vos collaborateurs ainsi qu'une excellente image de marque pour vos clients et partenaires. Sa localisation, à proximité immédiate des axes majeurs de circulation et des portes de Lyon, assure une accessibilité optimale, tant en voiture qu'en transports en commun. L'offre comprend également 9 places de parking privatives, ajoutant un véritable avantage en termes de praticité pour vos équipes comme pour vos visiteurs. Cet emplacement de qualité, allié à des prestations complètes, représente une opportunité idéale pour les entreprises à la recherche de visibilité, de confort et de connectivité dans un environnement professionnel dynamique.
| Étage | Type | Surfaces | Dispo | Prix(m²) | Charges | Honoraires | Fiscal |
|---|---|---|---|---|---|---|---|
| 2 | Bureaux | 382 | Immédiate | 2618 /m² HD.HT | n.c. | 5 % HT du prix de vente HD à la charge de l'acquéreur | |
| Parkings | Immédiate | 5555 /U HD.HT | n.c. | 5 % HT du prix de vente HD à la charge de l'acquéreur |
Impôt Foncier : 19 €//m²/an
Honoraires : 5 % HT du prix de vente HD à la charge de l'acquéreur
Information sur le Bail :
Prix location et vente parking inclus
Prestations :
- Sur la commune de Dardilly, au coeur de l'ouest lyonnais, à proximité de la Nationale 6, dans la zone de TECHLID
- Immeuble de bon standing
- Ascenseur
- Interphone
- De nombreux restaurants à proximité.
- Sol PVC
- Faux plafond
- Vitrage important
- Éclairage encastré
- Climatisation VRV 3 Tubes
- Goulotte en périphérie
- Interphone
- Terrasse privative
- Bloc sanitaire commun par étage
- Ascenseur
- Surface RDC : 0 m²
Accessibilité:
SNCF SNCF Gare Lyon Part-Dieu à 23 min
SNCF SNCF Gare Lyon Perrache à 16 min
SNCF SNCF Gare de Vaise à proximité
Bus Bus 6-89-Ge 4 - arrêt le Paisy
Accès routier Autoroutes A6-A7
Accès routier Périph Nord à 5 km
Les informations sur les risques auxquels ce bien est exposé sont disponibles sur le site Géorisques : www.georisques.gouv.fr
Voir plus
Afficher les consommations énergétiques
Localisation et transport aux alentours
Favoris
Exporter
Appeler
Contacter
Signaler cette annonce










