Nous sommes Immprove, une grande équipe de plus de 200 experts en immobilier d’entreprise, implantés localement avec plus de 20 agences sur tout le territoire.Depuis 2009, notre proximité, notre ét ...
En savoir plus

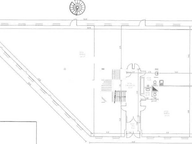
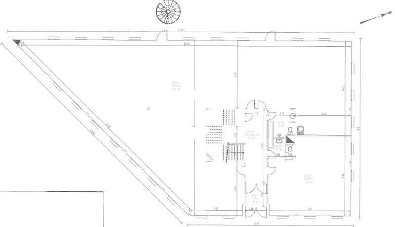
426 m² divisible dès 186 m²
EUROPARC DU CHENE - Bureau à vendre - 426 m²
Bron (69500)
Dernière mise à jour : Il y a 2 mois
Opportunité bureaux à vendre - Bron
Immeuble EUROPARC DU CHENE
Immprove vous propose deux plateaux de bureaux disponibles à la vente, en bon état, au sein d'un parc tertiaire situé au 13 rue Edison à Bron.
L'offre se compose d'un plateau vacant de 240 m² et un plateau loué de 186 m², avec possibilité de les vendre indépendamment.
Idéalement situé à proximité des principaux axes routiers, des transports en communs (bus et tramway) et des points de restaurations.
28 stationnements extérieurs de disponibles, à répartir avec les deux surfaces à vendre.
Régime Fiscal : Droits d'enregistrement
Honoraires : 2,5 % HT du prix de vente HDE à la charge de l'acquéreur, payables à la signature de l'acte
Prestations :
Accessibilité:
Autoroute A43 et RN6, à 15 mn de la Gare TGV de la Part-Dieu
Aéroport Saint-Exupéry à 15 min
Aéroport Bron à moins de 5 min
Bus Lignes 52, 24, 64, 78 et 79
Les informations sur les risques auxquels ce bien est exposé sont disponibles sur le site Géorisques : www.georisques.gouv.fr
Immeuble EUROPARC DU CHENE
Immprove vous propose deux plateaux de bureaux disponibles à la vente, en bon état, au sein d'un parc tertiaire situé au 13 rue Edison à Bron.
L'offre se compose d'un plateau vacant de 240 m² et un plateau loué de 186 m², avec possibilité de les vendre indépendamment.
Idéalement situé à proximité des principaux axes routiers, des transports en communs (bus et tramway) et des points de restaurations.
28 stationnements extérieurs de disponibles, à répartir avec les deux surfaces à vendre.
| Étage | Type | Surfaces | Dispo | Prix(m²) | Charges | Honoraires | Fiscal |
|---|---|---|---|---|---|---|---|
| R+1 | Bureaux | 240,05 | Immédiate | 1850 HDE/m² | n.c. | 2,5 % HT du prix de vente HDE à la charge de l'acquéreur, payables à la signature de l'acte | Droits d'enregistrement |
| R+1 | Bureaux | 186,13 | Loué | 1850 HDE/m² | n.c. | 2,5 % HT du prix de vente HDE à la charge de l'acquéreur, payables à la signature de l'acte | Droits d'enregistrement |
| Parkings | Immédiate | 5000 HDE/U | n.c. | 2,5 % HT du prix de vente HDE à la charge de l'acquéreur, payables à la signature de l'acte | Droits d'enregistrement |
Régime Fiscal : Droits d'enregistrement
Honoraires : 2,5 % HT du prix de vente HDE à la charge de l'acquéreur, payables à la signature de l'acte
Prestations :
- Immeuble ancien
- Climatisation réversible
- Bon état
- Moquette
- Cloisonnement amovible
- Plinthes périphériques
Accessibilité:
Autoroute A43 et RN6, à 15 mn de la Gare TGV de la Part-Dieu
Aéroport Saint-Exupéry à 15 min
Aéroport Bron à moins de 5 min
Bus Lignes 52, 24, 64, 78 et 79
Les informations sur les risques auxquels ce bien est exposé sont disponibles sur le site Géorisques : www.georisques.gouv.fr
Voir plus
Afficher les consommations énergétiques
Localisation et transport aux alentours
Favoris
Exporter
Appeler
Contacter
Signaler cette annonce










