Besoin d'un conseil en immobilier ? Nous sommes une équipe dédiée à 100% à nos clients utilisateurs avec des services variés (stratégie immobilière, recherche immobilière, renégociation de bail, dé ...
En savoir plus

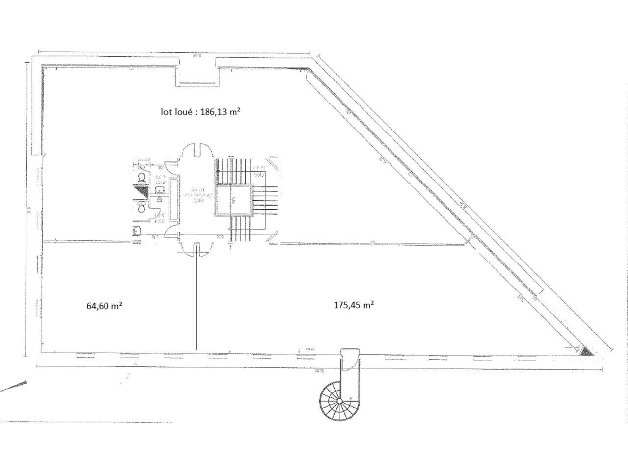
362 m² divisible dès 175 m²
Bureau à vendre - 362 m²
Bron (69500)
Dernière mise à jour : Il y a 2 mois
Bureaux à vendre au coeur du Parc Tertiaire du Chêne
Savills vous propose à la vente des bureaux de 361 m², divisibles à partir de 175 m², avec places de parking disponibles. Ce bien est situé au coeur du Parc Tertiaire du Chêne.
Parfaitement positionné, il offre une accessibilité idéale grâce à sa proximité avec l'aéroport, l'autoroute A43 et les stations de bus.
Régime Fiscal : Droits d'enregistrement
Honoraires : 2,5 % HT du prix de vente HT ou HD, à la charge de l'acquéreur
Prestations :
Accessibilité:
Bus N°52 station " Triangle de Bron" à 12 min à pied
Bus N°26 et N°93 station " Cimetière Communautaire" à 25 min à pied
Autoroute A43 à proximité
Les informations sur les risques auxquels ce bien est exposé sont disponibles sur le site Géorisques : www.georisques.gouv.fr
Savills vous propose à la vente des bureaux de 361 m², divisibles à partir de 175 m², avec places de parking disponibles. Ce bien est situé au coeur du Parc Tertiaire du Chêne.
Parfaitement positionné, il offre une accessibilité idéale grâce à sa proximité avec l'aéroport, l'autoroute A43 et les stations de bus.
| Étage | Type | Surfaces | Dispo | Prix(m²) | Charges | Honoraires | Fiscal |
|---|---|---|---|---|---|---|---|
| 1 | Bureaux | 186,13 | Immédiate | 1850 m² HD | n.c. | 2,5 % HT du prix de vente HT ou HD, à la charge de l'acquéreur | Droits d'enregistrement |
| 1 | Bureaux | 175,45 | Immédiate | 1850 m² HD | n.c. | 2,5 % HT du prix de vente HT ou HD, à la charge de l'acquéreur | Droits d'enregistrement |
| Parkings | Immédiate | 5000 place HD | n.c. | 2,5 % HT du prix de vente HT ou HD, à la charge de l'acquéreur | Droits d'enregistrement |
Régime Fiscal : Droits d'enregistrement
Honoraires : 2,5 % HT du prix de vente HT ou HD, à la charge de l'acquéreur
Prestations :
- Le Parc Paysager Tertiaire du Chêne, s'étendant sur environ 40 hectares, constitue la zone d'activité la plus récente de Bron. Idéalement situé à proximité immédiate de l'aéroport et de l'autoroute A43, ce parc accueille pas moins de 170 entreprises, regroupant plus de 3 000 collaborateurs.
- Cloisonnement amovible
- Climatisation réversible
- Moquette
- Faux plafond
- Eclairage néons
- Immeuble indépendant
Accessibilité:
Bus N°52 station " Triangle de Bron" à 12 min à pied
Bus N°26 et N°93 station " Cimetière Communautaire" à 25 min à pied
Autoroute A43 à proximité
Les informations sur les risques auxquels ce bien est exposé sont disponibles sur le site Géorisques : www.georisques.gouv.fr
Voir plus
Afficher les consommations énergétiques
Localisation et transport aux alentours
Favoris
Exporter
Appeler
Contacter
Signaler cette annonce
