Prolocaux est un acteur de l'immobilier d'entreprise spécialisé dans la location, la vente et l'acquisition de biens professionnels en région.Présents depuis 2015 en Normandie, dans les Hauts-de-Fr ...
En savoir plus

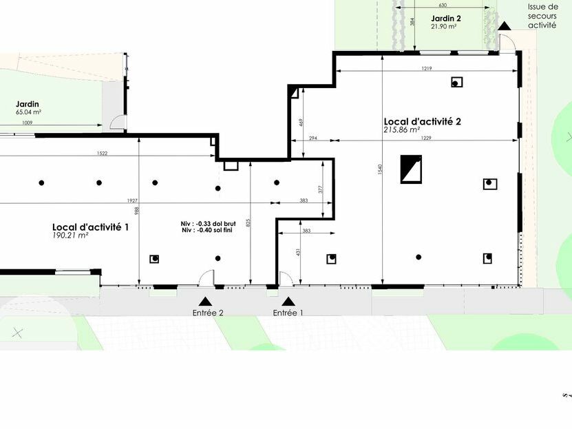
Bureau à vendre - 406 m²
Nous vous proposons à la vente un local en rez-de-chaussée à usage de bureaux / local d'activité, au sein d'un programme immobilier neuf en cours de réalisation, situé à Bois-Guillaume, Route de Neufchâtel.
Le local est vendu en VEFA et développe une surface totale d'environ 406 m² en rez-de-chaussée.
L'ensemble est divisible à partir d'environ 190 m², selon la configuration suivante :
lot 1 : environ 190 m²
lot 2 : environ 216 m²
Chaque lot dispose de son propre accès, permettant une occupation indépendante ou une acquisition en globalité.
Les locaux seront livrés brut de béton, fluides en attente, offrant une grande liberté d'aménagement selon le projet de l'acquéreur.
Le bien est destiné à des usages de bureaux, activité tertiaire ou activité légère compatible avec un local en rez-de-chaussée.
Ces bureaux / locaux d'activité vous sont proposés à la vente par PROLOCAUX.
Les informations sur les risques auxquels ce bien est exposé sont disponibles sur le site Géorisques : www.georisques.gouv.fr
Sofia OLIVEIRA, agent commercial PROLOCAUX - inscrite au RSAC d'EVREUX sour le numéro 838 485 571
A vendre, local d'environ 406 m² livré en VEFA
livraison brute de béton
fluides en attente
locaux en rez-de-chaussée
surface majoritairement ouverte
plusieurs accès
parkings dispos en supplément
Accessibilité :
- Bus Parc Andersen (8m) - supérieur à Lignes : F1, F8
- Bus Mairie de Bois-Guillaume (323m) - supérieur à Lignes : F1, F8
- Bus Sainte-Venise - C.H.U. (325m) - supérieur à Lignes : F8
- Bus Max Pouchet (373m) - supérieur à Lignes : F8, 10
- Bus Le Cèdre - C.H.U. (456m) - supérieur à Lignes : F1
Disponibilité : 3ème trimestre 2027
Prix de vente : 1055600 € HT
Honoraires à la charge de l'acquéreur : 7 % HT










