Prolocaux est un acteur de l'immobilier d'entreprise spécialisé dans la location, la vente et l'acquisition de biens professionnels en région.Présents depuis 2015 en Normandie, dans les Hauts-de-Fr ...
En savoir plus

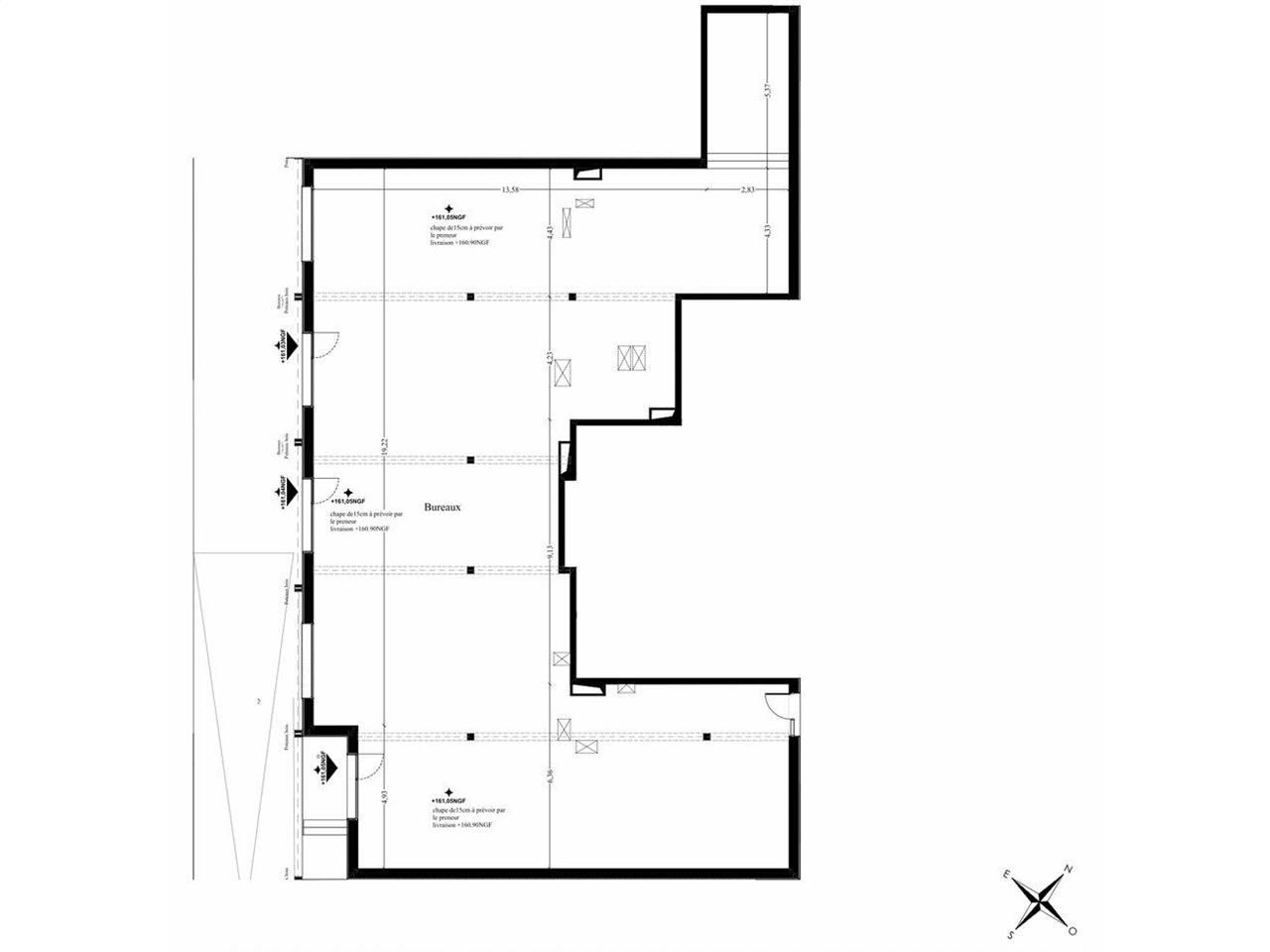
Bureau à vendre - 315 m²
Nous vous proposons à la vente un local à usage de bureaux / local d'activité, situé en rez-de-chaussée, au sein d'un programme immobilier neuf en cours de réalisation, à Bois-Guillaume, Route de Neufchâtel.
Le local est vendu en VEFA et développe une surface totale d'environ 315,2 m² en rez-de-chaussée.
La surface est majoritairement ouverte et permet une organisation fonctionnelle des espaces selon le projet de l'acquéreur. Le local dispose de plusieurs accès, facilitant les circulations et les usages.
Les locaux seront livrés brut de béton, fluides en attente, laissant une liberté totale d'aménagement.
Ce bien est adapté à des usages de bureaux, activité tertiaire ou activité légère compatible avec un local en rez-de-chaussée.
Ce local vous est proposé à la vente par PROLOCAUX.
Les informations sur les risques auxquels ce bien est exposé sont disponibles sur le site Géorisques : www.georisques.gouv.fr
Sofia OLIVEIRA, agent commercial PROLOCAUX - inscrite au RSAC d'EVREUX sour le numéro 838 485 571
A vendre, local d'environ 315 m² livré en VEFA
livraison brute de béton
fluides en attente
locaux en rez-de-chaussée
surface majoritairement ouverte
plusieurs accès
parkings dispos en supplément
Accessibilité :
- Bus Parc Andersen (8m) - supérieur à Lignes : F1, F8
- Bus Mairie de Bois-Guillaume (323m) - supérieur à Lignes : F1, F8
- Bus Sainte-Venise - C.H.U. (325m) - supérieur à Lignes : F8
- Bus Max Pouchet (373m) - supérieur à Lignes : F8, 10
- Bus Le Cèdre - C.H.U. (456m) - supérieur à Lignes : F1
Disponibilité : 3ème trimestre 2027
Prix de vente : 819520 € HT
Honoraires à la charge de l'acquéreur : 7 % HT










