L''agence Marseille/Aix-en-Provence rassemble une équipe dynamique et polyvalente située à Marseille ainsi qu’à Aix. Nos conseillers sont expérimentés et ont une connaissance approfondie du marché ...
En savoir plus

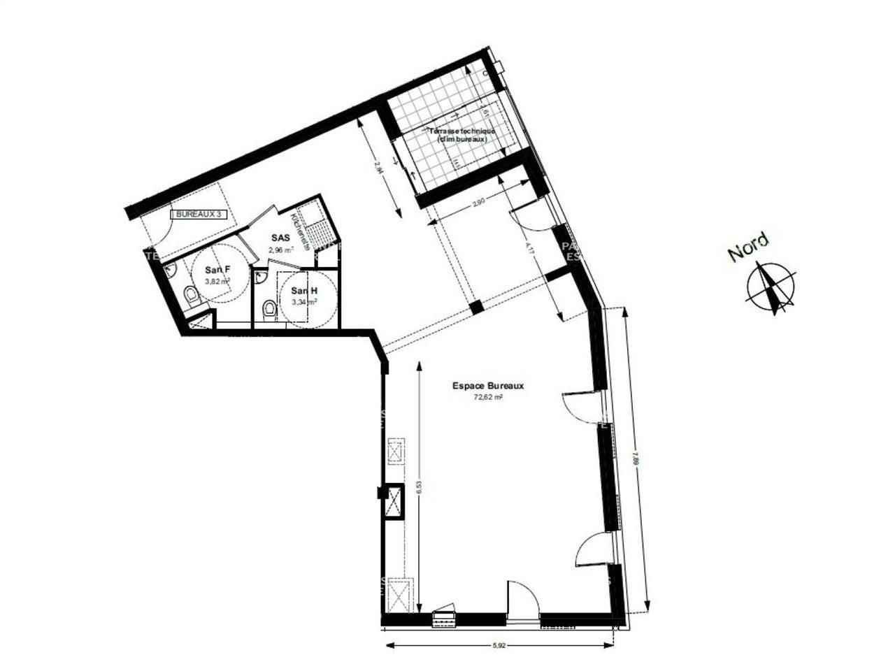
Bureau à vendre - 388 m²
BNP Paribas Real Estate vous propose deux surfaces de bureaux et un local commercial idéalement situés en plein centre-ville d'Aix-en-Provence.
Ce programme neuf bénéficie d'un emplacement premium, à proximité immédiate des commerces et transports, offrant un cadre de travail moderne et attractif.
Livraison prévue au 1er trimestre 2027.
L'essentiel à retenir
Typologie : Bureaux et local commercial
Livraison : T1 2027
Stationnement : 65 000 € TTC/place
Dessertes
Bus : 03 / 03SP / 05 / 06
Axes routiers : A51 / A8 / D9
Gare TGV : Aix-en-Provence 17 min via D9
Aéroport : Marseille Provence 23 min via D9
Dispositions réglementaires
Labels : RE2020 et RT2012
Descriptifs et services
Fibre optique haut débit
Climatisation réversible
Ascenseur
Accès sécurisé par badge et vidéophone
Faux plafonds
Sol moquette dans les bureaux
Un programme neuf hautement qualitatif au coeur d'Aix-en-Provence, alliant prestations modernes, emplacement central, et excellente desserte régionale.
Honoraires: Nous consulter. à la signature de l'acte
| Fiche technique du bien | |
|---|---|
| Bus | 03/03SP/05/06 |
| Desserte routière | A51/A8/D9 |
| Aéroport | Marseille Provence à 23 min via D9 |
| Gare | Aix en Provence-TGV à 17 min via D9 |
| Climatisation | Réversible |
| Sécurité | Accès par badge et vidéophone |
| Ascenseur(s) | Oui |
| Faux plafond | Oui |
| Sol bureaux | Moquette |
