Nous sommes Immprove, une grande équipe de plus de 200 experts en immobilier d’entreprise, implantés localement avec plus de 20 agences sur tout le territoire.Depuis 2009, notre proximité, notre ét ...
En savoir plus

42 m²
Bureau à vendre - 42 m²
Paris 10 (75010)
Dernière mise à jour : Il y a 3 jours
IMMPROVEvous propose à la vente une surface de 42 m² en rez-de-chaussée, idéalement située en plein coeur du 10? arrondissement de Paris.
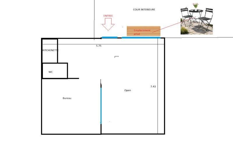
L'espace se compose d'un open space, de bureaux cloisonnés, d'une kitchenette et d'un sanitaire, offrant un cadre de travail fonctionnel et lumineux.
La surface est située dans une jolie cour, apportant calme et charme.
À visiter rapidement !
Régime Fiscal : Droits d'enregistrement
Honoraires : 5 % HT du prix de vente a la charge de l'acquéreur
Prestations :
Accessibilité:
Metro Poissonnière (ligne 4)
Metro Barbès Rochechouart (ligne 4,2)
SNCF Paris-Nord-Surface (Gare SNCF)
Métro Poissonnière (7), Gare du Nord (4, 5), Barbès - Rochechouart (2)
RER Gare du Nord (D, B), Magenta (E)
Transilien Gare du Nord (TER), Paris Saint-Lazare (TER), Gare de l'Est (TER), Paris Gare du Nord (TER)
Transilien Gare du Nord (H, K), Gare de l'Est (P)
Les informations sur les risques auxquels ce bien est exposé sont disponibles sur le site Géorisques : www.georisques.gouv.fr
L'espace se compose d'un open space, de bureaux cloisonnés, d'une kitchenette et d'un sanitaire, offrant un cadre de travail fonctionnel et lumineux.
La surface est située dans une jolie cour, apportant calme et charme.
À visiter rapidement !
| Étage | Type | Surfaces | Dispo | Prix(m²) | Charges | Honoraires | Fiscal |
|---|---|---|---|---|---|---|---|
| RDC | Bureaux | 42 | Immédiate | 9500 m²/ NV | 5,71 m²/an HT | 5 % HT du prix de vente a la charge de l'acquéreur | Droits d'enregistrement |
Régime Fiscal : Droits d'enregistrement
Honoraires : 5 % HT du prix de vente a la charge de l'acquéreur
Prestations :
- Immeuble haussmannien
- Prestations intérieures de qualité
- Parties communes de bon standing
- Cour
- Râtelier à vélo
- Digicode
- Interphone
- Chauffage électrique
- Rénové
- Espace ouvert
- Bureaux cloisonnés
- Cuisine
- Sanitaires privatifs
Accessibilité:
Metro Poissonnière (ligne 4)
Metro Barbès Rochechouart (ligne 4,2)
SNCF Paris-Nord-Surface (Gare SNCF)
Métro Poissonnière (7), Gare du Nord (4, 5), Barbès - Rochechouart (2)
RER Gare du Nord (D, B), Magenta (E)
Transilien Gare du Nord (TER), Paris Saint-Lazare (TER), Gare de l'Est (TER), Paris Gare du Nord (TER)
Transilien Gare du Nord (H, K), Gare de l'Est (P)
Les informations sur les risques auxquels ce bien est exposé sont disponibles sur le site Géorisques : www.georisques.gouv.fr
Voir plus
Afficher les consommations énergétiques
Favoris
Exporter
Appeler
Contacter
Signaler cette annonce
