Acteur majeur du conseil en immobilier d’entreprise sur Paris et sa proche banlieue, l’agence créée en 2009 doit son succès et sa croissance à un niveau d’exigence élevé dans tous les aspects de so ...
En savoir plus

84 m²
Bureau à vendre - 84 m²
Paris 10 (75010)
Dernière mise à jour : Il y a 2 jours
Bureaux à vendre au pieds du métro Strasbourg Saint-Denis
Consult'im vous propose en EXCLUSIVITE, des bureaux à vendre VACANTS au pieds du métro Strasbourg Saint-Denis dans un immeuble en Pierre comprenant des parties commues de bon standing de 84m² carrez au 2ème étage. dont 89m² surface plancher.
CARACTERISTIQUES DE L'OFFRE
Un accueil
Parquet, moulures
Belle hauteur sous plafond
2ème étage : 80m²
Open-space
2 bureaux
Cuisine équipée
Plinthes périphériques
Contrôle d'accès
Ascenseur
Possibilité d'installer la climatisation (acté en AG)
Archives au dernier étage mansardé de 5m²
CONDITIONS FINANCIERES
Prix Net Vendeur : 745 500 HD ou vente des parts de la SCI
Honoraires : 5% HT du Prix Net Vendeur
Disponibilité : Après accord
Prestations :
- Ascenseur;Câblage informatique;Belle hauteur sous plafond;Contrôle d'accès;Cuisine équipée;Douche;Fibre;Parquet;Parquet, moulures;Parquet, moulures, cheminées;Sanitaire
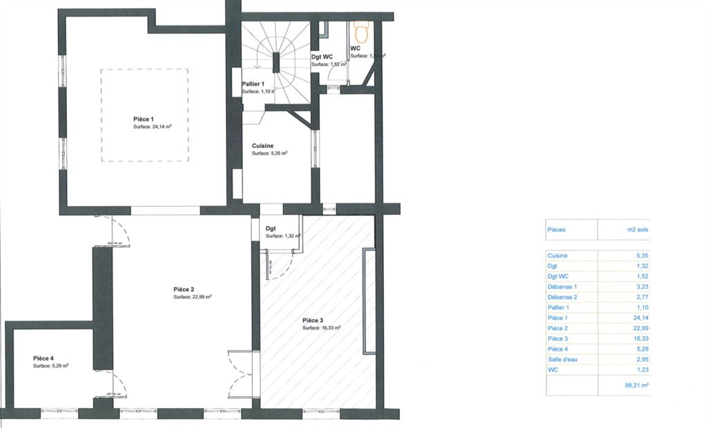
Tableau de Surfaces :
Accessibilité :
Réaumur Sébastopol
- Strasbourg-Saint-Denis
- Château d'Eau
- Bonne Nouvelle
Consult'im vous propose en EXCLUSIVITE, des bureaux à vendre VACANTS au pieds du métro Strasbourg Saint-Denis dans un immeuble en Pierre comprenant des parties commues de bon standing de 84m² carrez au 2ème étage. dont 89m² surface plancher.
CARACTERISTIQUES DE L'OFFRE
Un accueil
Parquet, moulures
Belle hauteur sous plafond
2ème étage : 80m²
Open-space
2 bureaux
Cuisine équipée
Plinthes périphériques
Contrôle d'accès
Ascenseur
Possibilité d'installer la climatisation (acté en AG)
Archives au dernier étage mansardé de 5m²
CONDITIONS FINANCIERES
Prix Net Vendeur : 745 500 HD ou vente des parts de la SCI
Honoraires : 5% HT du Prix Net Vendeur
Disponibilité : Après accord
Prestations :
- Ascenseur;Câblage informatique;Belle hauteur sous plafond;Contrôle d'accès;Cuisine équipée;Douche;Fibre;Parquet;Parquet, moulures;Parquet, moulures, cheminées;Sanitaire
Tableau de Surfaces :
| Etage | Surface | Type de surface | Loyer / m² / an | Charges / m² / an | Dispo |
|---|---|---|---|---|---|
| 2ème | 84 | Bureaux | 8875.00 | 28 | |
| TOTAL | 84 | Bureaux | 8875,00 | 28 |
Accessibilité :
Réaumur Sébastopol
- Strasbourg-Saint-Denis
- Château d'Eau
- Bonne Nouvelle
Voir plus
Afficher les consommations énergétiques
Localisation et transport aux alentours
- Gare de l'Est376m (6min à pied)457
- Jacques Bonsergent821m (12min à pied)5
- Château d'eau834m (13min à pied)4
- Strasbourg Saint-Denis1.2km (18min à pied)489
Favoris
Exporter
Appeler
Contacter
Signaler cette annonce










