MALSH Realty accompagne les entreprises dans leurs projets immobiliers, qu’il s’agisse de locaux d’activités, de bureaux, de commerces, d’entrepôts ou de terrains. L’agence intervient aussi bien au ...
En savoir plus

2 595 m² divisible dès 172 m²
HT HC
Location activité/entrepôt - 2595 m²
Varennes-lès-Mâcon (71000)
Dernière mise à jour : Il y a 5 mois
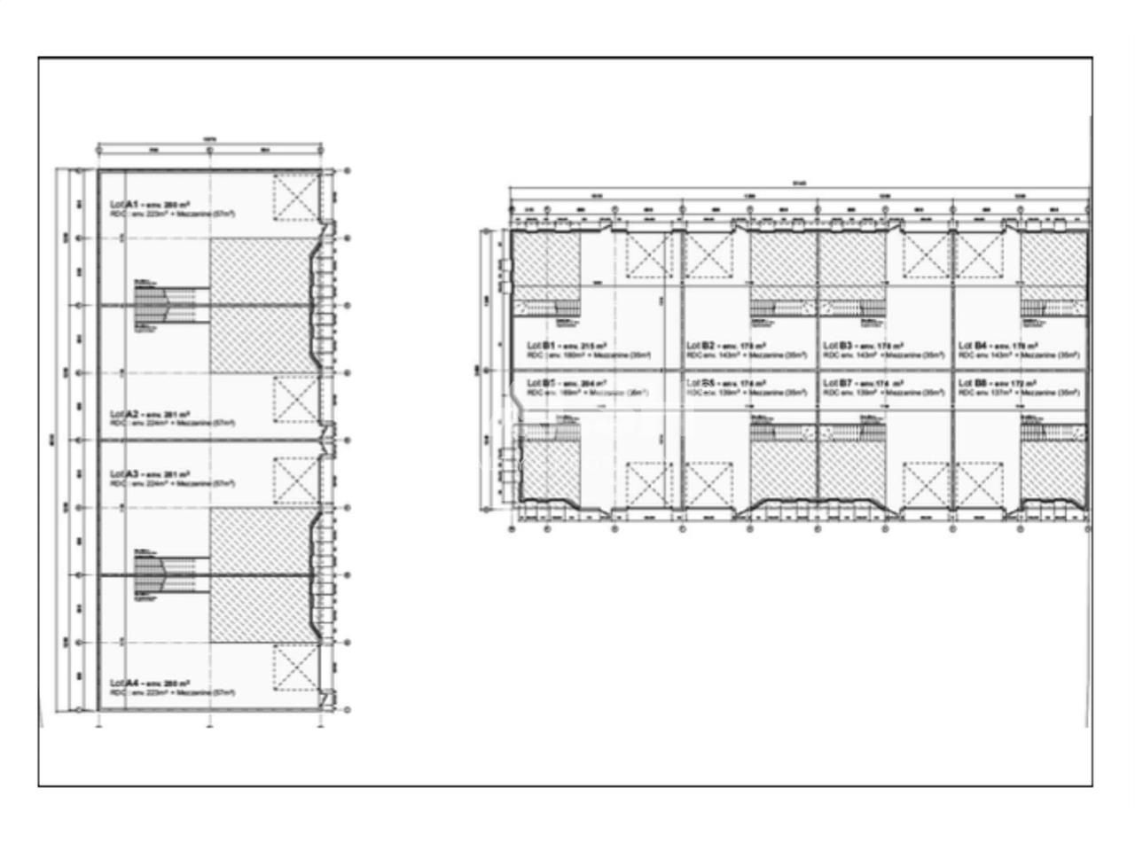
Locaux d'Activités à VARENNES LES MÂCON - A VENDRE OU A LOUER - 2 595 m² divisibles à partir de 172 m²
Au coeur du Parc d'activités des Combes au Sud de Mâcon, au sein d'un nouveau parc d'activités clos et sécurisé composé de 2 bâtiments, nous vous proposons à la vente ou à la location, des locaux d'activités neufs d'une surface totale d'environ 2 595 m² divisibles en 12 lots à partir de 172 m².
Livraison en plateau brut, fluides en attente.
Vente ou Location Locaux d'Activités - Varennes les Mâcon (71000) - 2595 m² divisibles à partir de 172 m²
Régime Fiscal : T.V.A. (20%)
Dépôt de garantie : 3 mois de loyer HT/HC
Honoraires : 20 % HT du loyer annuel HT/HC, à la charge du Preneur, payables à la signature du bail
Prestations :
Accessibilité:
Route À proximité de la D906 et à 3 km de l'autoroute A6 (Mâcon Sud)
SNCF A 4 km de la Gare TGV Mâcon-Loché
Les informations sur les risques auxquels ce bien est exposé sont disponibles sur le site Géorisques : www.georisques.gouv.fr
Au coeur du Parc d'activités des Combes au Sud de Mâcon, au sein d'un nouveau parc d'activités clos et sécurisé composé de 2 bâtiments, nous vous proposons à la vente ou à la location, des locaux d'activités neufs d'une surface totale d'environ 2 595 m² divisibles en 12 lots à partir de 172 m².
Livraison en plateau brut, fluides en attente.
Vente ou Location Locaux d'Activités - Varennes les Mâcon (71000) - 2595 m² divisibles à partir de 172 m²
| Étage | Type | Surfaces | Dispo | Loyer | Charges | Type de bailRév. annuelle |
|---|---|---|---|---|---|---|
| Mezzanine | 57 | ILAT Indice des Loyers des Activités Tertiaires | ||||
| RDC | Activités | 223 | ILAT Indice des Loyers des Activités Tertiaires | |||
| Total Cellule A1 | Activités | 280 | Livraison fin 2025 | 100 HT/HC/m²/an | 4 HT/m²/an | commercial 3-6-9 ansILAT Indice des Loyers des Activités Tertiaires |
| Mezzanine | 57 | ILAT Indice des Loyers des Activités Tertiaires | ||||
| RDC | Activités | 224 | ILAT Indice des Loyers des Activités Tertiaires | |||
| Total Cellule A2 | Activités | 281 | Livraison fin 2025 | 99,64 HT/HC/m²/an | 4 HT/m²/an | commercial 3-6-9 ansILAT Indice des Loyers des Activités Tertiaires |
| Mezzanine | 57 | ILAT Indice des Loyers des Activités Tertiaires | ||||
| RDC | Activités | 224 | ILAT Indice des Loyers des Activités Tertiaires | |||
| Total Cellule A3 | Activités | 281 | Livraison fin 2025 | 99,64 HT/HC/m²/an | 4 HT/m²/an | commercial 3-6-9 ansILAT Indice des Loyers des Activités Tertiaires |
| Mezzanine | 57 | ILAT Indice des Loyers des Activités Tertiaires | ||||
| RDC | Activités | 223 | ILAT Indice des Loyers des Activités Tertiaires | |||
| Total Cellule A4 | Activités | 280 | Livraison fin 2025 | 100 HT/HC/m²/an | 4 HT/m²/an | commercial 3-6-9 ansILAT Indice des Loyers des Activités Tertiaires |
| Mezzanine | 35 | ILAT Indice des Loyers des Activités Tertiaires | ||||
| RDC | Activités | 180 | ILAT Indice des Loyers des Activités Tertiaires | |||
| Total Cellule B1 | Activités | 215 | Livraison fin 2025 | 97,67 HT/HC/m²/an | 4 HT/m²/an | commercial 3-6-9 ansILAT Indice des Loyers des Activités Tertiaires |
| Mezzanine | 35 | ILAT Indice des Loyers des Activités Tertiaires | ||||
| RDC | Activités | 143 | ILAT Indice des Loyers des Activités Tertiaires | |||
| Total Cellule B2 | Activités | 178 | Livraison fin 2025 | 101,12 HT/HC/m²/an | 4 HT/m²/an | commercial 3-6-9 ansILAT Indice des Loyers des Activités Tertiaires |
| Mezzanine | 35 | ILAT Indice des Loyers des Activités Tertiaires | ||||
| RDC | Activités | 143 | ILAT Indice des Loyers des Activités Tertiaires | |||
| Total Cellule B3 | Activités | 178 | Livraison fin 2025 | 101,12 HT/HC/m²/an | 4 HT/m²/an | commercial 3-6-9 ansILAT Indice des Loyers des Activités Tertiaires |
| Mezzanine | 35 | ILAT Indice des Loyers des Activités Tertiaires | ||||
| RDC | Activités | 143 | ILAT Indice des Loyers des Activités Tertiaires | |||
| Total Cellule B4 | Activités | 178 | Livraison fin 2025 | 101,12 HT/HC/m²/an | 4 HT/m²/an | commercial 3-6-9 ansILAT Indice des Loyers des Activités Tertiaires |
| Mezzanine | 35 | ILAT Indice des Loyers des Activités Tertiaires | ||||
| RDC | Activités | 169 | ILAT Indice des Loyers des Activités Tertiaires | |||
| Total Cellule B5 | Activités | 204 | Livraison fin 2025 | 98,04 HT/HC/m²/an | 4 HT/m²/an | commercial 3-6-9 ansILAT Indice des Loyers des Activités Tertiaires |
| Mezzanine | 35 | ILAT Indice des Loyers des Activités Tertiaires | ||||
| RDC | Activités | 139 | ILAT Indice des Loyers des Activités Tertiaires | |||
| Total Cellule B6 | Activités | 174 | Livraison fin 2025 | 100,57 HT/HC/m²/an | 4 HT/m²/an | commercial 3-6-9 ansILAT Indice des Loyers des Activités Tertiaires |
| Mezzanine | 35 | ILAT Indice des Loyers des Activités Tertiaires | ||||
| RDC | Activités | 139 | ILAT Indice des Loyers des Activités Tertiaires | |||
| Total Cellule B7 | Activités | 174 | Livraison fin 2025 | 100,57 HT/HC/m²/an | 4 HT/m²/an | commercial 3-6-9 ansILAT Indice des Loyers des Activités Tertiaires |
| Mezzanine | 35 | ILAT Indice des Loyers des Activités Tertiaires | ||||
| RDC | Activités | 137 | ILAT Indice des Loyers des Activités Tertiaires | |||
| Total Cellule B8 | Activités | 172 | Livraison fin 2025 | 98,84 HT/HC/m²/an | 4 HT/m²/an | commercial 3-6-9 ansILAT Indice des Loyers des Activités Tertiaires |
Régime Fiscal : T.V.A. (20%)
Dépôt de garantie : 3 mois de loyer HT/HC
Honoraires : 20 % HT du loyer annuel HT/HC, à la charge du Preneur, payables à la signature du bail
Prestations :
- Site clos et sécurisé
- Portes sectionnelles motorisées avec accès piéton
- Stationnements vélos
- Stationnements pré-équipés IRVE
- Livraison en plateau brut, fluides en attente
- Charpente métallique
- Menuiseries alu
- Hauteur libre sous poutre : 6,50 m
- Dalle quartzé (charge 1,5T/m²)
- Mezzanine non aménagée
Accessibilité:
Route À proximité de la D906 et à 3 km de l'autoroute A6 (Mâcon Sud)
SNCF A 4 km de la Gare TGV Mâcon-Loché
Les informations sur les risques auxquels ce bien est exposé sont disponibles sur le site Géorisques : www.georisques.gouv.fr
Voir plus
Afficher les consommations énergétiques
Localisation et transport aux alentours
Favoris
Exporter
Appeler
Contacter
Signaler cette annonce


