Conseil en immobilier d'entreprise, Cushman & Wakefield est un acteur incontournable au rayonnement international. Cushman & Wakefield offre des solutions dans toutes les étapes que comporte un p ...
En savoir plus



8 495 m² divisible dès 3 434 m²
LA FABRIK EAST LINE - Activité/Entrepôt à vendre - 8495 m²
Villeurbanne (69100)
Dernière mise à jour : Il y a 5 mois
A LOUER OU A VENDRE VILLEURBANE (69100) - LA FABRYK EAST LINE - Rue de la Ligne de l'Est
Immeuble LA FABRIK EAST LINE
CUSHMAN & WAKEFIELD vous propose à la vente et à la location des locaux d'activité sur le secteur de Villeurbanne (69100).
Opportunité rare pour une implantation dans Lyon intramuros, pour cestlocaux industriels, mixte et bureaux en étages proposant des prestations haut de gamme sur un secteur en pleine mutation.
Accessibilité routière et autoroutière A43 et A46 avec le périphérique Laurent Bonnevay à proximité immédiate.
Entrepôts de dernières générations avec un emplacement stratégique pour une livraison du dernier kilomètre.
Régime Fiscal : T.V.A.
Dépôt de garantie : 3 mois de loyer HT/HC
Paiement Loyer : Trimestriel
Honoraires : à la charge de l'acquéreur
Prestations :
Accessibilité:
Tram Bel Air les Brosses (Tram T3)
SNCF Gare Part-Dieu et Gare Perrache à 20 min
Bus Ligne C7
Accès routier Accès direct au boulevard périphérique
Laurent Bonnevay- Raccordement autoroutes A43-A42
Les informations sur les risques auxquels ce bien est exposé sont disponibles sur le site Géorisques : www.georisques.gouv.fr
Immeuble LA FABRIK EAST LINE
CUSHMAN & WAKEFIELD vous propose à la vente et à la location des locaux d'activité sur le secteur de Villeurbanne (69100).
Opportunité rare pour une implantation dans Lyon intramuros, pour cestlocaux industriels, mixte et bureaux en étages proposant des prestations haut de gamme sur un secteur en pleine mutation.
Accessibilité routière et autoroutière A43 et A46 avec le périphérique Laurent Bonnevay à proximité immédiate.
Entrepôts de dernières générations avec un emplacement stratégique pour une livraison du dernier kilomètre.
| Étage | Type | Surfaces | Dispo | Prix(m²) | Charges | Honoraires | Fiscal |
|---|---|---|---|---|---|---|---|
| R+2 | Bureaux | 1473,3 | n.c. | n.c. | à la charge de l'acquéreur | T.V.A. | |
| R+1 | Activités | 1822,7 | n.c. | n.c. | à la charge de l'acquéreur | T.V.A. | |
| RdC | Activités | 1765,3 | n.c. | n.c. | à la charge de l'acquéreur | T.V.A. | |
| Total Cellule H1 | Activités | 5061,3 | 2508 /m² HD.HT | n.c. | à la charge de l'acquéreur | T.V.A. | |
| R+2 | Bureaux | 1045,7 | n.c. | n.c. | à la charge de l'acquéreur | T.V.A. | |
| R+1 | Activités | 1168,1 | n.c. | n.c. | à la charge de l'acquéreur | T.V.A. | |
| RdC | Activités | 1219,8 | n.c. | n.c. | à la charge de l'acquéreur | T.V.A. | |
| Total Cellule H2 | Activités | 3433,6 | 2526 /m² HD.HT | n.c. | à la charge de l'acquéreur | T.V.A. | |
| SS | Parkings | 28000 /place HD.HT | n.c. | à la charge de l'acquéreur | T.V.A. |
Régime Fiscal : T.V.A.
Dépôt de garantie : 3 mois de loyer HT/HC
Paiement Loyer : Trimestriel
Honoraires : à la charge de l'acquéreur
Prestations :
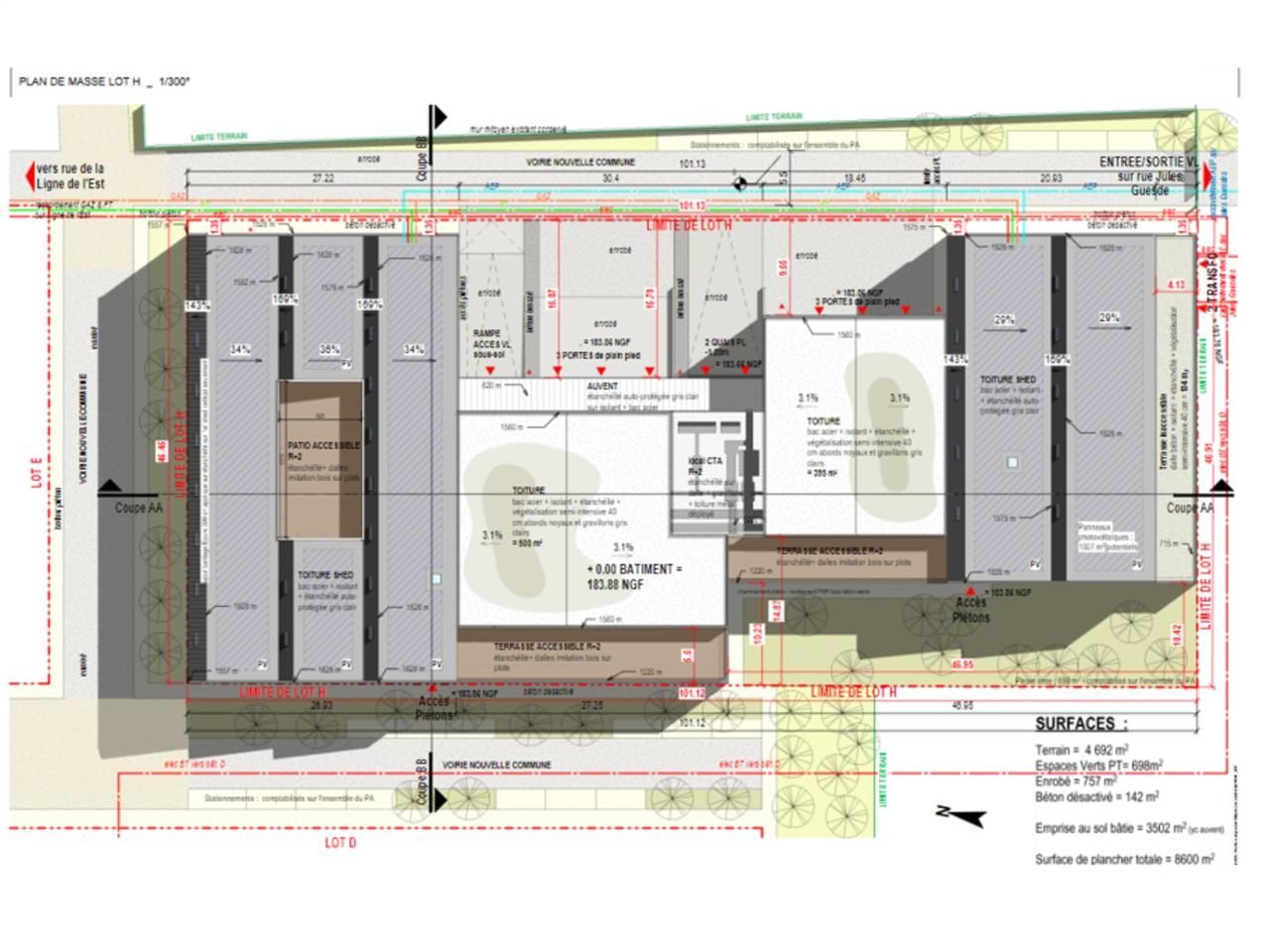
- 5 bâtiments de 21 100 m²
- Stationnement en sous-sol : 158 places (Bat E et H)
- Stationnement extérieur : 36 places
- WORK SHOP 13 500 m²
- Pôle service bâtiment A (Restauration, salle de réunion, co-working, conciergerie, gestionnaire du parc)
- Le parc est traversé par des voies, de desserte poids lourds depuis la rue de la ligne de l'Est
- Un monte-charge,
- Un ascenseur,
- 3 accès plain pied par porte sectionnelle
- Un accès par une porte à quai niveleur
- Hauteur libre/charge au sol : RDC : 6m / 2t/m²
- R+1 : 4 m / 750 kg/m²
- R+2 : 3m40 / 350 kg/m²
- Sol : finition quartzé - sans revêtement
- Parois et plafonds : livré brut
- Electricité CFO :
- Distribution permettant de rendre chaque lot indépendant
- Electricité CFA à charge des Preneurs (hors mesures conservatoires pour
- téléphonie/fibre et système de Sécurité Incendie)
- Sanitaires équipés
- Bureaux-
- Les plateaux de bureaux livrés terminés et hors cloisonnement
- Doublage
- Faux plafonds démontables
- Revêtement de sol type moquette - pas de faux plancher
- Livrés équipés en CVC/Plomberie/CFO
- Ventilation double flux
- Niveaux d'éclairement selon préconisation BREEAM VERY GOOD
- Surface RDC : 2985,1 m²
Accessibilité:
Tram Bel Air les Brosses (Tram T3)
SNCF Gare Part-Dieu et Gare Perrache à 20 min
Bus Ligne C7
Accès routier Accès direct au boulevard périphérique
Laurent Bonnevay- Raccordement autoroutes A43-A42
Les informations sur les risques auxquels ce bien est exposé sont disponibles sur le site Géorisques : www.georisques.gouv.fr
Emplacement(s) de Parking: 82 places
Voir plus
Afficher les consommations énergétiques
Localisation et transport aux alentours
Favoris
Exporter
Appeler
Contacter
Signaler cette annonce










