Conseil en immobilier d'entreprise, Cushman & Wakefield est un acteur incontournable au rayonnement international. Cushman & Wakefield offre des solutions dans toutes les étapes que comporte un p ...
En savoir plus



8 048 m² divisible dès 359 m²
BE FLEX - Activité/Entrepôt à vendre - 8048 m²
Villeurbanne (69100)
Dernière mise à jour : Il y a 4 mois
Bureaux à louer Villeurbanne. Doua
Immeuble BE FLEX
Au coeur de Villeurbanne Tonkin, inscrit dans le cadre de la requalification de friches industrielles, le campus tertiaire be FLEX composé de 3 immeubles à l'architecture contemporaine s'articule autour d'un jardin paysagé accessible par de venelles depuis la rue de Bruxelle et la rue Bonnet.
A proximité du parc de la Tête d'Or, et à seulement 15 min. de la Part-Dieu, be FLEX s'implante au sein d'un quartier dynamique offrant une qualité de vie au quotidien : nombreux espaces verts, et restaurants variés, connectivité via les transports en commun (tramway) et axes routiers (bd Stalingrad, au bd périphérique nord,.) ayant déjà séduit des entreprises de renom Ubisoft, Solutec, .
Disponible à la location ou à la vente et réparti sur 3 bâtiments, be FLEX proposera des prestations de qualité soignées, de larges ouvertures, de belles terrasses.
Cushman & Wakefield vous propose des bureaux neufs à louer à Villeurbanne 69100
Situés à proximité du Parc de la Tête d'Or, le programme Be-FLEX offre des plateaux de bureaux modernes, lumineux et parfaitement optimisés pour répondre aux besoins des entreprises.
Ses espaces extérieurs, incluant un jardin intérieur et de nombreuses terrasses, favorisent un cadre de travail agréable et inspirant.
Un pole de service avec restauration dans l'immeuble et espace détente est prévu au niveau du RDC.
Le programme est labellisé BREEAM Very Good et certifié WIRED SCORE .
Facilement accessible par les transports en communs : Tramway T1 station Condorcet à 250 m, Be-FLEX combine accessibilité, fonctionnalité et confort, répondant ainsi aux attentes des entreprises en quête d'un espace de travail de qualité dans un environnement privilégié.
Pour plus d'informations ou pour organiser une visite, contactez Cushman & Wakefield dès aujourd'hui !
Impôt Foncier : 25 €//m²/an
Dépôt de garantie : 3 mois de loyer HT/HC
Paiement Loyer : Trimestriel
Information sur le Bail :
Charges prévisionnelles 25,16 euros HT/m²/an (prév. 2025) . Taxe foncière prévisionnelle 25 euros HT/m²/an Parkings vélos : Sous-sol 24 Rdc jardin 28 Terrasse Bâtiment B : 757 m² Bâtiment C : 135m²
Prestations :
Accessibilité:
Métro Charpennes (lignes A et B) à 950 m
Tram Condorcet (tram T1 et T4)
SNCF Gare de Lyon Part Dieu à 14 min. en T1 Aéroport Lyon St Exupéry à 20 min en voiture À 5 min. du boulevard périphérique Nord Station VÉLO'V à 200 m
Bus Bus C17, 37, 69 à 200 m (2 min.)
Les informations sur les risques auxquels ce bien est exposé sont disponibles sur le site Géorisques : www.georisques.gouv.fr
Immeuble BE FLEX
Au coeur de Villeurbanne Tonkin, inscrit dans le cadre de la requalification de friches industrielles, le campus tertiaire be FLEX composé de 3 immeubles à l'architecture contemporaine s'articule autour d'un jardin paysagé accessible par de venelles depuis la rue de Bruxelle et la rue Bonnet.
A proximité du parc de la Tête d'Or, et à seulement 15 min. de la Part-Dieu, be FLEX s'implante au sein d'un quartier dynamique offrant une qualité de vie au quotidien : nombreux espaces verts, et restaurants variés, connectivité via les transports en commun (tramway) et axes routiers (bd Stalingrad, au bd périphérique nord,.) ayant déjà séduit des entreprises de renom Ubisoft, Solutec, .
Disponible à la location ou à la vente et réparti sur 3 bâtiments, be FLEX proposera des prestations de qualité soignées, de larges ouvertures, de belles terrasses.
Cushman & Wakefield vous propose des bureaux neufs à louer à Villeurbanne 69100
Situés à proximité du Parc de la Tête d'Or, le programme Be-FLEX offre des plateaux de bureaux modernes, lumineux et parfaitement optimisés pour répondre aux besoins des entreprises.
Ses espaces extérieurs, incluant un jardin intérieur et de nombreuses terrasses, favorisent un cadre de travail agréable et inspirant.
Un pole de service avec restauration dans l'immeuble et espace détente est prévu au niveau du RDC.
Le programme est labellisé BREEAM Very Good et certifié WIRED SCORE .
Facilement accessible par les transports en communs : Tramway T1 station Condorcet à 250 m, Be-FLEX combine accessibilité, fonctionnalité et confort, répondant ainsi aux attentes des entreprises en quête d'un espace de travail de qualité dans un environnement privilégié.
Pour plus d'informations ou pour organiser une visite, contactez Cushman & Wakefield dès aujourd'hui !
| Étage | Type | Surfaces | Dispo | Prix(m²) | Charges | Honoraires | Fiscal |
|---|---|---|---|---|---|---|---|
| R+4 | Bureaux | 359 | 4000 /m² HD.HT | n.c. | |||
| R+3 | Bureaux | 388 | 4000 /m² HD.HT | n.c. | |||
| R+2 | Bureaux | 388 | 4000 /m² HD.HT | n.c. | |||
| R+1 | Bureaux | 385 | 4000 /m² HD.HT | n.c. | |||
| R+5 | Bureaux | 431 | 4000 /m² HD.HT | n.c. | |||
| R+4 | Bureaux | 511 | 4000 /m² HD.HT | n.c. | |||
| R+3 | Bureaux | 512 | 4000 /m² HD.HT | n.c. | |||
| R+2 | Bureaux | 860 | 4000 /m² HD.HT | n.c. | |||
| R+1 | Bureaux | 796 | 4000 /m² HD.HT | n.c. | |||
| RdC | Bureaux | 613 | 4000 /m² HD.HT | n.c. | |||
| Arch./Reser. | 152 | 1550 /U HD.HT | n.c. | ||||
| R+3 | Bureaux | 486 | 4000 /m² HD.HT | n.c. | |||
| R+2 | Bureaux | 561 | 4000 /m² HD.HT | n.c. | |||
| R+1 | Bureaux | 455 | 4000 /m² HD.HT | n.c. | |||
| RdC | Activités | 411 | 3350 /m² HD.HT | n.c. | |||
| Terrasse | 892 | 1550 /U HD.HT | n.c. | ||||
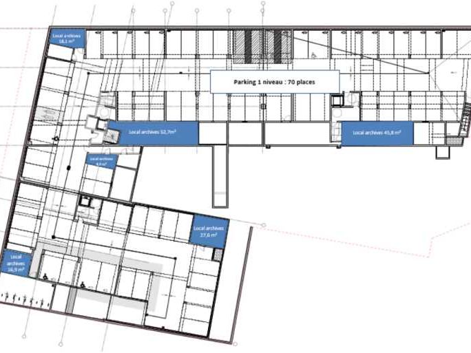
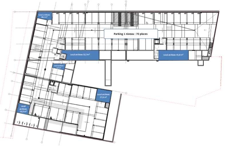
| Sous-Sol | Parkings | 25000 /U HD.HT | n.c. |
Impôt Foncier : 25 €//m²/an
Dépôt de garantie : 3 mois de loyer HT/HC
Paiement Loyer : Trimestriel
Information sur le Bail :
Charges prévisionnelles 25,16 euros HT/m²/an (prév. 2025) . Taxe foncière prévisionnelle 25 euros HT/m²/an Parkings vélos : Sous-sol 24 Rdc jardin 28 Terrasse Bâtiment B : 757 m² Bâtiment C : 135m²
Prestations :
- ERP : 5ème catégorie
- Au coeur de Villeurbanne Tonkin, campus tertiaire Be Flex composé de 3 immeubles à l'architecture contemporaine, autour d'un jardin paysagé.
- A proximité du Parc de la Tête d'Or et à 15 min de la Part-Dieu.
- Accès au coeur d'ilot par 2 venelles accessibles depuis la rue Bonnet et la rue de Bruxelles
- Hall d'entrée du bâtiment B double hauteur
- 1 ascenseur par bâtiment
- 2 montées d'escaliers pour les bâtiments A et B et 1 montée pour le bâtiment C
- Plateaux de bureaux livrés terminés non cloisonnés répondant aux exigences de la réglementation thermique RT2012 -30%
- Façades en béton lasuré, menuiseries extérieures en aluminium laqué à rupture de pont thermique avec stores intérieurs en RDC et extérieurs aux étages.
- Les bâtiments sont conçus pour recevoir des ERP 5ème catégorie type W.
- RDC du bâtiment C : local d'activités
- Labels et certifications BREEAM Very Good, E+C-, WiredScore
- Immeuble indépendant dès 1.800 m²
- Plateau de 1.809m²
- Divisions dès 360 m²
- Pôle Services en RDC
- 3 terrasses - 3 balcons - Des jardins
- Réserves disponibles - Stationnements 2 roues
- Vestiaires avec douches
- Des lots sur mesure 10 à 14 % de parties
- communes
- Immeuble indépendant
- Surface RDC : 1215,8 m²
Accessibilité:
Métro Charpennes (lignes A et B) à 950 m
Tram Condorcet (tram T1 et T4)
SNCF Gare de Lyon Part Dieu à 14 min. en T1 Aéroport Lyon St Exupéry à 20 min en voiture À 5 min. du boulevard périphérique Nord Station VÉLO'V à 200 m
Bus Bus C17, 37, 69 à 200 m (2 min.)
Les informations sur les risques auxquels ce bien est exposé sont disponibles sur le site Géorisques : www.georisques.gouv.fr
Voir plus
Afficher les consommations énergétiques
Localisation et transport aux alentours
Favoris
Exporter
Appeler
Contacter
Signaler cette annonce










