Conseil en immobilier d'entreprise, Cushman & Wakefield est un acteur incontournable au rayonnement international. Cushman & Wakefield offre des solutions dans toutes les étapes que comporte un p ...
En savoir plus



970 m²
HT HC
HIGHTEC 5 - Location activité/entrepôt - 970 m²
Villebon-sur-Yvette (91140)
Dernière mise à jour : Il y a 2 jours
Locaux d'activités à Villebon-sur-Yvette
Immeuble HIGHTEC 5
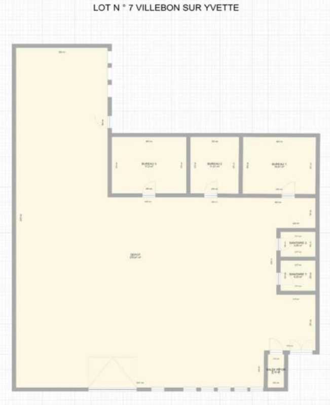
Nous vous proposons à la location des locaux d'activité avec bureaux d'accompagnement d'une surface totale de 320 m², non divisibles, situés à Villebon-sur-Yvette, au coeur d'une zone d'activités dynamique.
Ces espaces fonctionnels sont adaptés aux besoins d'entreprises recherchant un environnement à la fois professionnel et accessible.
Les locaux bénéficient de prestations de qualité, avec des bureaux lumineux et climatisés, un accès sécurisé, ainsi qu'une grande facilité de stationnement.
L'emplacement est idéalement desservi par les grands axes routiers, dont la N118, ainsi que par les transports en commun à proximité.
Une opportunité unique pour installer votre entreprise dans un environnement privilégié.
Contactez-nous pour plus d'informations et organiser une visite.
Impôt Foncier : 13,5 €/HT/m²/an
Régime Fiscal : T.V.A.
Dépôt de garantie : 3 mois de loyer HT/HC
Paiement Loyer : Trimestriel
Honoraires : 15 % HT du loyer annuel HT/HC à la charge du preneur.
Taxe Bureau : 3,37 €/m²/an
Prestations :
Accessibilité:
Aéroport Orly à 15 min
Accès routier A10, N118, N104 (N20, A6)
Bus 1 toutes les 10 min
RER Orsay-Ville (RER B) à 5 min
RER Massy-Palaiseau (RER B - C)
RER Massy-Palaiseau (RER B - C)
Les informations sur les risques auxquels ce bien est exposé sont disponibles sur le site Géorisques : www.georisques.gouv.fr
Immeuble HIGHTEC 5
Nous vous proposons à la location des locaux d'activité avec bureaux d'accompagnement d'une surface totale de 320 m², non divisibles, situés à Villebon-sur-Yvette, au coeur d'une zone d'activités dynamique.
Ces espaces fonctionnels sont adaptés aux besoins d'entreprises recherchant un environnement à la fois professionnel et accessible.
Les locaux bénéficient de prestations de qualité, avec des bureaux lumineux et climatisés, un accès sécurisé, ainsi qu'une grande facilité de stationnement.
L'emplacement est idéalement desservi par les grands axes routiers, dont la N118, ainsi que par les transports en commun à proximité.
Une opportunité unique pour installer votre entreprise dans un environnement privilégié.
Contactez-nous pour plus d'informations et organiser une visite.
| Étage | Type | Surfaces | Dispo | Loyer | Charges | Type de bailRév. annuelle |
|---|---|---|---|---|---|---|
| RdC | Activités | 650 | Immédiate | 100 HT/HC/m²/an | 13 HT/m²/an | 3-6-9 ansSur l'indice ILAT |
| RdC | Activités | 273 | Immédiate | 100 HT/HC/m²/an | 13 HT/m²/an | 3-6-9 ansSur l'indice ILAT |
| RdC | Bureaux | 47 | Immédiate | 100 HT/HC/m²/an | 13 HT/m²/an | Sur l'indice ILAT |
| Total Cellule Lot 7 | Activités | 320 | Immédiate | 100 HT/HC/m²/an | 13 HT/m²/an | 3-6-9 ansSur l'indice ILAT |
Impôt Foncier : 13,5 €/HT/m²/an
Régime Fiscal : T.V.A.
Dépôt de garantie : 3 mois de loyer HT/HC
Paiement Loyer : Trimestriel
Honoraires : 15 % HT du loyer annuel HT/HC à la charge du preneur.
Taxe Bureau : 3,37 €/m²/an
Prestations :
- Immeuble indépendant à vocation mixte développant 2.600 m2 et divisé en 8 lots
- Construction en charpente métallique
- Façade bardage et châssis filant
- Locaux loués en bon état
- Sanitaires privatifs
- Emplacements de stationnement extérieurs
- 1 porte de plain-pied
- Surface RDC : 320 m²
Accessibilité:
Aéroport Orly à 15 min
Accès routier A10, N118, N104 (N20, A6)
Bus 1 toutes les 10 min
RER Orsay-Ville (RER B) à 5 min
RER Massy-Palaiseau (RER B - C)
RER Massy-Palaiseau (RER B - C)
Les informations sur les risques auxquels ce bien est exposé sont disponibles sur le site Géorisques : www.georisques.gouv.fr
Voir plus
Afficher les consommations énergétiques
Localisation et transport aux alentours
Favoris
Exporter
Appeler
Contacter
Signaler cette annonce
