L’agence CBRE Nice-Sophia Antipolis conseille et accompagne les chefs d’entreprise dans leurs projets immobiliers quels que soient leur taille et leur secteur d’activité. Spécialistes de la transac ...
En savoir plus

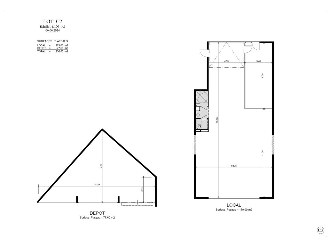
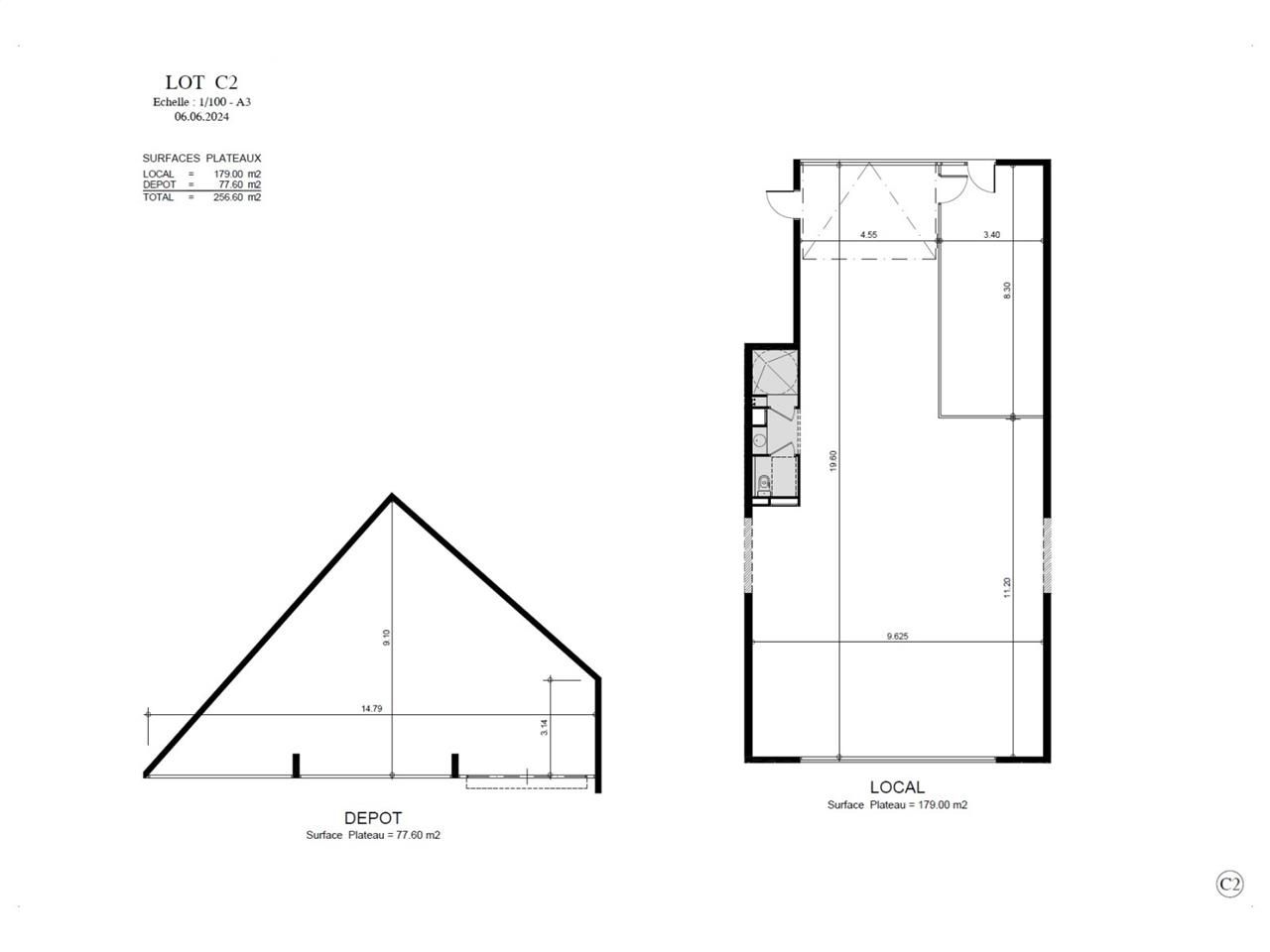
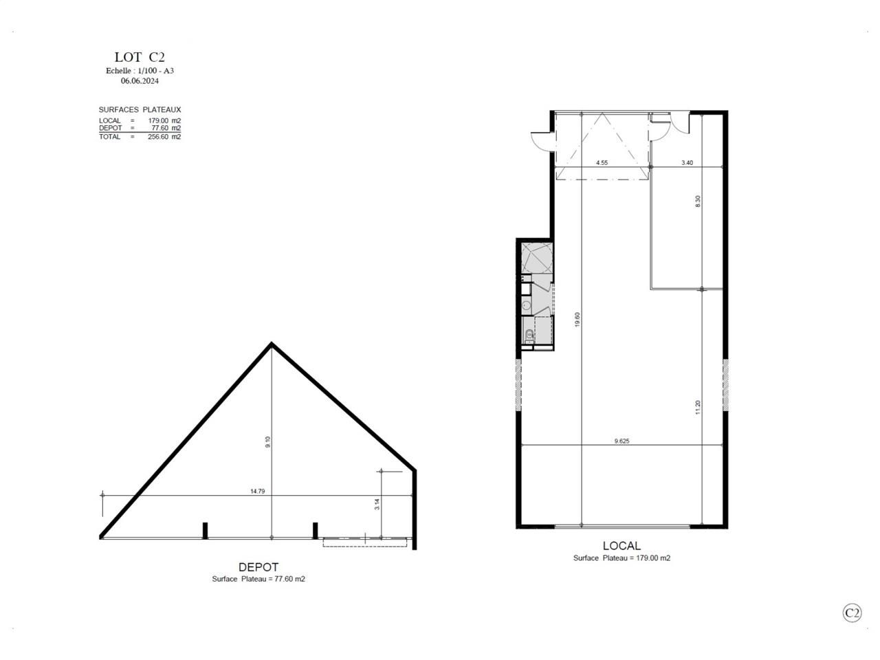
588 m² divisible dès 278 m²
HT HC
Location activité/entrepôt - 588 m²
Sophia Antipolis (06560)
Dernière mise à jour : Il y a 1 mois
A louer locaux neufs avec accès poids-lourds - Valbonne
CBRE vous propose à la location des locaux d'environ 588 m², situés à Valbonne (06560), au sein d'un programme logistique tous desservis par une voirie adaptée aux poids lourds. Chaque cellule, développée sur deux niveaux, est accessible de plain-pied et dispose d'une large porte sectionnelle motorisée, facilitant l'accès aux véhicules utilitaires et poids lourds. Ces locaux offrent des prestations modernes, idéales pour des activités de stockage, ou de logistique.
Site exceptionnel par la mixité de ses espaces et le caractère indépendant de ses modules. Idéal pour des entreprises artisanales, de stockage, de distribution....
Cet environnement offre de nombreux avantages, tels que la proximité des accès autoroutiers, des commerces, des services et des transports en commun.
Si vous êtes intéressés par ces locaux, n'hésitez pas à nous contacter pour planifier une visite et obtenir toutes les informations requises pour votre projet immobilier.
Proche déchetterie, commerces et restauration
Autoroute A8 à 15 mn - à 20 mn de Nice
Transports en commun : réseau ENVIBUS
A 5 mn de la technopole de Sophia Antipolis
Impôt Foncier : 3,43 €/HT/m²/an
Régime Fiscal : T.V.A.
Dépôt de garantie : 3 mois de loyer HT/HC
Paiement Loyer : trimestriel
Honoraires : 15% HT du loyer annuel HT/HC à la charge du preneur
Prestations :
Accessibilité:
Autoroute A8 à 15 mn
Route D604, D4
Aeroport NICE à 25 mn
Les informations sur les risques auxquels ce bien est exposé sont disponibles sur le site Géorisques : www.georisques.gouv.fr
CBRE vous propose à la location des locaux d'environ 588 m², situés à Valbonne (06560), au sein d'un programme logistique tous desservis par une voirie adaptée aux poids lourds. Chaque cellule, développée sur deux niveaux, est accessible de plain-pied et dispose d'une large porte sectionnelle motorisée, facilitant l'accès aux véhicules utilitaires et poids lourds. Ces locaux offrent des prestations modernes, idéales pour des activités de stockage, ou de logistique.
Site exceptionnel par la mixité de ses espaces et le caractère indépendant de ses modules. Idéal pour des entreprises artisanales, de stockage, de distribution....
Cet environnement offre de nombreux avantages, tels que la proximité des accès autoroutiers, des commerces, des services et des transports en commun.
Si vous êtes intéressés par ces locaux, n'hésitez pas à nous contacter pour planifier une visite et obtenir toutes les informations requises pour votre projet immobilier.
Proche déchetterie, commerces et restauration
Autoroute A8 à 15 mn - à 20 mn de Nice
Transports en commun : réseau ENVIBUS
A 5 mn de la technopole de Sophia Antipolis
| Étage | Type | Surfaces | Dispo | Loyer | Charges | Type de bailRév. annuelle |
|---|---|---|---|---|---|---|
| RDCH | Activités | 310,5 | Avril 2026 | 135,8 m²/an HT HC | 5607 HT/an | 3-6-9 ansIndice ILAT |
| RDCH | Activités | 277,9 | Immédiate | 138,64 m²/an HT HC | 5353,18 HT/an | 3-6-9 ansIndice ILAT |
Impôt Foncier : 3,43 €/HT/m²/an
Régime Fiscal : T.V.A.
Dépôt de garantie : 3 mois de loyer HT/HC
Paiement Loyer : trimestriel
Honoraires : 15% HT du loyer annuel HT/HC à la charge du preneur
Prestations :
- Locaux d'activités d'environ 588 m² divisibles en deux lots comprenant :
- Un local d'activité (hauteur SP 3.82 m)
- Un local de stockage au R-1 (hauteur SP 3.45m)
- Sanitaires et douches privatifs (PMR)
- Fibre optique
- Porte sectionnelle motorisée 4.40 x 3.20 + porte piétons
- En option : bureaux aménagés climatisés, courant fort et faible de 18 m²: surloyer de 15 950 euros HT/AN
- Accès sécurisé - incendie - vidéo surveillance
- Aire de pique-nique / espace restauration
- Terrain clos
- Parkings visiteurs
- Programme neuf comprenant 27 modules desservis par une voie PL accessibles de plain-pied par de larges portes sectionnelles
- Immeuble indépendant
- Surface RDC : 588,4 m²
- Haut. libre min. ss poutre : 3,45 m
- Haut. libre max. ss poutre : 3,82 m
- Résistance sol : 1 T/m²
- Ossature : Structure Béton
- Couverture : Toiture isolée
Accessibilité:
Autoroute A8 à 15 mn
Route D604, D4
Aeroport NICE à 25 mn
Les informations sur les risques auxquels ce bien est exposé sont disponibles sur le site Géorisques : www.georisques.gouv.fr
Voir plus
Afficher les consommations énergétiques
Favoris
Exporter
Appeler
Contacter
Signaler cette annonce










