L’agence CBRE Nice-Sophia Antipolis conseille et accompagne les chefs d’entreprise dans leurs projets immobiliers quels que soient leur taille et leur secteur d’activité. Spécialistes de la transac ...
En savoir plus

939 m²
HT HC
Location activité/entrepôt - 939 m²
Nice (06000)
Dernière mise à jour : Il y a 2 jours
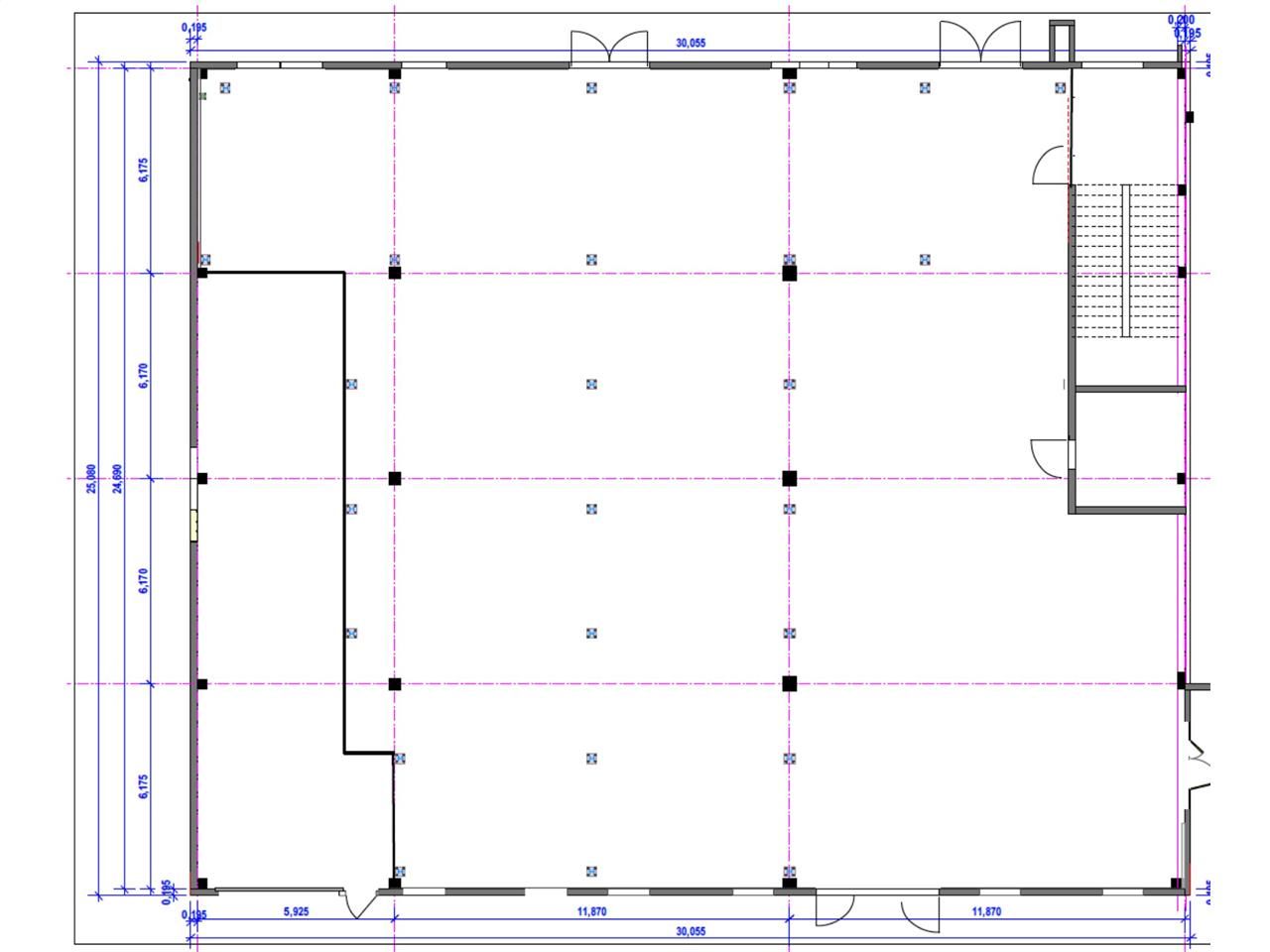
A louer locaux NICE LA PLAINE
NICE LA PLAINE (06200) - CBRE vous propose à la location, dans le prolongement du nouvel Arénas et de NICE MERIDIA, des locaux de plain-pied avec une mezzanine, pour un total de 939 m² (607 + 332 m²). Ces locaux sont climatisés avec extracteur d'air, ils bénéficient de 31 places de parking extérieures (à louer en sus) d'une rampe d'accès véhicules et de sanitaires et douche indépendants.
Emplacement premium permettant une facilité d'accès optimale : à 2 minutes de l'arrêt de tram Nice La Plaine, 5 minutes de l'autoroute, de la gare multimodale TGV et de l'aéroport Nice Côte d'Azur.
Si vous êtes intéressés par ces locaux à louer ou si vous souhaitez obtenir plus d'informations, n'hésitez pas à nous contacter pour planifier une visite et obtenir toutes les informations requises pour votre projet immobilier.
Mener à bien son projet d'implantation ou de développement pour une activité professionnelle doit passer par des locaux adaptés à ses besoins.
Impôt Foncier : 14535 €//an HT
Régime Fiscal : T.V.A.
Dépôt de garantie : 3 mois de loyer HT/HC
Paiement Loyer : trimestriel
Honoraires : 15% HT du loyer annuel HT/HC à la charge du preneur
Information sur le Bail :
31 parking 1 000 euros /U/an HT
Prestations :
Accessibilité:
Autoroute Autoroute A8 à 5 min
Route M6202
Bus Réseau urbain Lignes d'Azur
Tramway L3 Nice la Plaine à 2 min
Aeroport Aéroport International de Nice à 10 min
SNCF Gare Multimodale à 10 min
Les informations sur les risques auxquels ce bien est exposé sont disponibles sur le site Géorisques : www.georisques.gouv.fr
NICE LA PLAINE (06200) - CBRE vous propose à la location, dans le prolongement du nouvel Arénas et de NICE MERIDIA, des locaux de plain-pied avec une mezzanine, pour un total de 939 m² (607 + 332 m²). Ces locaux sont climatisés avec extracteur d'air, ils bénéficient de 31 places de parking extérieures (à louer en sus) d'une rampe d'accès véhicules et de sanitaires et douche indépendants.
Emplacement premium permettant une facilité d'accès optimale : à 2 minutes de l'arrêt de tram Nice La Plaine, 5 minutes de l'autoroute, de la gare multimodale TGV et de l'aéroport Nice Côte d'Azur.
Si vous êtes intéressés par ces locaux à louer ou si vous souhaitez obtenir plus d'informations, n'hésitez pas à nous contacter pour planifier une visite et obtenir toutes les informations requises pour votre projet immobilier.
Mener à bien son projet d'implantation ou de développement pour une activité professionnelle doit passer par des locaux adaptés à ses besoins.
| Étage | Type | Surfaces | Dispo | Loyer | Charges | Type de bailRév. annuelle |
|---|---|---|---|---|---|---|
| RDC | Activités | 607 | 1 mois ap. acc. | 130 m²/an HT HC | 14 HT/m²/an | 3-6-9-12 ansIndice INSEE du Coût de la Construction |
| MEZ | Activités | 332 | 1 mois ap. acc. | 130 m²/an HT HC | 14 HT/m²/an | 3-6-9-12 ansIndice INSEE du Coût de la Construction |
| RDC | Parkings | 1 mois ap. acc. | 1000 place/an HT HC | 3-6-9-12 ansIndice INSEE du Coût de la Construction |
Impôt Foncier : 14535 €//an HT
Régime Fiscal : T.V.A.
Dépôt de garantie : 3 mois de loyer HT/HC
Paiement Loyer : trimestriel
Honoraires : 15% HT du loyer annuel HT/HC à la charge du preneur
Information sur le Bail :
31 parking 1 000 euros /U/an HT
Prestations :
- ERP : 3eme categ (Tout)
- Surface plain-pied RDC 607 m² + mezzanine 332 m² avec rampe accès véhicule
- Possibilité de doubler la mezzanine pour atteindre 1200 m² de surface au total
- Accès indépendant avant/arrière
- 31 places de parking privatives plain pied
- A l'avant : 2 doubles portes
- A l'arrière : 2 triples portes + parking
- Climatisation + extracteur d'air
- Compteur électrique indépendant tarif jaune
- Sanitaires et douche privatifs
- Fibre optique raccordée
- ERP3
- Immeuble indépendant
- Surface RDC : 939 m²
- Résistance sol : 500 T/m²
Accessibilité:
Autoroute Autoroute A8 à 5 min
Route M6202
Bus Réseau urbain Lignes d'Azur
Tramway L3 Nice la Plaine à 2 min
Aeroport Aéroport International de Nice à 10 min
SNCF Gare Multimodale à 10 min
Les informations sur les risques auxquels ce bien est exposé sont disponibles sur le site Géorisques : www.georisques.gouv.fr
Voir plus
Afficher les consommations énergétiques
Favoris
Exporter
Appeler
Contacter
Signaler cette annonce










