L’agence CBRE Nice-Sophia Antipolis conseille et accompagne les chefs d’entreprise dans leurs projets immobiliers quels que soient leur taille et leur secteur d’activité. Spécialistes de la transac ...
En savoir plus

530 m²
HT HC
Location activité/entrepôt - 530 m²
Nice (06000)
Dernière mise à jour : Il y a 2 jours
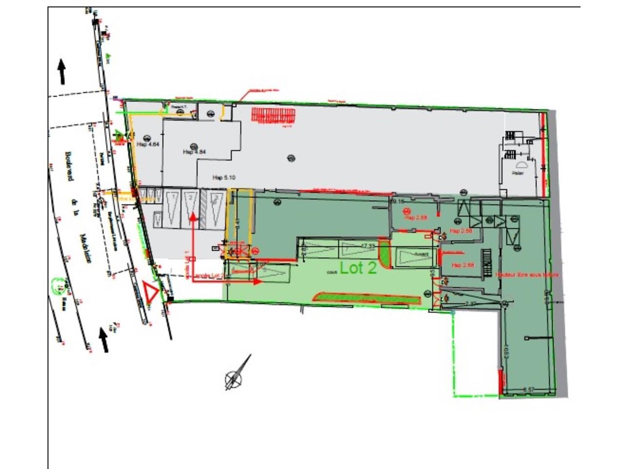
LOCAUX D'ACTIVITES A VENDRE / A LOUER - NICE OUEST LA MADELEINE - V2
NICE OUEST LA MADELEINE (06200) - CBRE vous propose à la location ou à la vente des locaux d'activités rénovés modulables pour une surface d'environ 529 m² sur 2 niveaux. Adaptés aux entreprises nécessitant de grands volumes, ces locaux d'activités à louer ou à vendre bénéficient d'une HSP de 6 m au RDC, d'un accès PL, d'un vaste espace parking et d'une vitrine. Livré hors d'eau/hors d'air, ce bâtiment est prêt à vous accueillir. 2 autres options de 994 m² et de 1474 m² sont envisageables à vendre ou à louer.
Emplacement stratégique, au sein d'un environnement résidentiel. L'accès est particulièrement aisé grâce à une excellente desserte par les transports en commun, facilitant les déplacements de vos équipes et de vos clients.
Si vous êtes intéressés par ces locaux d'activités à louer à NICE OUEST LA MADELEINE (06200) ou si vous souhaitez obtenir plus d'informations, n'hésitez pas à nous contacter pour planifier une visite et obtenir toutes les informations requises pour votre projet immobilier.
Régime Fiscal : T.V.A.
Dépôt de garantie : 3 mois de loyer HT/HC
Paiement Loyer : trimestriel
Honoraires : 20% HT du loyer annuel HT/HC à la charge du preneur
Prestations :
Accessibilité:
Bus Réseau urbain: lignes 06, 75D
Route Voie Mathis
Autoroute Autoroute A8
Aeroport Aéroport International de Nice à 15 min
Les informations sur les risques auxquels ce bien est exposé sont disponibles sur le site Géorisques : www.georisques.gouv.fr
NICE OUEST LA MADELEINE (06200) - CBRE vous propose à la location ou à la vente des locaux d'activités rénovés modulables pour une surface d'environ 529 m² sur 2 niveaux. Adaptés aux entreprises nécessitant de grands volumes, ces locaux d'activités à louer ou à vendre bénéficient d'une HSP de 6 m au RDC, d'un accès PL, d'un vaste espace parking et d'une vitrine. Livré hors d'eau/hors d'air, ce bâtiment est prêt à vous accueillir. 2 autres options de 994 m² et de 1474 m² sont envisageables à vendre ou à louer.
Emplacement stratégique, au sein d'un environnement résidentiel. L'accès est particulièrement aisé grâce à une excellente desserte par les transports en commun, facilitant les déplacements de vos équipes et de vos clients.
Si vous êtes intéressés par ces locaux d'activités à louer à NICE OUEST LA MADELEINE (06200) ou si vous souhaitez obtenir plus d'informations, n'hésitez pas à nous contacter pour planifier une visite et obtenir toutes les informations requises pour votre projet immobilier.
| Étage | Type | Surfaces | Dispo | Loyer | Charges | Type de bailRév. annuelle |
|---|---|---|---|---|---|---|
| RDC | Activités | 390 | Immédiate | 113,31 m²/an HT HC | 3-6-9 ansIndice ILAT | |
| 1 | Activités | 139,5 | Immédiate | 113,31 m²/an HT HC | 3-6-9 ansIndice ILAT |
Régime Fiscal : T.V.A.
Dépôt de garantie : 3 mois de loyer HT/HC
Paiement Loyer : trimestriel
Honoraires : 20% HT du loyer annuel HT/HC à la charge du preneur
Prestations :
- Version location totale:
- 390 m² au sol + 140 m²: surface modulable, adaptable aux besoins
- Cour privative 200,90 m² pour stationnement ou stockage extérieur sécurisé
- HSP jusqu'à 6 m: capacité volumétrique
- Accès poids-lourds: logistique et manutention facilitées
- Toiture et dalle rénovées: modernisation, réduction des futurs coûts d'entretien
- PC obtenu pour environ 650 m² de mezzanines en dur : potentiel d'extension significatif, optimisation de l'espace vertical
- Livré hors d'eau/hors d'air: liberté totale d'aménagement intérieur.
- Sanitaires privés : confort et exclusivité
- Vitrine : visibilité commerciale.
- Surface RDC : 390 m²
Accessibilité:
Bus Réseau urbain: lignes 06, 75D
Route Voie Mathis
Autoroute Autoroute A8
Aeroport Aéroport International de Nice à 15 min
Les informations sur les risques auxquels ce bien est exposé sont disponibles sur le site Géorisques : www.georisques.gouv.fr
Voir plus
Afficher les consommations énergétiques
Favoris
Exporter
Appeler
Contacter
Signaler cette annonce










