BNP Paribas Real Estate, N°1 de la transaction en immobilier d''entreprise en France, vous propose un accompagnement de qualité pour l''acquisition, la vente ou la location d''un bien immobilier.Vo ...
En savoir plus

490 m²
HT HC
Location activité/entrepôt - 490 m²
Lisses (91090)
Dernière mise à jour : Il y a 2 jours
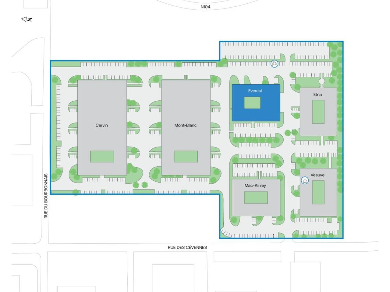
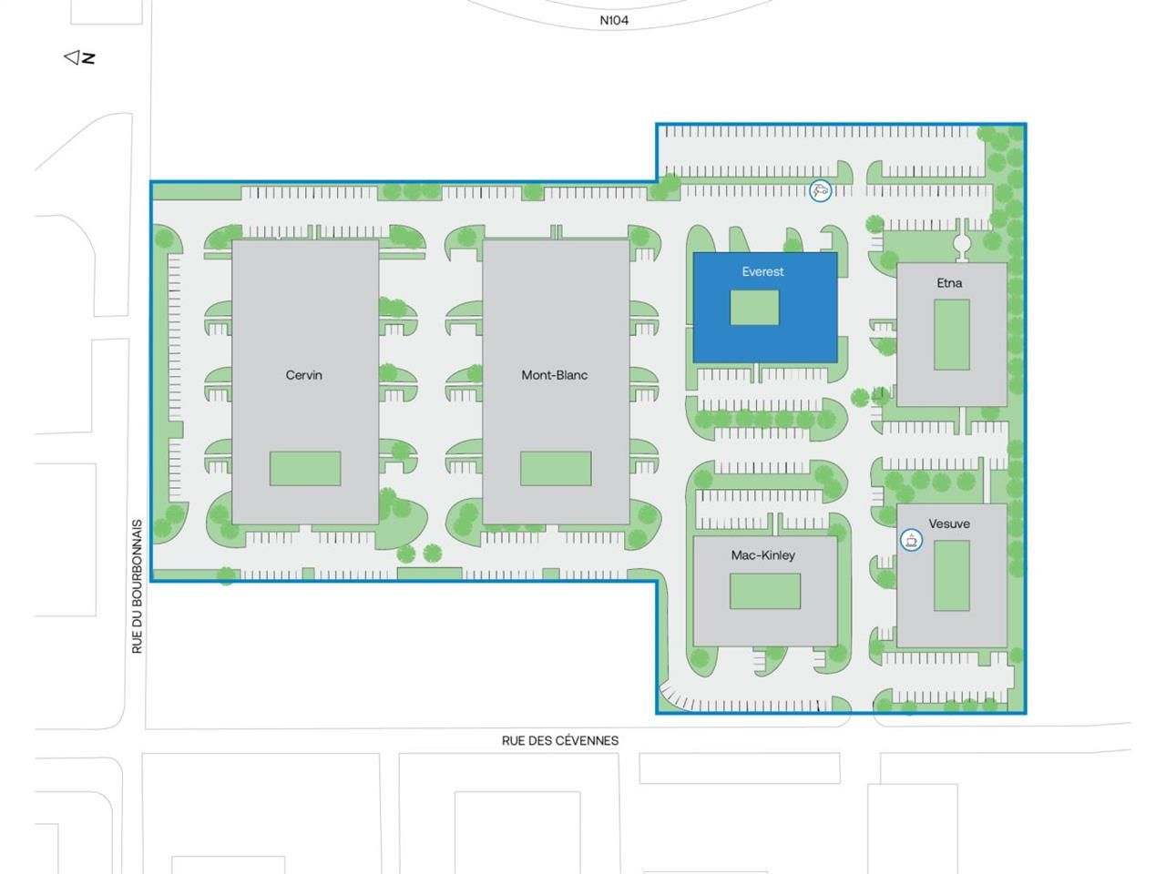
LISSES (91) A LOUER BNP PARIBAS REAL ESTATE, vous propose un lot d'activité dans un parc d'activité
BNP PARIBAS REAL ESTATE vous propose, à la location, un lot d’activité avec bureaux d’accompagnement d’une surface de 490 m²
Le bâtiment offre de grands plateaux permettant une grande flexibilité d'aménagement, un accès aux véhicules légers/lourds et de nombreuses autres services et prestations techniques. Ces locaux bénéficient d’une accessibilité remarquable dans un environnement tertiaire et dynamique.
Accessibilité :
- Accès routier : N104; A6; N20
- RER D : Evry Courcouronnes
Services / Prestations :
- Porte d'accès plain pied
- Locaux sociaux : douches/vestiaires + réfectoire
- Chauffage individuel - gaz
Pour toute information complémentaire, n'hésitez pas à prendre contact avec nos consultants BNP PARIBAS REAL ESTATE.
Disponibilité: ImmédiateHonoraires: 15% HT du loyer HT/HC. 15% HT du loyer HT/HC
| Fiche technique du bien | |
|---|---|
| RER | D Evry Courcouronnes |
| Desserte routière | N104, A6, N20 |
| Etat de l'immeuble | Etat d'usage |
| Etat des locaux | Etat d'usage |
| Etat du terrain | Bétonné |
| Porte(s) d'accès plain-pied | Oui |
| Eclairage naturel | Skydomes |
| Locaux sociaux | Douches/Vestiaires + refectoire |
Afficher les consommations énergétiques
Favoris
Exporter
Appeler
Contacter
Signaler cette annonce










