Nous sommes Immprove, une grande équipe de plus de 200 experts en immobilier d’entreprise, implantés localement avec plus de 20 agences sur tout le territoire.Depuis 2009, notre proximité, notre ét ...
En savoir plus

1 642 m² divisible dès 788 m²
HT HC
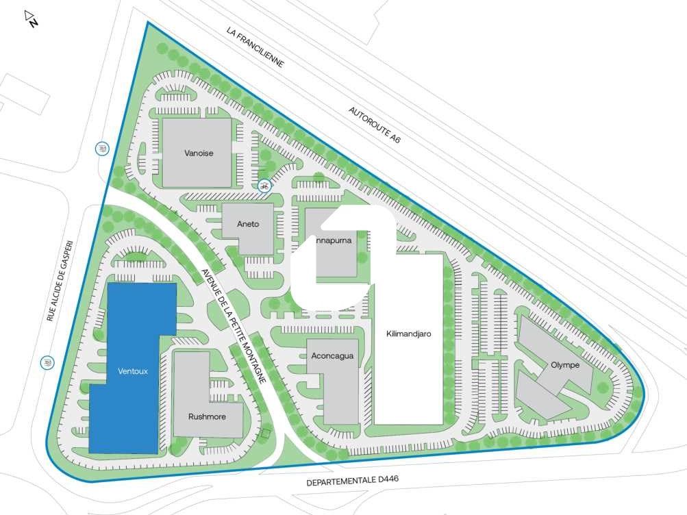
VENTOUX - Location activité/entrepôt - 1642 m²
Courcouronnes (91080)
Dernière mise à jour : Il y a 2 mois
Au pied des axes routiers A6/N104
Immeuble VENTOUX
A Courcouronnes, au pied de l'autoroute A6 et proximité de la N104 (Francilienne) sur la ZAC de la Petite Montagne nord.
Immprove vous propose plusieurs surfaces d'activités divisibles à partir de 470 m² à la location.
La zone dispose de plusieurs services : Réseau de bus TICE, Tramway ligne 12 (Massy Palaiseau / Evry Courcouronnes), restaurants, salles de sport, hôtel.
Impôt Foncier : 30,3 €//m²/an HT
Régime Fiscal : T.V.A. (20%)
Dépôt de garantie : 3 mois de loyer HT HC
Honoraires : 15% HT du loyer annuel HT HC à la charge du preneur
Taxe Bureau : 3,6 €/m²/an
Prestations :
Accessibilité:
Bus Liaison Bus réseau STA ligne 24.12
Bus Bus réseau TICE lignes 404. 405. 415 et 453
RER RER D : Orangis-Bois de l'Epine
RER RER D : Evry-Courcouronnes
Route N104 sortie n°33 : Courcouronnes-Lisses
Autoroute A6 sortie n°34 Courcouronnes-Lisses
Les informations sur les risques auxquels ce bien est exposé sont disponibles sur le site Géorisques : www.georisques.gouv.fr
Immeuble VENTOUX
A Courcouronnes, au pied de l'autoroute A6 et proximité de la N104 (Francilienne) sur la ZAC de la Petite Montagne nord.
Immprove vous propose plusieurs surfaces d'activités divisibles à partir de 470 m² à la location.
La zone dispose de plusieurs services : Réseau de bus TICE, Tramway ligne 12 (Massy Palaiseau / Evry Courcouronnes), restaurants, salles de sport, hôtel.
| Étage | Type | Surfaces | Dispo | Loyer | Charges | Type de bailRév. annuelle |
|---|---|---|---|---|---|---|
| 1 | Bureaux | 80 | Indice ILAT | |||
| RDC | Activités | 708 | Indice ILAT | |||
| Total Cellule 122 | Activités | 788 | Immédiate | 121 m²/an HT HC | 18,9 m²/an HT | Bail Commercial 3-6-9 ansIndice ILAT |
| R+1 | Bureaux | 212 | Indice ILAT | |||
| RDC | Activités | 642 | Indice ILAT | |||
| Total Cellule 123 | Activités | 854 | 121 m²/an HT HC | 18,9 m²/an HT | Bail Commercial 3-6-9 ansIndice ILAT |
Impôt Foncier : 30,3 €//m²/an HT
Régime Fiscal : T.V.A. (20%)
Dépôt de garantie : 3 mois de loyer HT HC
Honoraires : 15% HT du loyer annuel HT HC à la charge du preneur
Taxe Bureau : 3,6 €/m²/an
Prestations :
- Parc d'affaires clos et sécurisé
- Vidéo surveillance
- PC sécurité
- Stationnement en foisonnement
- Restaurant Inter Entreprises
- Bureaux cloisonnés
- Revêtement de sol
- Chauffage central
- Faux-plafonds
- Surface RDC : 1350 m²
- Haut. libre max. ss poutre : 6 m
- Résistance sol : 3 T/m²
- Nbr de portes plain pied : 1
- Ossature : Béton
- Murs périmétriques : Béton
- Couverture : Bac acier
Accessibilité:
Bus Liaison Bus réseau STA ligne 24.12
Bus Bus réseau TICE lignes 404. 405. 415 et 453
RER RER D : Orangis-Bois de l'Epine
RER RER D : Evry-Courcouronnes
Route N104 sortie n°33 : Courcouronnes-Lisses
Autoroute A6 sortie n°34 Courcouronnes-Lisses
Les informations sur les risques auxquels ce bien est exposé sont disponibles sur le site Géorisques : www.georisques.gouv.fr
Voir plus
Afficher les consommations énergétiques
Localisation et transport aux alentours
Favoris
Exporter
Appeler
Contacter
Signaler cette annonce









