L''agence BNP Paribas Real Estate est présente à Bordeaux depuis 40 ans. Elle accompagne les investisseurs et les entreprises dans chaque projet d''agrandissement, d''acquisition, de location et de ...
En savoir plus

1 200 m²
HT HC
Location activité/entrepôt - 1200 m²
Bordeaux (33000)
Dernière mise à jour : Hier
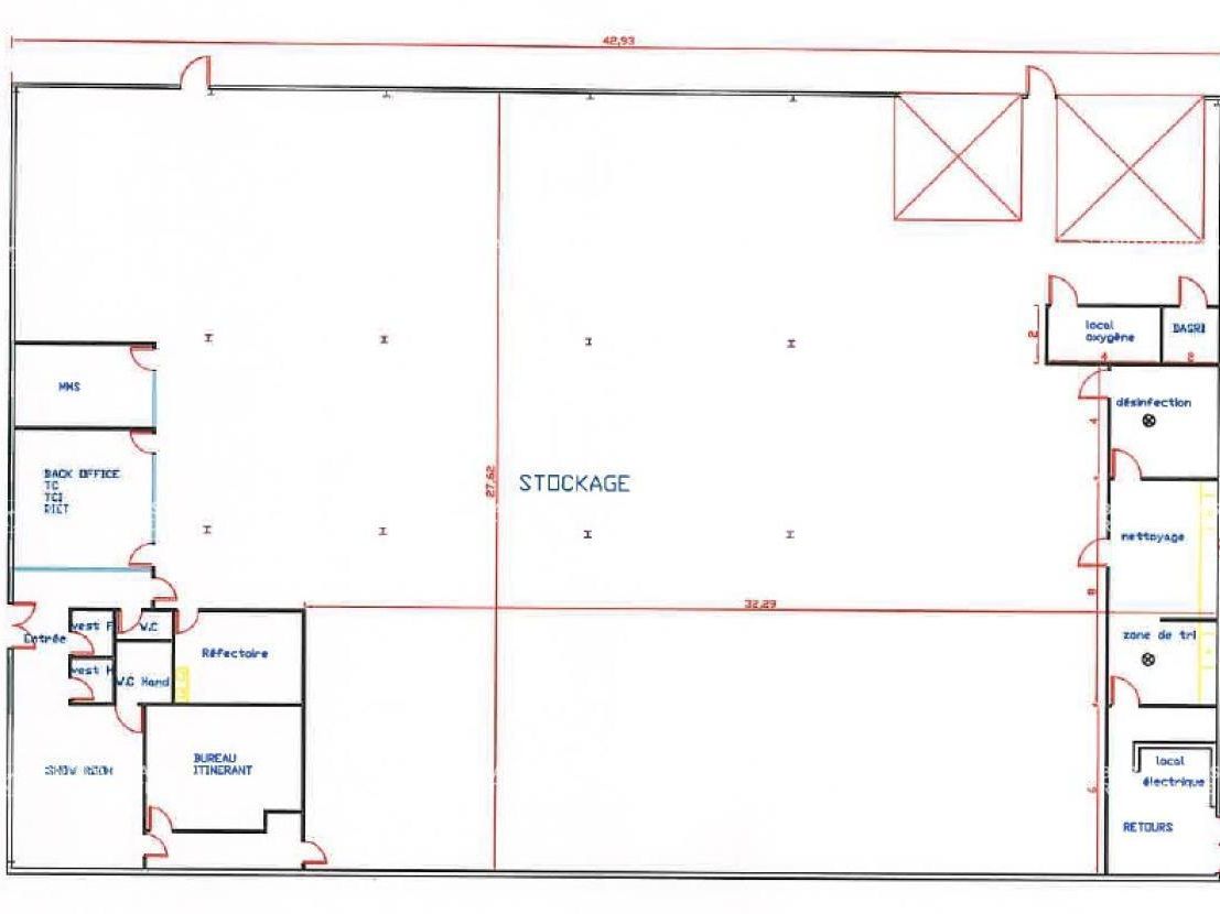
A LOUER ATELIER / STOCKAGE / LOGISTIQUE DU DERNIER KM / BUREAUX - 1200 m² env - BORDEAUX (33)
A LOUER ATELIER / STOCKAGE / LOGISTIQUE DU DERNIER KM / BUREAUX - 1200 m² env - BORDEAUX (33)
Bénéficiant d'une excellente accessibilité à 500 m de la rocade et à moins de 6 km de Bordeaux Centre-ville, ce btiment aux surfaces modulables est composé de :
1000 m² env de stockage / atelier / logistique last mile
200 m² bureaux / locaux sociaux
surfaces modulables
1 accès PL à quai
1 accès PL de plain-pied
possibilité création de portes PL supplémentaires
aire de stockage / manoeuvre extérieure
hauteur sous poutre 3,30 m
disponibilité immédiate
N'hésitez pas à nous contacter au 06 12 71 47 85 pour saisir cette opportunité, nous serons ravis de vous présenter la solution à votre projet immobilier.
Disponibilité: Immédiate
Honoraires: 20% HT du loyer HT/HC. à la signature du bail
| Fiche technique du bien | |
|---|---|
| Desserte routière | Rocade sortie 4C |
| Aéroport | A 10 minutes |
| Gare | Bordeaux St Jean |
| Etat des locaux | Très bon état |
| Charpente | Métallique |
| Murs | Bardage double peau |
| Hauteur sous poutre | entre 3,1 m et 3,3 m |
| Eclairage intérieur | Néon |
Afficher les consommations énergétiques
Favoris
Exporter
Appeler
Contacter
Signaler cette annonce










