Conciliare est une agence indépendante spécialisée en immobilier d’entreprise sur Toulouse et sa région : bureaux, entrepôts, locaux commerciaux et fonciers. L'agence accompagne les entreprises dan ...
En savoir plus

730 m²
HT HC
Location activité/entrepôt - 730 m²
Villeneuve-Tolosane (31270)
Dernière mise à jour : Il y a 2 jours
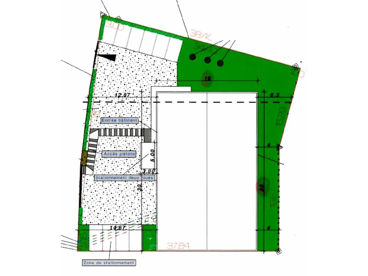
VILLENEUVE TOLOSANE - LOCATION ENTREPOT 730M2 -
Les informations sur les risques auxquels ce bien est exposé sont disponibles sur le site Géorisques : www.georisques.gouv.fr
Accès routiers immédiats + A64
Disponibilité : Février 2025
Accès gros porteur
Accès plain-pied
Bâtiment grand terrain
EDF 380
Façade bardage double peau
Parking Extérieur
Terrain clos
Loyer annuel : 75000 € HT
Type de bail : Commercial
Dépôt de garantie : 2 mois
Montant de la taxe foncière : 2500 €
Honoraires à la charge du preneur : 15 % HT
VILLENEUVE TOLOSANE - LOCATION ENTREPOT 730M2 - Sud ouest de Toulouse, à 3km de l'accès A64, au coeur d'une zone artisanale récente, entrepôt à louer d'environ 730m2. Le bien est neuf, construction en cours, sera livré en février 2025, brut de béton avec sanitaires et douche. L'entrepôt est sur une parcelle indépendante de 1500m2, dispose de deux portails, deux portes sectionnelles, parking goudronné avec accès poids lourds. Le dépôt bénéficie d'une hauteur de 8m, plusieurs puits de jour, système de désenfumage, 550m2 en rez-de-chaussée et 180m2 en Rochelle. Produit rare, à visiter rapidement ! Contactez Conciliare Immobilier au 05 25 45 03 08
Les informations sur les risques auxquels ce bien est exposé sont disponibles sur le site Géorisques : www.georisques.gouv.fr
Accès routiers immédiats + A64
Disponibilité : Février 2025
Accès gros porteur
Accès plain-pied
Bâtiment grand terrain
EDF 380
Façade bardage double peau
Parking Extérieur
Terrain clos
Loyer annuel : 75000 € HT
Type de bail : Commercial
Dépôt de garantie : 2 mois
Montant de la taxe foncière : 2500 €
Honoraires à la charge du preneur : 15 % HT
| etage | type | surface |
| rdc | dépôt | 550 |
| r+1 | rochelle / bureaux | 180 |
Voir plus
Afficher les consommations énergétiques
Localisation et transport aux alentours
Favoris
Exporter
Appeler
Contacter
Signaler cette annonce
