L’agence CBRE Lyon conseille et accompagne les chefs d’entreprise dans leurs projets immobiliers quels que soient leur taille et leur secteur d’activité. Spécialistes de la transaction de bureaux, ...
En savoir plus

2 749 m²
HT HC
Location activité/entrepôt - 2749 m²
Vaulx-en-Velin (69120)
Dernière mise à jour : Il y a 2 jours
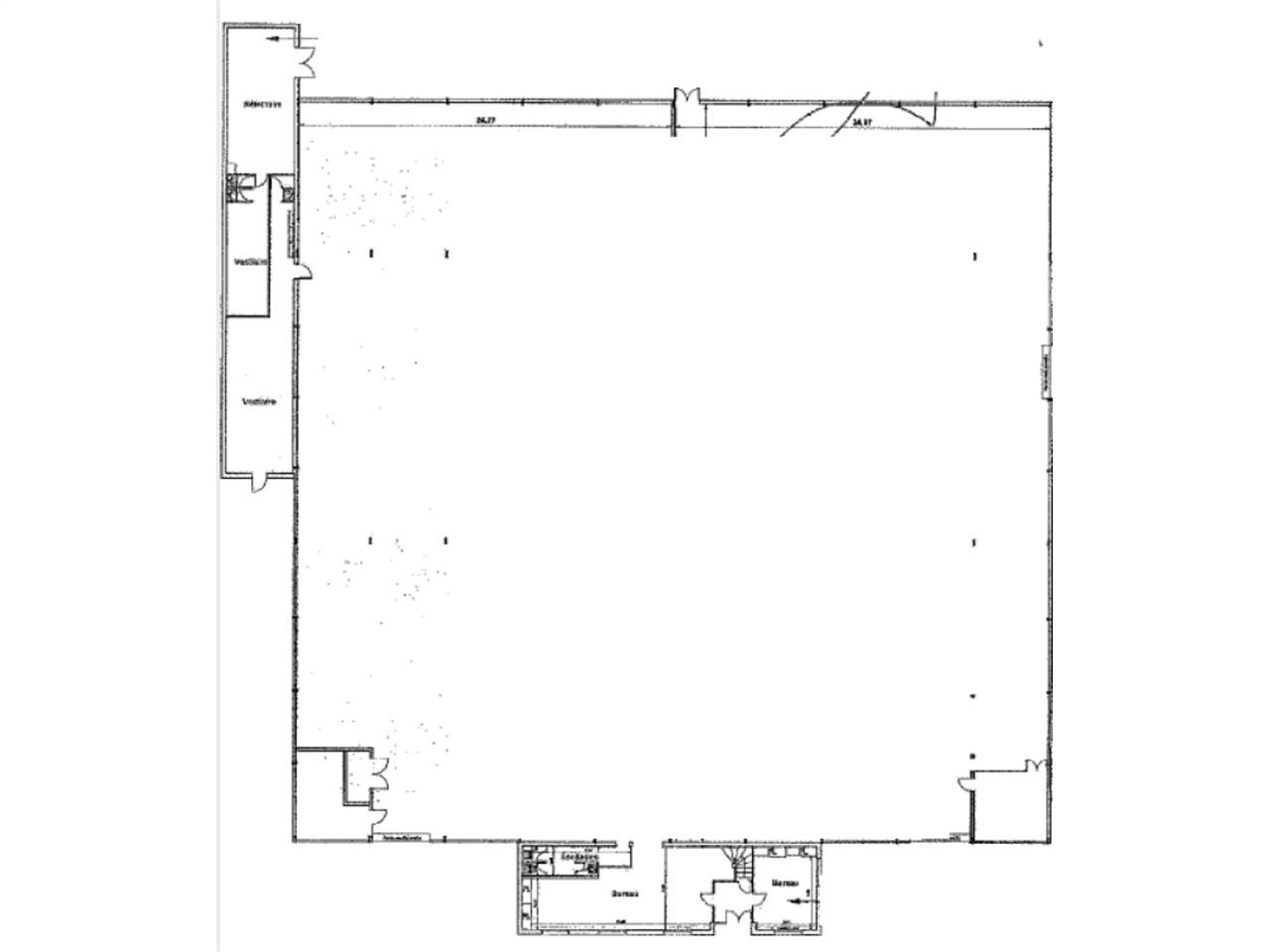
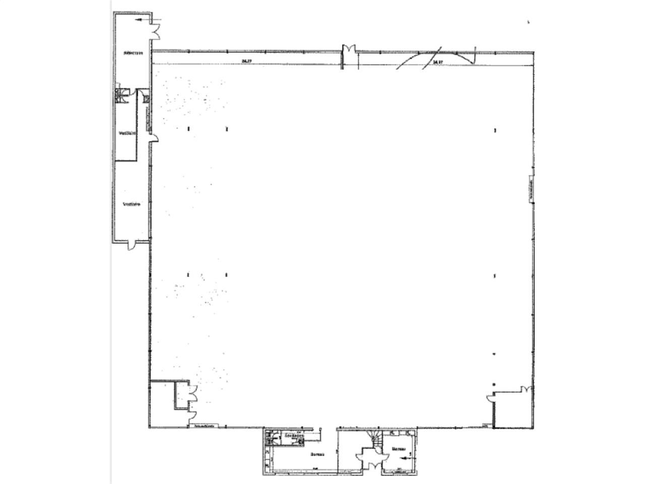
Votre agence CBRE Lyon, spécialisée en immobilier d'entreprises vous propose de découvrir ces 2 749 m² d'entrepôt, d'activités sur un terrain indépendant d'environ 4 300 m² avec deux ponts roulants de 5 tonnes et des bureaux accessoires. Ce bâtiment industriel est idéalement situé au sein de la ZI de la Rize, à 4 minutes du boulevard urbain Est sur la commune de Vaulx-en-Velin. Ces locaux disponibles immédiatement à la location bénéficient d'un espace de stockage extérieur.
LA ZI de la Rize se situe sur la première couronne de Lyon, entre le boulevard périphérique et la rocade Est, la ZI de la Rize est une terre d'accueil dense et diversifiée pour de nombreuses activités. La ZI La Rize, située intégralement sur la commune de Décines-Charpieu, a un caractère plutôt industriel et logistique.
Impôt Foncier : 7,8 €/m²/an
Régime Fiscal : T.V.A.
Dépôt de garantie : 3 mois de loyer HT/HC
Paiement Loyer : trimestriel
Honoraires : 15% HT du loyer annuel HT/HC à la charge du preneur
Prestations :
Accessibilité:
Route RN346 (Rocade Est) à 5 mn, sortie 5 Vaulx-en-Velin/Décines Les Marais
Route Boulevard Urbain Est (Boulevard des Droits de l'Homme) à 5 mn
Route Boulevard périphérique Laurent Bonnevay à 10 mn, sortie 8 Cusset
Bus Bus TCL ligne ZI3 arrêt Les Alpes face au bâtiment
Les informations sur les risques auxquels ce bien est exposé sont disponibles sur le site Géorisques : www.georisques.gouv.fr
LA ZI de la Rize se situe sur la première couronne de Lyon, entre le boulevard périphérique et la rocade Est, la ZI de la Rize est une terre d'accueil dense et diversifiée pour de nombreuses activités. La ZI La Rize, située intégralement sur la commune de Décines-Charpieu, a un caractère plutôt industriel et logistique.
| Étage | Type | Surfaces | Dispo | Loyer | Charges | Type de bailRév. annuelle |
|---|---|---|---|---|---|---|
| Activités | 2469 | Immédiate | Indice ILAT | |||
| Bureaux | 280 | Immédiate | Indice ILAT | |||
| Total Cellule 4 | Activités | 2749 | Immédiate | 65 m²/an HT HC | 2 HT/m²/an | 3-6-9 ansIndice ILAT |
Impôt Foncier : 7,8 €/m²/an
Régime Fiscal : T.V.A.
Dépôt de garantie : 3 mois de loyer HT/HC
Paiement Loyer : trimestriel
Honoraires : 15% HT du loyer annuel HT/HC à la charge du preneur
Prestations :
- Bureaux et locaux sociaux : environ 280m²
- Deux ponts roulants de 5T
- Bâtiment sur foncier indépendant
- Espace de stockage extérieur
- Surface terrain : 4300
Accessibilité:
Route RN346 (Rocade Est) à 5 mn, sortie 5 Vaulx-en-Velin/Décines Les Marais
Route Boulevard Urbain Est (Boulevard des Droits de l'Homme) à 5 mn
Route Boulevard périphérique Laurent Bonnevay à 10 mn, sortie 8 Cusset
Bus Bus TCL ligne ZI3 arrêt Les Alpes face au bâtiment
Les informations sur les risques auxquels ce bien est exposé sont disponibles sur le site Géorisques : www.georisques.gouv.fr
Voir plus
Afficher les consommations énergétiques
Favoris
Exporter
Appeler
Contacter
Signaler cette annonce










