A l’appui d’un réseau leader à l’international, I&L Solutions est une équipe de plus de 70 professionnels spécialisés en immobilier Logistique et Industriel au service des investisseurs, des propri ...
En savoir plus

4 600 m²
Loyer sur demande
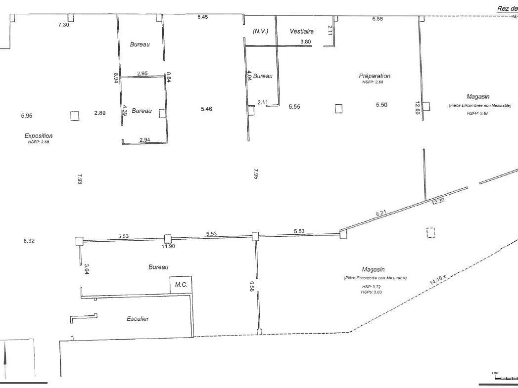
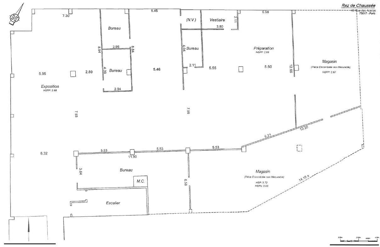
Location activité/entrepôt - 4600 m²
Paris 17 (75017)
Dernière mise à jour : Hier
Rare sur le secteur! CBRE vous propose à louer, un immeuble indépendant à Paris dans le 17ème arrondissement. A proximité des lignes A, C du RER d'Ile-de-France et les lignes 1,2 et 6 du métro parisien. Il dispose de nombreux emplacements de parking. Accessibilité moyen porteur et rampe d'accès. Belle surface de 4 600 m² non divisibles. Location entrepôt idéal pour le développement de vos activités professionnelles. Bail commercial. Disponible immédiatement.
Si cet entrepôt/local d'activités à louer dans le 75 vous intéresse ou si vous souhaitez obtenir plus de renseignements, n'hésitez pas à me contacter aujourd'hui pour organiser une visite et bénéficier de toutes les informations nécessaires pour votreprojet immobilier.
En tant qu'expert en immobilier professionnel/industriel, je suis à votre disposition pour vous aider à trouver le bien adapté à vos activités professionnelles et à votre coeur de métier.
Régime Fiscal : T.V.A.
Honoraires : 15% HT du loyer annuel HT/HC à la charge du preneur
Prestations :
Accessibilité:
Metro Argentine (Ligne 1), Ternes (Ligne 2)
Metro Charles de Gaulle - Etoile (Lignes 1, 2 et 6)
RER Charles de Gaulle - Etoile (Ligne A)
RER Neuilly - Porte Maillot (Ligne C)
Bus Nombreuses lignes
Les informations sur les risques auxquels ce bien est exposé sont disponibles sur le site Géorisques : www.georisques.gouv.fr
Si cet entrepôt/local d'activités à louer dans le 75 vous intéresse ou si vous souhaitez obtenir plus de renseignements, n'hésitez pas à me contacter aujourd'hui pour organiser une visite et bénéficier de toutes les informations nécessaires pour votreprojet immobilier.
En tant qu'expert en immobilier professionnel/industriel, je suis à votre disposition pour vous aider à trouver le bien adapté à vos activités professionnelles et à votre coeur de métier.
| Étage | Type | Surfaces | Dispo | Loyer | Charges | Type de bailRév. annuelle |
|---|---|---|---|---|---|---|
| 2 | Activités | 710 | Immédiate | 3-6-9 ansIndice ILAT | ||
| 1 | Activités | 670 | Immédiate | 3-6-9 ansIndice ILAT | ||
| ENT | Activités | 250 | Immédiate | 3-6-9 ansIndice ILAT | ||
| ENT | Activités | 100 | Immédiate | 3-6-9 ansIndice ILAT | ||
| RDC | Activités | 550 | Immédiate | 3-6-9 ansIndice ILAT | ||
| RDC | Activités | 195 | Immédiate | 3-6-9 ansIndice ILAT | ||
| 1SS | Activités | 720 | Immédiate | 3-6-9 ansIndice ILAT | ||
| 1SS | Activités | 95 | Immédiate | 3-6-9 ansIndice ILAT | ||
| 2SS | Activités | 640 | Immédiate | 3-6-9 ansIndice ILAT | ||
| 3SS | Activités | 670 | Immédiate | 3-6-9 ansIndice ILAT |
Régime Fiscal : T.V.A.
Honoraires : 15% HT du loyer annuel HT/HC à la charge du preneur
Prestations :
- Accueil
- Alarme
- Accès moyens porteurs
- Rampe d'accès
- Monte charge
- Total Rampe : 250m²
- Immeuble indépendant
- Surface RDC : 745 m²
- Surface terrain : 0
- Haut. libre min. ss poutre : 3 m
- Haut. libre max. ss poutre : 4 m
Accessibilité:
Metro Argentine (Ligne 1), Ternes (Ligne 2)
Metro Charles de Gaulle - Etoile (Lignes 1, 2 et 6)
RER Charles de Gaulle - Etoile (Ligne A)
RER Neuilly - Porte Maillot (Ligne C)
Bus Nombreuses lignes
Les informations sur les risques auxquels ce bien est exposé sont disponibles sur le site Géorisques : www.georisques.gouv.fr
Voir plus
Afficher les consommations énergétiques
Favoris
Exporter
Appeler
Contacter
Signaler cette annonce







