BNP Paribas Real Estate, N°1 de la transaction en immobilier d''entreprise en France, vous propose un accompagnement de qualité pour l''acquisition, la vente ou la location d''un bien immobilier.Vo ...
En savoir plus

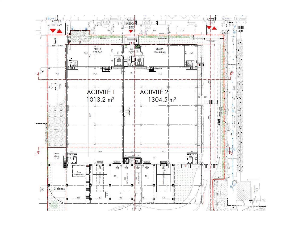
Location activité/entrepôt - 8663 m²
BNP PARIBAS REAL ESTATE vous propose, à la location, un bâtiment indépendant à construire de locaux d’activité en RDC et en étage accessibles par rampe avec bureaux d’accompagnement d’une surface de 8 663 m² dont 1 800 m² de bureaux et 6 370 m² d'activité.
Le bâtiment offrira un accès aux véhicules de livraison type moyen-porteurs avec quais et portes de plain-pied à tous les niveaux ainsi que de belles prestations techniques. Ces locaux bénéficiront d’une accessibilité remarquable avec l'A 14 , les quais de Seine ainsi que le périphérique parisien ainsi qu'un accès à 5 minutes à pieds des transports en communs, dans un environnement tertiaire et dynamique.
Accessibilité
•Accès routier : A14 ; Quais de Seine ; périphérique.
•Gare : Nanterre-Préfecture (RER A)
•Aéroport : Orly
Services / Prestations
•Hauteur : entre 3.4 et 6.4 mètres sous poutres selon les niveaux.
•Portes plain-pied : 10 au RDC, R+1 et R+2
•Quais : 2 au RDC
•Charge au sol : 1,5T / m² au RDC et au R+1 ; 500 kg/ m² au R+2
•Restauration : A proximité immédiate
•Parking : 72
Pour toute information complémentaire, n'hésitez pas à prendre contact avec nos consultants BNP PARIBAS REAL ESTATE.
Disponibilité: 18 mois après accordHonoraires: 15% HT du loyer HT/HC. à la signature du bail
| Fiche technique du bien | |
|---|---|
| Métro | M1 La Défense (Grande Arche) |
| RER | A Nanterre Préfecture |
| Bus | Lignes 158, 258 et 358 |
| Tramway | T2 Puteaux |
| Desserte routière | N 13, A 86, A 14 et circulaire |
| Etat de l'immeuble | dans immeuble de bon standing |
| Parking(s) | sous-terrain sera accessible uniquement aux petits véhicules 2,5T |
| Faux plafond | Oui |
| Charpente | Béton |
| Couverture | Bac acier isolé |
| Murs | Bardage double peau |
| Sols du bâtiment | Béton |
| Charge au sol RDC | 1,50 tonne(s)/m² |
| Porte(s) d'accès à quai | Niveleurs hydrauliq. |
| Accessibilité type véhicules | Moyens porteurs |
| Eclairage intérieur | LED |
| Puissance électrique | Tarif Jaune |
| Locaux sociaux | Douches/Vestiaires et Sanitaires |










