A l’appui d’un réseau leader à l’international, I&L Solutions est une équipe de plus de 70 professionnels spécialisés en immobilier Logistique et Industriel au service des investisseurs, des propri ...
En savoir plus

250 m²
HT HC
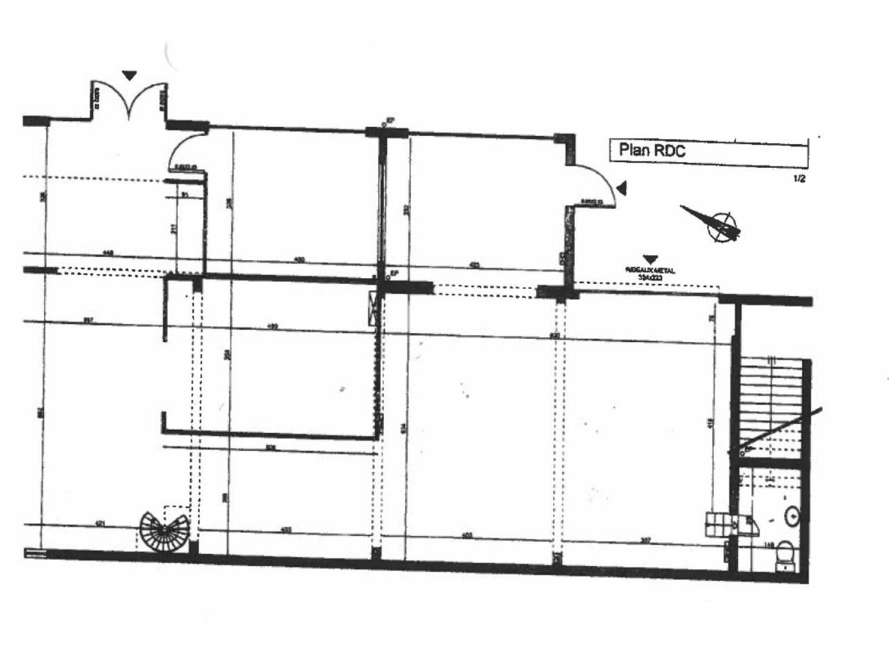
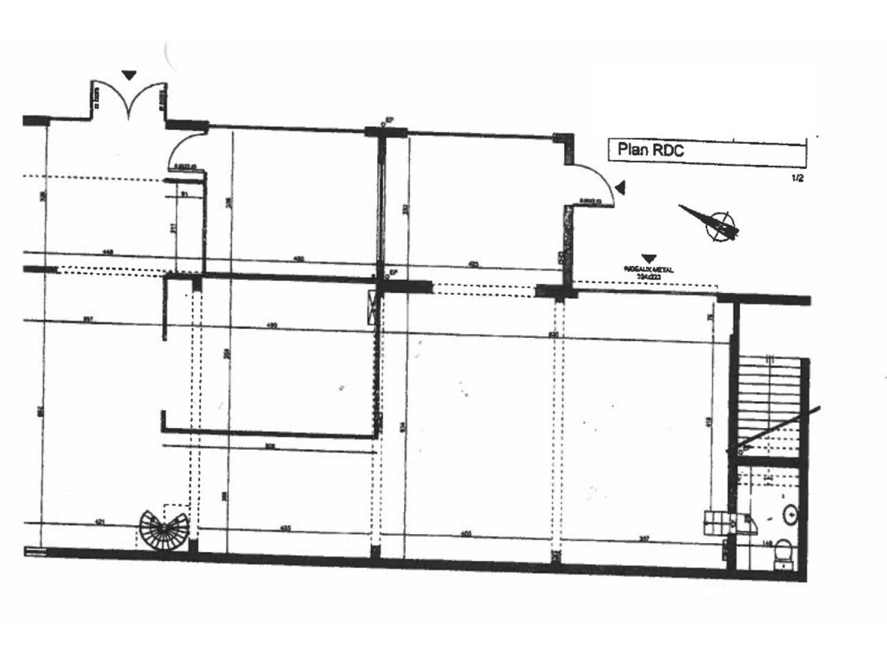
Location activité/entrepôt - 250 m²
Nanterre (92000)
Dernière mise à jour : Il y a 2 jours
CBRE vous propose à louer, un bâtiment indépendant d'activités situé sur la commune de Nanterre dans le département des Hauts de Seine (92). A proximité de l'autoroute A86, sur la ligne A du RER d'Île-de-France. Belle surface de 250 m² non divisibles. Ce local industriel dispose d'une porte de plain pied et plusieurs places de parking. Location entrepôt idéal pour le développement de vos activités professionnelles. Bail commercial. Disponible immédiatement.
Si cet entrepôt/local d'activités à louer dans le 92 vous intéresse ou si vous souhaitez obtenir plus de renseignements, n'hésitez pas à me contacter aujourd'hui pour organiser une visite et bénéficier de toutes les informations nécessaires pour votreprojet immobilier.
En tant qu'expert en immobilier professionnel/industriel, je suis à votre disposition pour vous aider à trouver le bien adapté à vos activités professionnelles et à votre coeur de métier.
Dépôt de garantie : 3 mois de loyer HT/HC
Paiement Loyer : trimestriel
Honoraires : 15% HT du loyer annuel HT/HC à la charge du preneur
Information sur le Bail :
Pas de charges
Prestations :
Accessibilité:
Bus ARRAS (163)
Transilien La Défense (L, U)
Metro Nanterre La Folie (L15 Horizon 2030)
RER Nanterre-Préfecture (A)
Tramway LES FAUVELLES (T2)
Les informations sur les risques auxquels ce bien est exposé sont disponibles sur le site Géorisques : www.georisques.gouv.fr
Si cet entrepôt/local d'activités à louer dans le 92 vous intéresse ou si vous souhaitez obtenir plus de renseignements, n'hésitez pas à me contacter aujourd'hui pour organiser une visite et bénéficier de toutes les informations nécessaires pour votreprojet immobilier.
En tant qu'expert en immobilier professionnel/industriel, je suis à votre disposition pour vous aider à trouver le bien adapté à vos activités professionnelles et à votre coeur de métier.
| Étage | Type | Surfaces | Dispo | Loyer | Charges | Type de bailRév. annuelle |
|---|---|---|---|---|---|---|
| RDC | Activités | 152 | Immédiate | Convention occupation temporaireIndice ILAT | ||
| 1 | Bureaux | 98 | Immédiate | Convention occupation temporaireIndice ILAT |
Dépôt de garantie : 3 mois de loyer HT/HC
Paiement Loyer : trimestriel
Honoraires : 15% HT du loyer annuel HT/HC à la charge du preneur
Information sur le Bail :
Pas de charges
Prestations :
- Site sécurisé avec caméra de surveillance
- Une kitchenette
- 3 WC
- Climatisation réversible
- 3 places de parking
- Immeuble indépendant
- Surface RDC : 152 m²
- Surface terrain : 0
- Haut. libre min. ss poutre : 2,5 m
- Nbr de portes plain pied : 1
Accessibilité:
Bus ARRAS (163)
Transilien La Défense (L, U)
Metro Nanterre La Folie (L15 Horizon 2030)
RER Nanterre-Préfecture (A)
Tramway LES FAUVELLES (T2)
Les informations sur les risques auxquels ce bien est exposé sont disponibles sur le site Géorisques : www.georisques.gouv.fr
Voir plus
Afficher les consommations énergétiques
Favoris
Exporter
Appeler
Contacter
Signaler cette annonce









