A l’appui d’un réseau leader à l’international, I&L Solutions est une équipe de plus de 70 professionnels spécialisés en immobilier Logistique et Industriel au service des investisseurs, des propri ...
En savoir plus

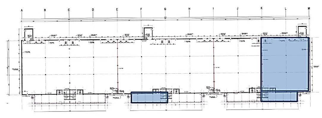
3 403 m²
HT HC
Location activité/entrepôt - 3403 m²
Combs-la-Ville (77380)
Dernière mise à jour : Hier
CBRE vous propose à la location, un entrepôt/local d'activités dans un bâtiment indépendant clos et sécurisé. Situé sur la commune de Combs La Ville dans le département de Seine-et-Marne (77). Localisation exceptionnelle à proximité immédiate de la Nationale N104 et sur la ligne D du RER d'Île de France. Ce local industriel dispose d'une grande hauteur, portes de plain-pied, portes à quai et aires de manoeuvre importantes pour le flux poids lourds. Belle surface de 3 403 m² non divisible. Location entrepôt idéal pour le développement de vos activités professionnelles. Bail commercial. Disponibilité immédiate.
Si cet entrepôt/local d'activités à louer dans le 77 vous intéresse ou si vous souhaitez obtenir plus de renseignements, n'hésitez pas à me contacter aujourd'hui pour organiser une visite et bénéficier de toutes les informations nécessaires pour votre projet immobilier.
En tant qu'expert en immobilier professionnel/industriel, je suis à votre disposition pour vous aider à trouver le bien adapté à vos activités professionnelles et à votre coeur de métier.
Régime Fiscal : T.V.A.
Dépôt de garantie : 3 mois de loyer HT/HC
Paiement Loyer : trimestriel
Honoraires : 15 % HT d'un loyer annuel HT/HC à la charge du preneur
Prestations :
Accessibilité:
Autoroute A 1 - A 6 - A 4 - A 10 - A 5 - Francilienne (N 104)
RER Ligne "D" : Combs-la-Ville/Quincy
Bus 35 lignes : Liaison directe vers Massy (Gare TGV) Evry, Melun (Gare TGV)
Aeroport ORLY à 20 mn par la Francilienne, l' A 6 et la N 10
Les informations sur les risques auxquels ce bien est exposé sont disponibles sur le site Géorisques : www.georisques.gouv.fr
Si cet entrepôt/local d'activités à louer dans le 77 vous intéresse ou si vous souhaitez obtenir plus de renseignements, n'hésitez pas à me contacter aujourd'hui pour organiser une visite et bénéficier de toutes les informations nécessaires pour votre projet immobilier.
En tant qu'expert en immobilier professionnel/industriel, je suis à votre disposition pour vous aider à trouver le bien adapté à vos activités professionnelles et à votre coeur de métier.
| Étage | Type | Surfaces | Dispo | Loyer | Charges | Type de bailRév. annuelle |
|---|---|---|---|---|---|---|
| RDC | Entrepôts | 2631 | Immédiate | 75 m²/an HT HC | 10,93 m²/an HT | Indice ILAT |
| RDC | Bureaux | 772 | Immédiate | 75 m²/an HT HC | 10,93 m²/an HT | Indice ILAT |
| Total Cellule AA' | Activités | 3403 | Immédiate | 75 m²/an HT HC | 10,93 HT/m²/an | 3-6-9 ansIndice ILAT |
Régime Fiscal : T.V.A.
Dépôt de garantie : 3 mois de loyer HT/HC
Paiement Loyer : trimestriel
Honoraires : 15 % HT d'un loyer annuel HT/HC à la charge du preneur
Prestations :
- Surface terrain: 64 882 m²
- STRUCTURE:
- Ossature béton
- Couverture bac acier isolé avec étanchéité multicouches
- Trames de poteaux : 12 m x 17 m
- EQUIPEMENTS:
- Portes à quai motorisées et équipées de niveleurs de quai, fosses à hayon, sas d'étanchéité, guide-roues et aire de béquillage
- Chaufferie gaz
- Chauffage par aérothermes au gaz
- Locaux sociaux avec kitchenette et vestiaires H/F
- Service de gardiennage sur site équipe de Property et de Facility management dédiée en interne
- BÂTIMENT 2:
- Parking VL : 26 places
- Aire de manoeuvre: 30 m
- Dallage : 5 t/m²
- Hauteur libre: 7,5 mètres
- Charpente : béton
- Toiture: bitume
- Quais : 1
- Accès plain pied motorisé : 2
- RIA
- * Conditions Financières:
- Taxes foncières prévisionnelle : 15,24 euros m²/an
- Taxe bureaux & Taxe stockage : 4,71 euros HT/m²/an
- Taxe parkings/stationnement : 4 euros HT/m²/an
- CELLULE AA' :
- Parking VL: : 53 places
- Aire de manoeuvre: 30 mètres
- Dallage: : 5 T/m²
- Cellules: : 2
- Hauteur libre: 7,5 mètres
- Charpente: béton
- Toiture: bitume
- Quais 2
- Accès plain pied motorisé: 4
- RIA
- Limitation tonnage pour les deux cellules 100 t matières combustibles (car bâtiment 1 ICPE 1510 donc PAC de préfecture à se conformer)
- Taxe Foncière 2023: 15,69 euros m²/an
- Taxe bureaux & Taxe stockage: 3,48 euros HT m²/an
- Immeuble indépendant
- Surface RDC : 3403 m²
- Bâtiment classe :A
Accessibilité:
Autoroute A 1 - A 6 - A 4 - A 10 - A 5 - Francilienne (N 104)
RER Ligne "D" : Combs-la-Ville/Quincy
Bus 35 lignes : Liaison directe vers Massy (Gare TGV) Evry, Melun (Gare TGV)
Aeroport ORLY à 20 mn par la Francilienne, l' A 6 et la N 10
Les informations sur les risques auxquels ce bien est exposé sont disponibles sur le site Géorisques : www.georisques.gouv.fr
Voir plus
Afficher les consommations énergétiques
Favoris
Exporter
Appeler
Contacter
Signaler cette annonce
