A l’appui d’un réseau leader à l’international, I&L Solutions est une équipe de plus de 70 professionnels spécialisés en immobilier Logistique et Industriel au service des investisseurs, des propri ...
En savoir plus

41 894 m² divisible dès 13 000 m²
HT HC
Location activité/entrepôt - 41894 m²
Combs-la-Ville (77380)
Dernière mise à jour : Il y a 1 mois
Au sein de la ZAC de Parisud, la ville est située à 28 km au Sud-Est de Paris et à un peu plus de 16 km au Nord de Melun. CBRE vous propose à la location un entrepôt de classe "A", développant une surface de 41 918 m², sur un terrain d'environ 9 ha. Nombreuses portes à quai et de plain-pied. ICPE : 1510, 1532, 1530, 2662, 2663, 2920, 2925.
Le site bénéficie d'accès routiers de grande qualité : N104, N6 à proximité de l'A7. R.E.R. "D" - Combs-la-Ville/Quincy ou Lieusaint/Moissy.
Régime Fiscal : T.V.A.
Dépôt de garantie : 3 mois de loyer HT/HC
Honoraires : 15 % HT d'un loyer annuel HT/HC à la charge du preneur
Information sur le Bail :
Provisions sur charges : 4,26 euros HT/m²/an (hors gardiennage et hors fluides) Assurances : 0,94 euros HT/m²/an Taxes foncières 20214: 15,01 euros / m²/an TBU/TASS 204: 3,89 euros / m²/an
Prestations :
Accessibilité:
ACCES ROUTIERS :
Francilienne N 104 - A5 - Orly à 20 min par l'A6
R.E.R : "D"
Lieusaint-Moissy
AREOPORTS :
Orly à 20 min par l'A6
Roissy Charles de Gaulle à 40 mn par la Francilienne
Les informations sur les risques auxquels ce bien est exposé sont disponibles sur le site Géorisques : www.georisques.gouv.fr
Le site bénéficie d'accès routiers de grande qualité : N104, N6 à proximité de l'A7. R.E.R. "D" - Combs-la-Ville/Quincy ou Lieusaint/Moissy.
| Étage | Type | Surfaces | Dispo | Loyer | Charges | Type de bailRév. annuelle |
|---|---|---|---|---|---|---|
| RDC | Entrepôts | 37207 | Immédiate | 73 m²/an HT HC | 6 ans fermesIndice ILAT | |
| RDC | Bureaux | 3815 | Immédiate | 73 m²/an HT HC | 6 ans fermesIndice ILAT | |
| RDC | Entrepôts | 828 | Immédiate | 73 m²/an HT HC | 6 ans fermesIndice ILAT | |
| RDC | Entrepôts | 44 | Immédiate | 73 m²/an HT HC | 6 ans fermesIndice ILAT |
Régime Fiscal : T.V.A.
Dépôt de garantie : 3 mois de loyer HT/HC
Honoraires : 15 % HT d'un loyer annuel HT/HC à la charge du preneur
Information sur le Bail :
Provisions sur charges : 4,26 euros HT/m²/an (hors gardiennage et hors fluides) Assurances : 0,94 euros HT/m²/an Taxes foncières 20214: 15,01 euros / m²/an TBU/TASS 204: 3,89 euros / m²/an
Prestations :
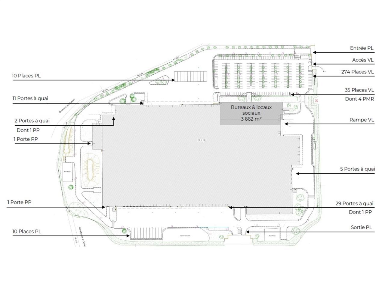
- Surface RDC : 41894 m²
- Surface terrain : 90950
- Equipements entrepôts : . Date de construction 1998
. Rénovation en 2010
. Surface totale du bâtiment 40 866 m²
Éclairage des cellules de stockage par tubes fluo
STRUCTURE :
. Structure béton
. Charpente métallique, revêtement bitumeux
. Couverture bac acier, laine de roche et étanchéité
. Éclairage zénithal compris désenfumage : 3 %
. Façades en bardage métallique double peau, et en béton sur la hauteur des portes sectionnelles
. Hauteur libre 10,6 m et 7,5 m sur 2 cellules
. Charges au sol 5t/m²
. Cour camion : 32 m
. Chauffage : 3 chaudières gaz en redondance
EQUIPEMENTS :
. 48 portes à quai dont 1 PP
. 1 Rampe VL
. Cour de débord environ 33 m
. Sprinkler APSAD sous eau intérieur /sous air extérieur
. RIA
. 2 locaux de charge
. Parking VL 309 emplacements
. Parking VL PMR 4 emplacements
. Parking PL 20 emplacements
PROGRAMME TRAVAUX :
. Reprise étanchéité de la toiture
. Reprise complète de l'enveloppe du bâtiment, double peau conformément à l certification BREEAM Excellent
. Réfection des LC
. Voiries et extérieurs
. Intérieurs : rénovation bureaux, sanitaires
. Docks : remplacements d'éléments de quais et portes sectionnelles
. Mise en place système BMS
. Sécurité incendie : vérification, remplacement moteurs fumée et portes coupe-feu - ICPE :
- Enregistrements : 1530,2662,2663
- Autorisations : 1510,1532
- Déclarations : 2925
- Bâtiment classe :A
Accessibilité:
ACCES ROUTIERS :
Francilienne N 104 - A5 - Orly à 20 min par l'A6
R.E.R : "D"
Lieusaint-Moissy
AREOPORTS :
Orly à 20 min par l'A6
Roissy Charles de Gaulle à 40 mn par la Francilienne
Les informations sur les risques auxquels ce bien est exposé sont disponibles sur le site Géorisques : www.georisques.gouv.fr
Voir plus
Afficher les consommations énergétiques
Favoris
Exporter
Appeler
Contacter
Signaler cette annonce










