Evolis, votre partenaire en immobilier d’entreprise! Que vous soyez une entreprise, utilisateur de locaux professionnels, investisseur, ou propriétaire, Evolis met à votre service son expertise ...
En savoir plus

10 235 m²
HT HC
Location activité/entrepôt - 10235 m²
Châteaurenard (13160)
Dernière mise à jour : Il y a 4 jours
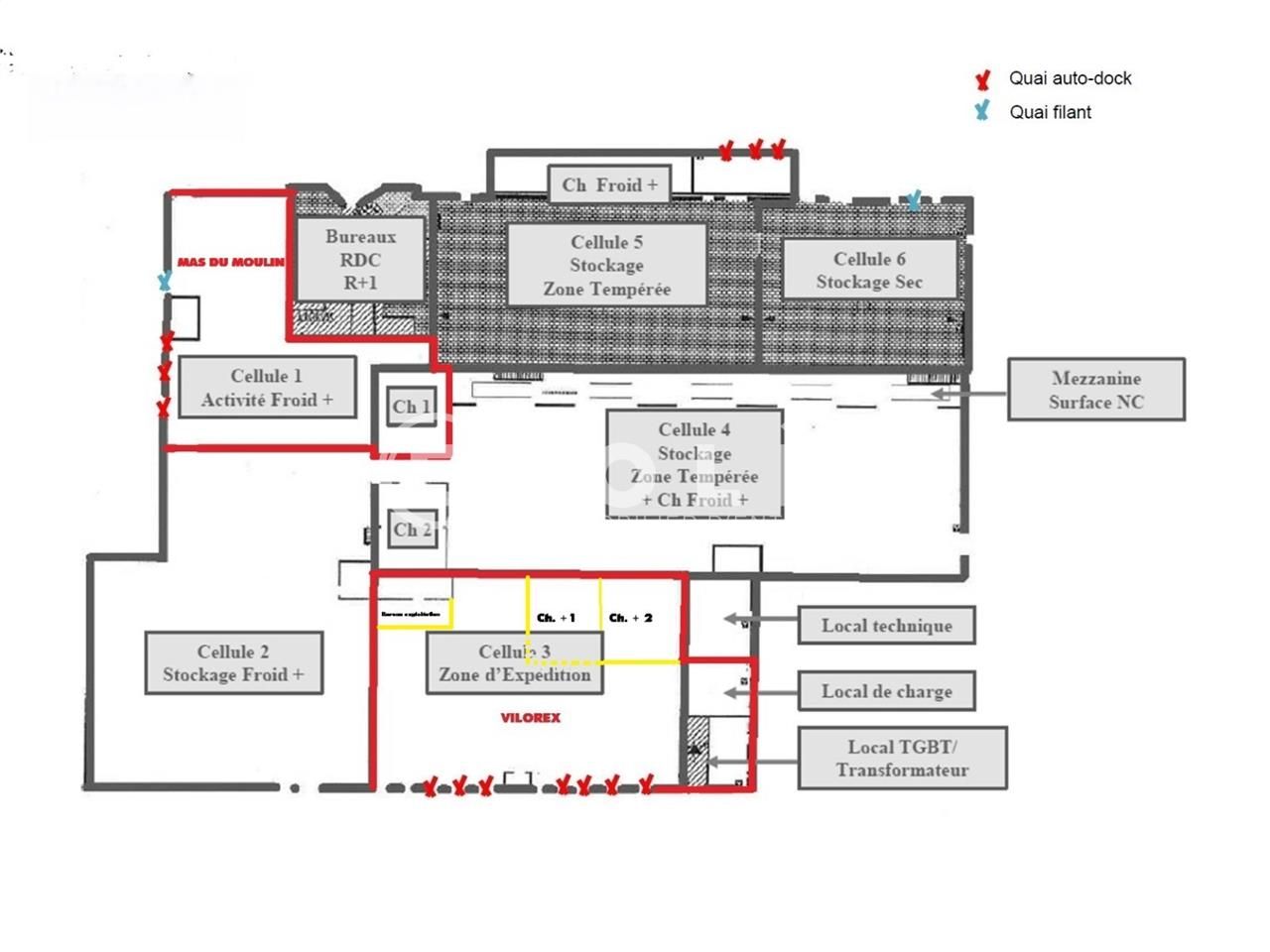
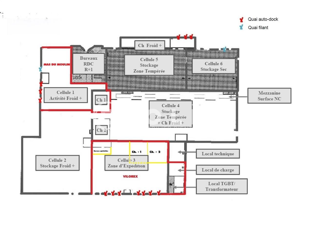
10 235 m² D' entreposage Sec/ Froid
Locaux Froid de 10 235 m², divisible à partir de 750m², bénéficiant d'une localisation stratégique, cet entrepôt offre des caractéristiques de qualité telles que des accès faciles pour les camions, une hauteur sous plafond généreuse, des bureaux aménageables et des aires de stationnement spacieuses. U
Impôt Foncier : 4,59 €/m²/an
Régime Fiscal : T.V.A.
Dépôt de garantie : 3 mois de loyer HT HC
Information sur le Bail :
Honoraire Preneur 15 % HT du loyer annuel HT
Prestations :
Accessibilité:
Autoroute Echangeur A7 Avignon sud 20 min
Les informations sur les risques auxquels ce bien est exposé sont disponibles sur le site Géorisques : www.georisques.gouv.fr
Locaux Froid de 10 235 m², divisible à partir de 750m², bénéficiant d'une localisation stratégique, cet entrepôt offre des caractéristiques de qualité telles que des accès faciles pour les camions, une hauteur sous plafond généreuse, des bureaux aménageables et des aires de stationnement spacieuses. U
| Étage | Type | Surfaces | Dispo | Loyer | Charges | Type de bailRév. annuelle |
|---|---|---|---|---|---|---|
| RDJ | Locaux techniques | 130 | Nous consulter | 55 m²/an/ HT/HC | Bail commercial 3-6-9 ansILAT Indice des Loyers des Activités Tertiaires | |
| RDC | Stockage plateforme | 5760 | Nous consulter | 55 m²/an/ HT/HC | Bail commercial 3-6-9 ansILAT Indice des Loyers des Activités Tertiaires | |
| RDC | Entrepôt frigorifique | 2660 | Nous consulter | 55 m²/an/ HT/HC | Bail commercial 3-6-9 ansILAT Indice des Loyers des Activités Tertiaires | |
| RDC | Entrepôts | 750 | Nous consulter | 55 m²/an/ HT/HC | Bail commercial 3-6-9 ansILAT Indice des Loyers des Activités Tertiaires | |
| RDC et R+1 | Bureaux | 935 | Nous consulter | 55 m²/an/ HT/HC | Bail commercial 3-6-9 ansILAT Indice des Loyers des Activités Tertiaires |
Impôt Foncier : 4,59 €/m²/an
Régime Fiscal : T.V.A.
Dépôt de garantie : 3 mois de loyer HT HC
Information sur le Bail :
Honoraire Preneur 15 % HT du loyer annuel HT
Prestations :
- La zone du Barret est une zone de 25 ha dominée par la filière Agroalimentaire.
- Le Bâtiment de 10 235 m² s'inscrit complètement dans cet environnement en proposant des cellules à température dirigée et en froid positif. Toutefois le stockage de matière sèche sera également possible.
- Surface RDC : 9300 m²
- Haut. libre min. ss poutre : 6 m
- Haut. libre max. ss poutre : 7 m
- Résistance sol : 3 T/m²
- Accès bâtiment : Moyens et gros porteurs
- Nbr de portes à quai : 10
- Nbr de portes plain pied : 2
- Ossature : Métallique
- Murs périmétriques : Double bardage
- Couverture : Bac acier
Accessibilité:
Autoroute Echangeur A7 Avignon sud 20 min
Les informations sur les risques auxquels ce bien est exposé sont disponibles sur le site Géorisques : www.georisques.gouv.fr
Voir plus
Afficher les consommations énergétiques
Localisation et transport aux alentours
Favoris
Exporter
Appeler
Contacter
Signaler cette annonce










