Evolis, votre partenaire en immobilier d’entreprise! Que vous soyez une entreprise, utilisateur de locaux professionnels, investisseur, ou propriétaire, Evolis met à votre service son expertise ...
En savoir plus

4 250 m²
HT HC
Location activité/entrepôt - 4250 m²
Châteaurenard (13160)
Dernière mise à jour : Il y a 4 jours
4 250 m² d'entreposage froid dirigé / sec
EVOLIS propose un espace de 4 250 m² non divisibles, idéalement situé pour votre activité professionnelle. Bénéficiant d'une localisation stratégique, cet entrepôt offre des caractéristiques de qualité telles que des accès poids lourds, une hauteur sous plafond importante et des bureaux aménagés.
L'autoroute A7, avec accès à l'échangeur d'Avignon sud, se situe à seulement 20 minutes de route de l'adresse mentionnée. De nombreux arrêts de transports en commun sont également disponibles à proximité pour faciliter les déplacements en bus ou en train.
Impôt Foncier : 4,59 €/m²/an
Régime Fiscal : T.V.A.
Dépôt de garantie : 3 mois de loyer HT HC
Information sur le Bail :
Honoraire Preneur 15 % HT du loyer annuel HT
Prestations :
Accessibilité:
Autoroute Echangeur A7 Avignon sud 20 min
Les informations sur les risques auxquels ce bien est exposé sont disponibles sur le site Géorisques : www.georisques.gouv.fr
EVOLIS propose un espace de 4 250 m² non divisibles, idéalement situé pour votre activité professionnelle. Bénéficiant d'une localisation stratégique, cet entrepôt offre des caractéristiques de qualité telles que des accès poids lourds, une hauteur sous plafond importante et des bureaux aménagés.
L'autoroute A7, avec accès à l'échangeur d'Avignon sud, se situe à seulement 20 minutes de route de l'adresse mentionnée. De nombreux arrêts de transports en commun sont également disponibles à proximité pour faciliter les déplacements en bus ou en train.
| Étage | Type | Surfaces | Dispo | Loyer | Charges | Type de bailRév. annuelle |
|---|---|---|---|---|---|---|
| RDC | Activités | 4250 | Nous consulter | 80 m²/an/ HT/HC | Bail commercial 3-6-9 ansILAT Indice des Loyers des Activités Tertiaires |
Impôt Foncier : 4,59 €/m²/an
Régime Fiscal : T.V.A.
Dépôt de garantie : 3 mois de loyer HT HC
Information sur le Bail :
Honoraire Preneur 15 % HT du loyer annuel HT
Prestations :
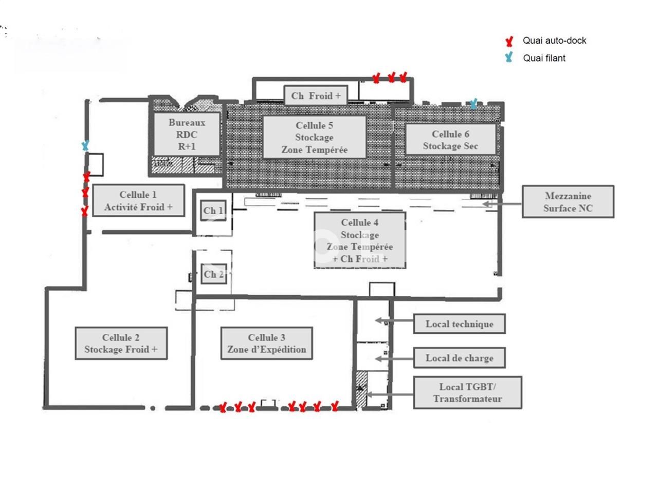
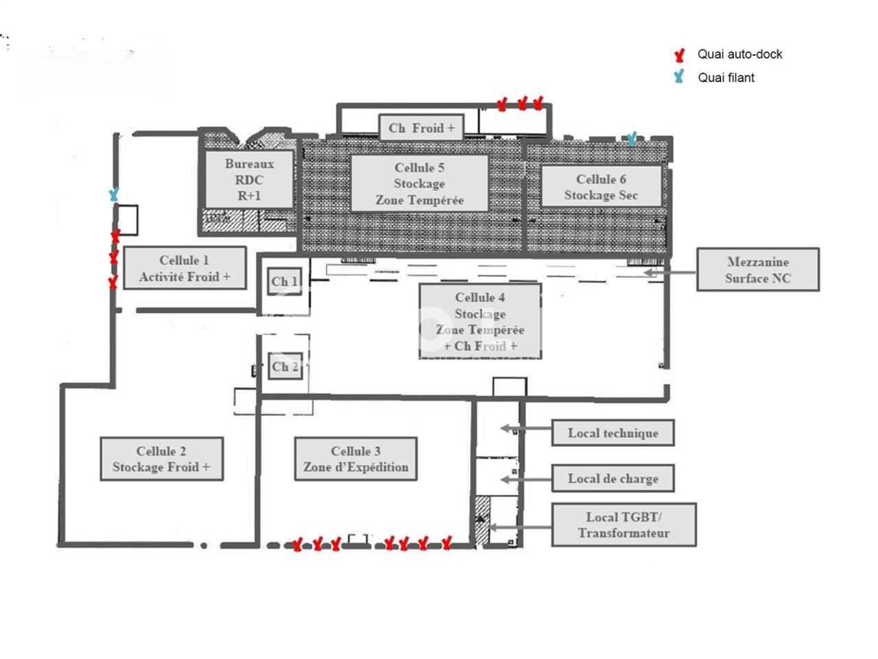
- La zone du Barret est une zone de 25 ha dominée par la filière Agroalimentaire.
- Le Bâtiment de 4 250 m² s'inscrit complètement dans cet environnement en proposant des cellules à température dirigée et en froid positif. toutefois le stockage de matière sèche sera également possible.
- Surface RDC : 4250 m²
- Haut. libre min. ss poutre : 6 m
- Haut. libre max. ss poutre : 7 m
- Résistance sol : 3 T/m²
- Accès bâtiment : Moyens et gros porteurs
- Nbr de portes à quai : 7
- Ossature : Métallique
- Murs périmétriques : Double bardage
- Couverture : Bac acier
Accessibilité:
Autoroute Echangeur A7 Avignon sud 20 min
Les informations sur les risques auxquels ce bien est exposé sont disponibles sur le site Géorisques : www.georisques.gouv.fr
Voir plus
Afficher les consommations énergétiques
Localisation et transport aux alentours
Favoris
Exporter
Appeler
Contacter
Signaler cette annonce










