Evolis, votre partenaire en immobilier d’entreprise! Que vous soyez une entreprise, utilisateur de locaux professionnels, investisseur, ou propriétaire, Evolis met à votre service son expertise ...
En savoir plus

750 m²
HT HC
Location activité/entrepôt - 750 m²
Châteaurenard (13160)
Dernière mise à jour : Il y a 4 jours
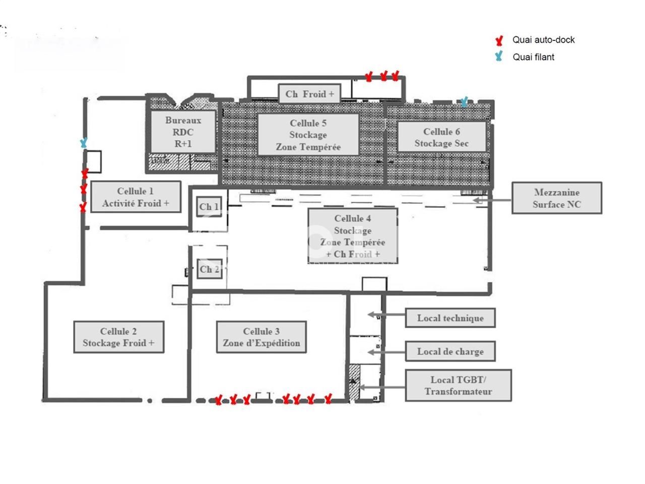
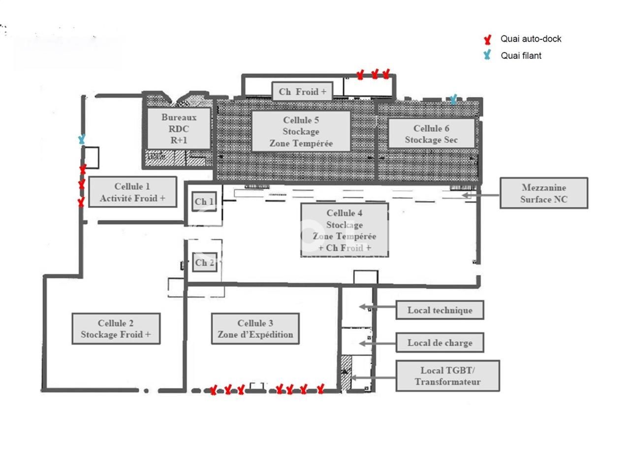
750 m² de Stockage sec
EVOLIS vous propose un espace de 750 m² non divisibles, idéalement situé pour votre activité professionnelle. Bénéficiant d'une localisation stratégique, cet entrepôt offre un accès facile aux principaux axes routiers, facilitant ainsi la logistique de votre entreprise. Doté de grandes hauteurs sous plafond, d'une porte sectionnelle , cet espace répondra parfaitement à vos besoins en termes de stockage et de fonctionnalité.
L'autoroute et l'échangeur A7 d'Avignon sud sont accessibles en seulement 20 minutes en transports en commun à partir de cette adresse.
Impôt Foncier : 4,59 €/m²/an
Régime Fiscal : T.V.A.
Dépôt de garantie : 3 mois de loyer HT HC
Information sur le Bail :
Honoraire Preneur 15 % HT du loyer annuel HT
Prestations :
Accessibilité:
Autoroute Echangeur A7 Avignon sud 20 min
Les informations sur les risques auxquels ce bien est exposé sont disponibles sur le site Géorisques : www.georisques.gouv.fr
EVOLIS vous propose un espace de 750 m² non divisibles, idéalement situé pour votre activité professionnelle. Bénéficiant d'une localisation stratégique, cet entrepôt offre un accès facile aux principaux axes routiers, facilitant ainsi la logistique de votre entreprise. Doté de grandes hauteurs sous plafond, d'une porte sectionnelle , cet espace répondra parfaitement à vos besoins en termes de stockage et de fonctionnalité.
L'autoroute et l'échangeur A7 d'Avignon sud sont accessibles en seulement 20 minutes en transports en commun à partir de cette adresse.
| Étage | Type | Surfaces | Dispo | Loyer | Charges | Type de bailRév. annuelle |
|---|---|---|---|---|---|---|
| RDC | Entrepôts | 750 | Après accord | 80 m²/an/ HT/HC | Bail commercial 3-6-9 ansILAT Indice des Loyers des Activités Tertiaires |
Impôt Foncier : 4,59 €/m²/an
Régime Fiscal : T.V.A.
Dépôt de garantie : 3 mois de loyer HT HC
Information sur le Bail :
Honoraire Preneur 15 % HT du loyer annuel HT
Prestations :
- La zone du Barret est une zone de 25 ha dominée par la filière Agroalimentaire.
- Le Bâtiment de 750m² s'inscrit complètement dans cet environnement en proposant une cellule sèche de 750 m². Toutefois le stockage de matière sèche sera également possible.
- Surface RDC : 750 m²
- Haut. libre min. ss poutre : 6 m
- Haut. libre max. ss poutre : 7 m
- Accès bâtiment : Moyens et gros porteurs
- Ossature : Métallique
- Couverture : Bac acier
Accessibilité:
Autoroute Echangeur A7 Avignon sud 20 min
Les informations sur les risques auxquels ce bien est exposé sont disponibles sur le site Géorisques : www.georisques.gouv.fr
Voir plus
Afficher les consommations énergétiques
Localisation et transport aux alentours
Favoris
Exporter
Appeler
Contacter
Signaler cette annonce










