L’agence CBRE Bordeaux conseille et accompagne les chefs d’entreprise dans leurs projets immobiliers quels que soient leur taille et leur secteur d’activité. Spécialistes de la transaction de burea ...
En savoir plus

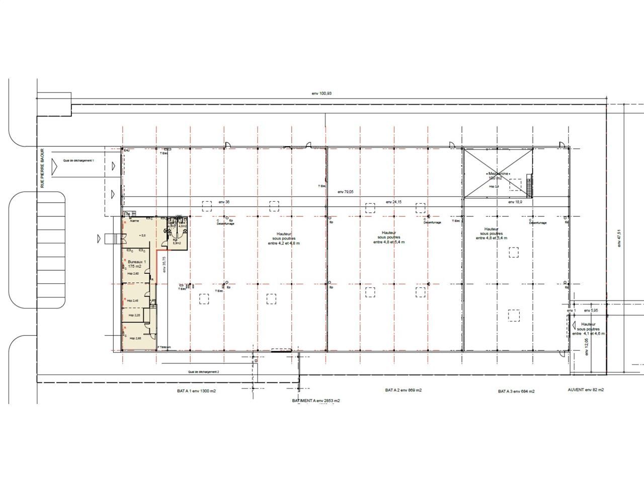
2 853 m²
HT HC
Location activité/entrepôt - 2853 m²
Bordeaux (33000)
Dernière mise à jour : Il y a 4 jours
A LOUER BÂTIMENT INDEPENDANT PROCHE ROCADE ET TRAMWAY : CBRE vous propose de visiter ce bâtiment de 2 853 m² à usage d'entrepôt, bureaux et locaux sociaux sur la commune de Bordeaux. 2 accès quai + portes de plain-pied. Disponibilité immédiate. Disponible à la vente (prix: nous consulter).
Idéalement placé à quelques minutes de la rocade, ce bâtiment indépendant est clos peut être exploité en atelier de production ou activité de picking/entrepôt.
Des bureaux et locaux sociaux viennent compléter l'ensemble.
Le site bénéficie de hauteurs confortables et permet d'accueillir tout gabarit camion et la livraison/expédition est possible par accès quais et plain-pied.
Votre implantation actuelle n'est plus adaptée à votre activité et vous souhaitez déménager votre entreprise au plus proche de la Rocade, ce bâtiment est fait pour vous.
Pour plus d'informations et visite du site, contactez-moi au 06.62.49.19.66.
Au plaisir de vous accompagner dans votre projet immobilier.
Sandra BOUTET
Impôt Foncier : 14000 €/an HT
Régime Fiscal : T.V.A.
Dépôt de garantie : 3 mois de loyer HT/HC
Honoraires : 15% HT du loyer annuel HT/HC à la charge du preneur.
Prestations :
Accessibilité:
Tramway Berges de la Garonne (Tramways)
Les informations sur les risques auxquels ce bien est exposé sont disponibles sur le site Géorisques : www.georisques.gouv.fr
Idéalement placé à quelques minutes de la rocade, ce bâtiment indépendant est clos peut être exploité en atelier de production ou activité de picking/entrepôt.
Des bureaux et locaux sociaux viennent compléter l'ensemble.
Le site bénéficie de hauteurs confortables et permet d'accueillir tout gabarit camion et la livraison/expédition est possible par accès quais et plain-pied.
Votre implantation actuelle n'est plus adaptée à votre activité et vous souhaitez déménager votre entreprise au plus proche de la Rocade, ce bâtiment est fait pour vous.
Pour plus d'informations et visite du site, contactez-moi au 06.62.49.19.66.
Au plaisir de vous accompagner dans votre projet immobilier.
Sandra BOUTET
| Étage | Type | Surfaces | Dispo | Loyer | Charges | Type de bailRév. annuelle |
|---|---|---|---|---|---|---|
| RDC | Entrepôts | 1125 | Immédiate | 70 m²/an HT HC | 4 HT/m²/an | 3-6-9 ansIndice des Loyers Commerciaux |
| RDC | Entrepôts | 869 | Immédiate | 70 m²/an HT HC | 4 HT/m²/an | 3-6-9 ansIndice des Loyers Commerciaux |
| RDC | Activités | 684 | Immédiate | 70 m²/an HT HC | 4 HT/m²/an | 3-6-9 ansIndice des Loyers Commerciaux |
| Bureaux | 175 | Immédiate | 70 m²/an HT HC | 4 HT/m²/an | 3-6-9 ansIndice des Loyers Commerciaux |
Impôt Foncier : 14000 €/an HT
Régime Fiscal : T.V.A.
Dépôt de garantie : 3 mois de loyer HT/HC
Honoraires : 15% HT du loyer annuel HT/HC à la charge du preneur.
Prestations :
- Sol béton
- Hauteur utile 4,2 m et 4,8 m
- 2 quais de déchargement
- Rideaux métalliques
- 1 accès de plain pied
- Réfection de la toiture
- Environ 175 m² de bureaux rénovés et climatisés
- Triphasé
- Les provisions pour charge incluent l'entretien de la toiture et des espaces extérieurs, de la climatisation, rideaux métalliques et du portail coulissant.
- Surface RDC : 2678 m²
Accessibilité:
Tramway Berges de la Garonne (Tramways)
Les informations sur les risques auxquels ce bien est exposé sont disponibles sur le site Géorisques : www.georisques.gouv.fr
Voir plus
Afficher les consommations énergétiques
Favoris
Exporter
Appeler
Contacter
Signaler cette annonce










