L’agence CBRE Lille conseille et accompagne les chefs d’entreprise dans leurs projets immobiliers quels que soient leur taille et leur secteur d’activité. Spécialistes de la transaction de bureaux, ...
En savoir plus

3 400 m² divisible dès 1 174 m²
HT HC
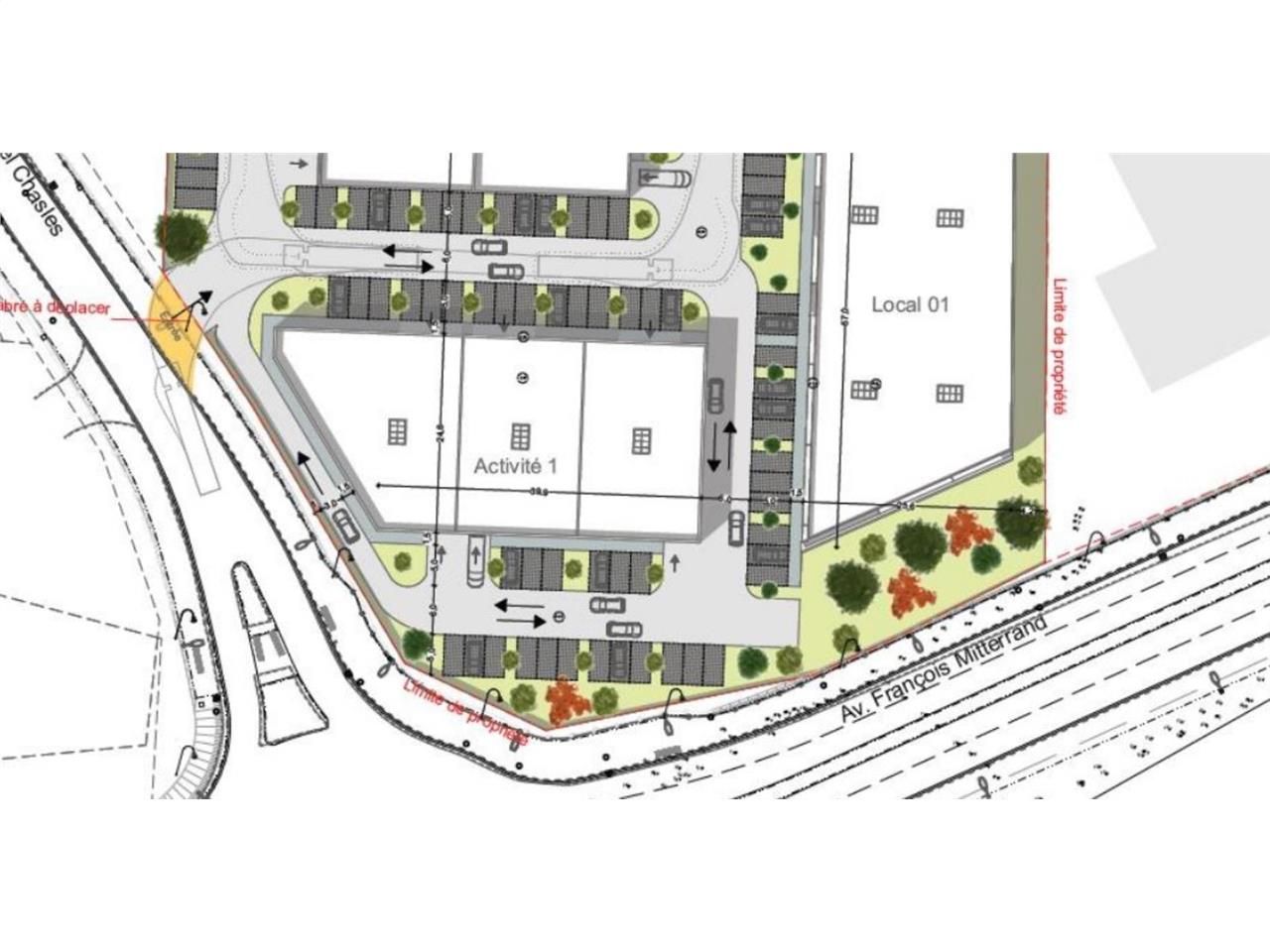
Location activité/entrepôt - 3400 m²
Petite-Forêt (59494)
Dernière mise à jour : Il y a 9 mois
CBRE Lille spécialiste de l'immobilier d'entreprise vous propose à la location des cellules d'activités, situé à 4 km de Valenciennes sur ZAC de Petite-Forêt , le bâtiment dispose d'une belle visibilité commerciale de qualité. Vous bénéficiez également d'une proximité immédiate de l'autoroute A23 Lille - Valenciennes.
Régime Fiscal : T.V.A.
Dépôt de garantie : 3 mois de loyer HT/HC
Honoraires : 15% HT du loyer annuel HT/HC à la charge du preneur
Prestations :
Accessibilité:
Autoroute Proximité A23 Lille - Valenciennes
Route Situé à 4 km de Valenciennes
Les informations sur les risques auxquels ce bien est exposé sont disponibles sur le site Géorisques : www.georisques.gouv.fr
| Étage | Type | Surfaces | Dispo | Loyer | Charges | Type de bailRév. annuelle |
|---|---|---|---|---|---|---|
| Activités | 1174 | 12 mois ap. déb. trx | 200 m²/an HT HC | 15 HT/m²/an | 3-6-9 ansIndice ILAT | |
| Activités | 2226 | 12 mois ap. déb. trx | 200 m²/an HT HC | 15 HT/m²/an | 3-6-9 ansIndice ILAT |
Régime Fiscal : T.V.A.
Dépôt de garantie : 3 mois de loyer HT/HC
Honoraires : 15% HT du loyer annuel HT/HC à la charge du preneur
Prestations :
- Bâtiment livré « blanchi » avec
- Dalle béton 1T/m²
- Charpente métallique avec surcharge FP 15kg/m² et équipement 20kg/m² 6m sous bac
- Eclairage zénithale : 1 par cellule
- Menuiserie alu porte 2 vantaux ET porte métallique 3 UP à l'arrière
- 1 porte sectionnelle motorisée de 3m x 3m selon cellule
- Terrain clôturé
- Portail et portique anti franchissement à l'entrée de la parcelle
- Réseaux en attente (abonnement à charge preneur)
- Aménagement intérieur (éclairage, cloisonnement, chauffage,.) à charge preneur selon aménagement
- 35 Places de parking
- BAT 1 est divisible en 3 cellules
- Surface RDC : 0 m²
- Surface terrain : 4788
Accessibilité:
Autoroute Proximité A23 Lille - Valenciennes
Route Situé à 4 km de Valenciennes
Les informations sur les risques auxquels ce bien est exposé sont disponibles sur le site Géorisques : www.georisques.gouv.fr
Voir plus
Afficher les consommations énergétiques
Favoris
Exporter
Appeler
Contacter
Signaler cette annonce





