BNP Paribas Real Estate Tours est un partenaire de confiance pour tous les projets immobiliers d''entreprise à Tours. Ses domaines d''expertise incluent l''investissement, la vente et la location d ...
En savoir plus

982 m² divisible dès 299 m²
HT HC
Location bureau - 982 m²
Tours (37000)
Dernière mise à jour : Il y a 19 jours
Bureaux à louer Tours Centre
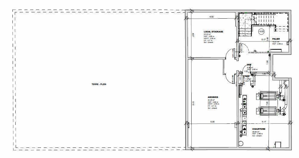
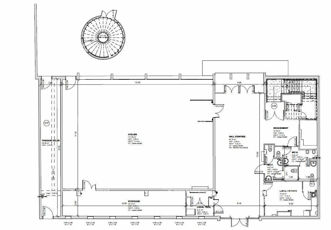
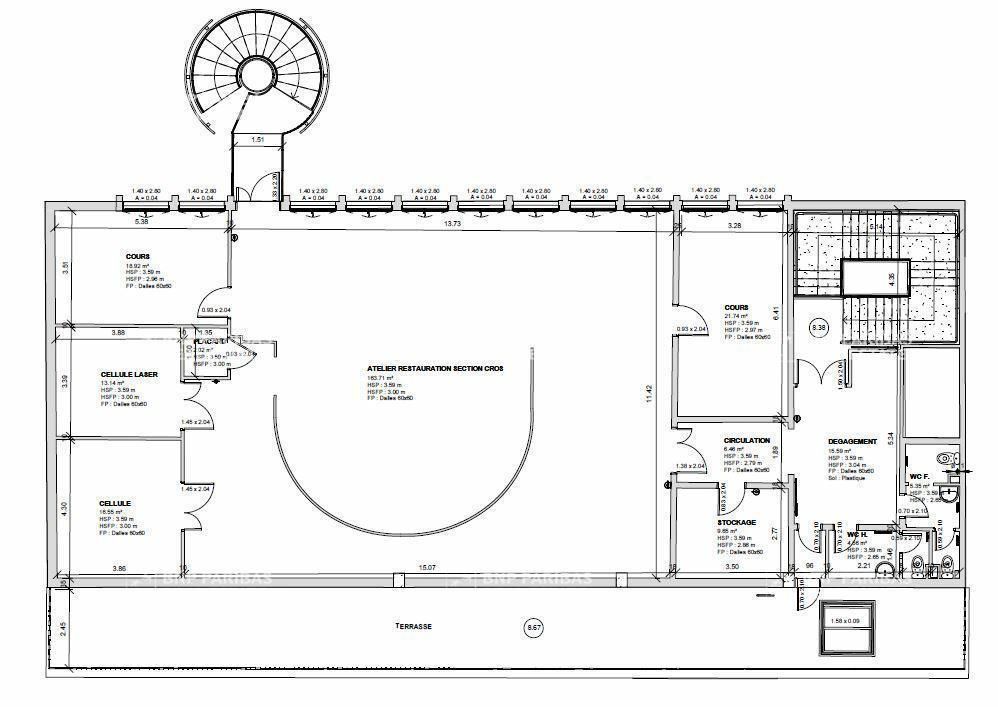
Ce btiment indépendant de bureaux à louer en centre-ville de Tours sera proposé entièrement refait à neuf. Livraison prévue au 1er trimestre 2026. Très belle opportunité avec des plateaux qui peuvent être divisés. Tout peut être étudié dans le cadre d'un éventuel clé en main.
Grand hall d'accueil, grande hauteur sous plafond.
La réhabilitation sera faite avec toutes les nouvelles normes RE2020.
A proximité des transports en commun, ces bureaux se situent à 2 pas de la future ligne de tramway.
Disponibilité: ImmédiateHonoraires: 15% HT du loyer HT/HC. à la signature du bail
| Fiche technique du bien | |
|---|---|
| Bus | ligne 5 et 34 150 m |
| Tramway | Ligne 1 900 m |
| Tramway | Future ligne 2 150 m |
| Desserte routière | A10 3 km |
| Gare | Gare tgv de Tours 1 km |
| Accès Pers. Mobilité Réduite | Oui |
| Etat de l'immeuble | A transformer |
| Ascenseur(s) | Oui |
| Autre élément bureau | Bureaux entièrement refaits à neuf |
Afficher les consommations énergétiques
Favoris
Exporter
Appeler
Contacter
Signaler cette annonce










