L’agence CBRE Toulouse conseille et accompagne les chefs d’entreprise dans leurs projets immobiliers quels que soient leur taille et leur secteur d’activité. Spécialistes de la transaction de burea ...
En savoir plus

2 401 m²
Loyer sur demande
Location bureau - 2401 m²
Toulouse (31000)
Dernière mise à jour : Il y a 2 jours
Bureaux à vendre ou à louer à TOULOUSE secteur Montblanc. Immeuble à construire. Terrasses végétalisées privatives.
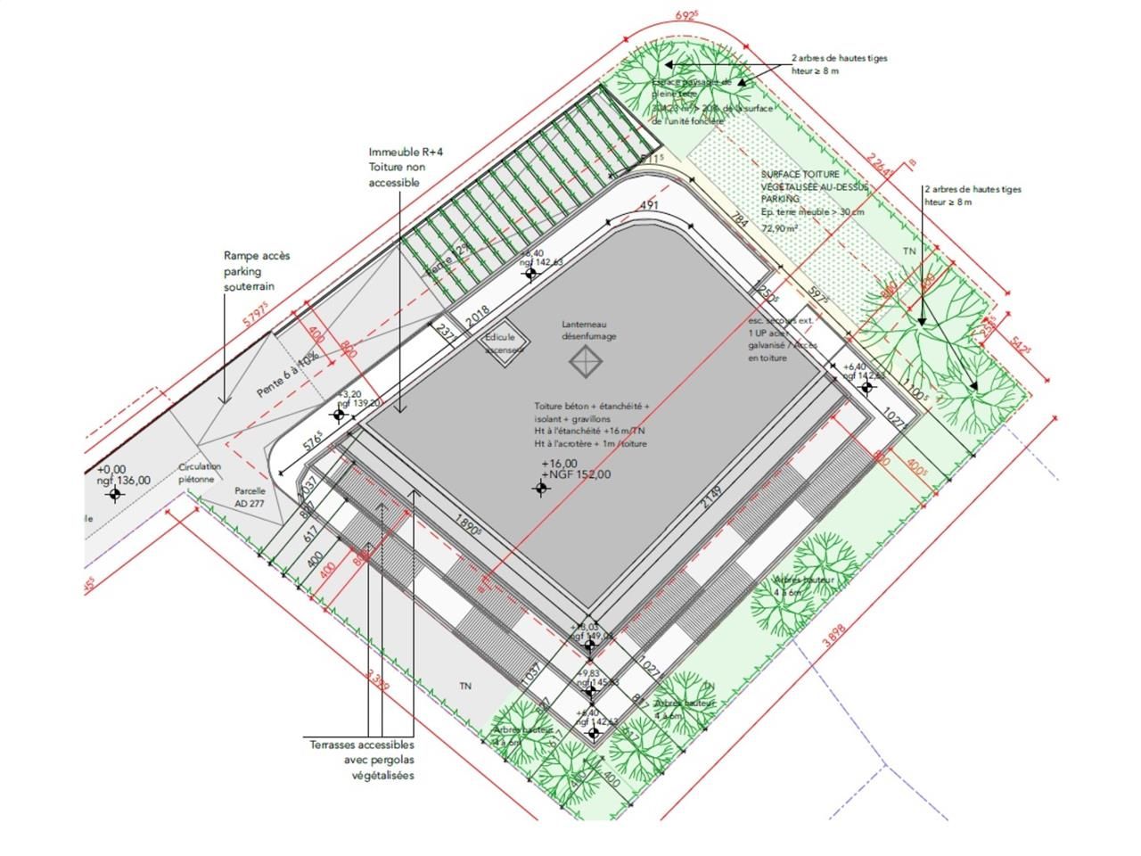
Immeuble à usage de bureaux à construire en R+ 4 sur un terrain clôturé et fermé.
Les plateaux seront livrés terminés (prestations de base) ,non cloisonnés .
Terrasses végétalisées privatives à chaque étage .
Brises soleil extérieurs.
Immeuble sécurisé. Contrôle d'accès.
Accès immédiat par la rocade Est (sortie L'UNION).
Au coeur de la zone d'activité de Montblanc accessible par l'Avenue d'Atlanta .
Très bien desservi par les bus : Lignes 33/43/76
Régime Fiscal : T.V.A.
Dépôt de garantie : 3 mois de loyer HT/HC
Honoraires : 15% (+TVA) du loyer annuel HT HC à la charge du preneur
Information sur le Bail :
Loyer et charges payables par trimestre d'avance
Prestations :
Accessibilité:
Au coeur de la zone d'activité de Montblanc accessible par l'Avenue d'Atlanta .
Route Accès immédiat par la rocade Est (sortie L'UNION).
Bus Lignes de bus : 33/43/76
Metro Métro Ligne A - Station Balma Gramont
Les informations sur les risques auxquels ce bien est exposé sont disponibles sur le site Géorisques : www.georisques.gouv.fr
Immeuble à usage de bureaux à construire en R+ 4 sur un terrain clôturé et fermé.
Les plateaux seront livrés terminés (prestations de base) ,non cloisonnés .
Terrasses végétalisées privatives à chaque étage .
Brises soleil extérieurs.
Immeuble sécurisé. Contrôle d'accès.
Accès immédiat par la rocade Est (sortie L'UNION).
Au coeur de la zone d'activité de Montblanc accessible par l'Avenue d'Atlanta .
Très bien desservi par les bus : Lignes 33/43/76
| Étage | Type | Surfaces | Dispo | Loyer | Charges | Type de bailRév. annuelle |
|---|---|---|---|---|---|---|
| RDC | Bureaux | 446 | 24 mois ap. déb. trx | 6-9 ansIndice ILAT | ||
| 1 | Bureaux | 690 | 24 mois ap. déb. trx | 6-9 ansIndice ILAT | ||
| 2 | Bureaux | 513 | 24 mois ap. déb. trx | 6-9 ansIndice ILAT | ||
| 3 | Bureaux | 419 | 24 mois ap. déb. trx | 6-9 ansIndice ILAT | ||
| 4 | Bureaux | 333 | 24 mois ap. déb. trx | 6-9 ansIndice ILAT |
Régime Fiscal : T.V.A.
Dépôt de garantie : 3 mois de loyer HT/HC
Honoraires : 15% (+TVA) du loyer annuel HT HC à la charge du preneur
Information sur le Bail :
Loyer et charges payables par trimestre d'avance
Prestations :
- Immeuble à usage de bureaux de 2 401 m² (SDP) en R+4 à construire sur un terrain clôturé et fermé.
- Les plateaux seront livrés terminés (prestations de base), non climatisés, non cloisonnés.
- Pour des prestations spécifiques (stores vénitiens à lames, plancher technique, faux-plafond démontable, appareils d'éclairage, chauffage - rafraichissement, cloisonnement) : nous consulter.
- Terrasses végétalisées privatives à chaque étage.
- Brises soleil extérieurs.
- Murs rideaux Alu.
- Immeuble sécurisé. Contrôle d'accès.
- Hauteur bureaux : 2.50 mètres.
- 64 Parkings :
- 58 places en sous-sol sur 2 niveaux :
- 6 places extérieures.
- Respect de la réglementation thermique 2012 (RT 2012).
- PC en cours d'instruction - Surfaces susceptibles d'évoluer
- Surface RDC : 446 m²
Accessibilité:
Au coeur de la zone d'activité de Montblanc accessible par l'Avenue d'Atlanta .
Route Accès immédiat par la rocade Est (sortie L'UNION).
Bus Lignes de bus : 33/43/76
Metro Métro Ligne A - Station Balma Gramont
Les informations sur les risques auxquels ce bien est exposé sont disponibles sur le site Géorisques : www.georisques.gouv.fr
Voir plus
Afficher les consommations énergétiques
Favoris
Exporter
Appeler
Contacter
Signaler cette annonce










